Se Connecter/S’inscrire
Votre courriel a été envoyé.
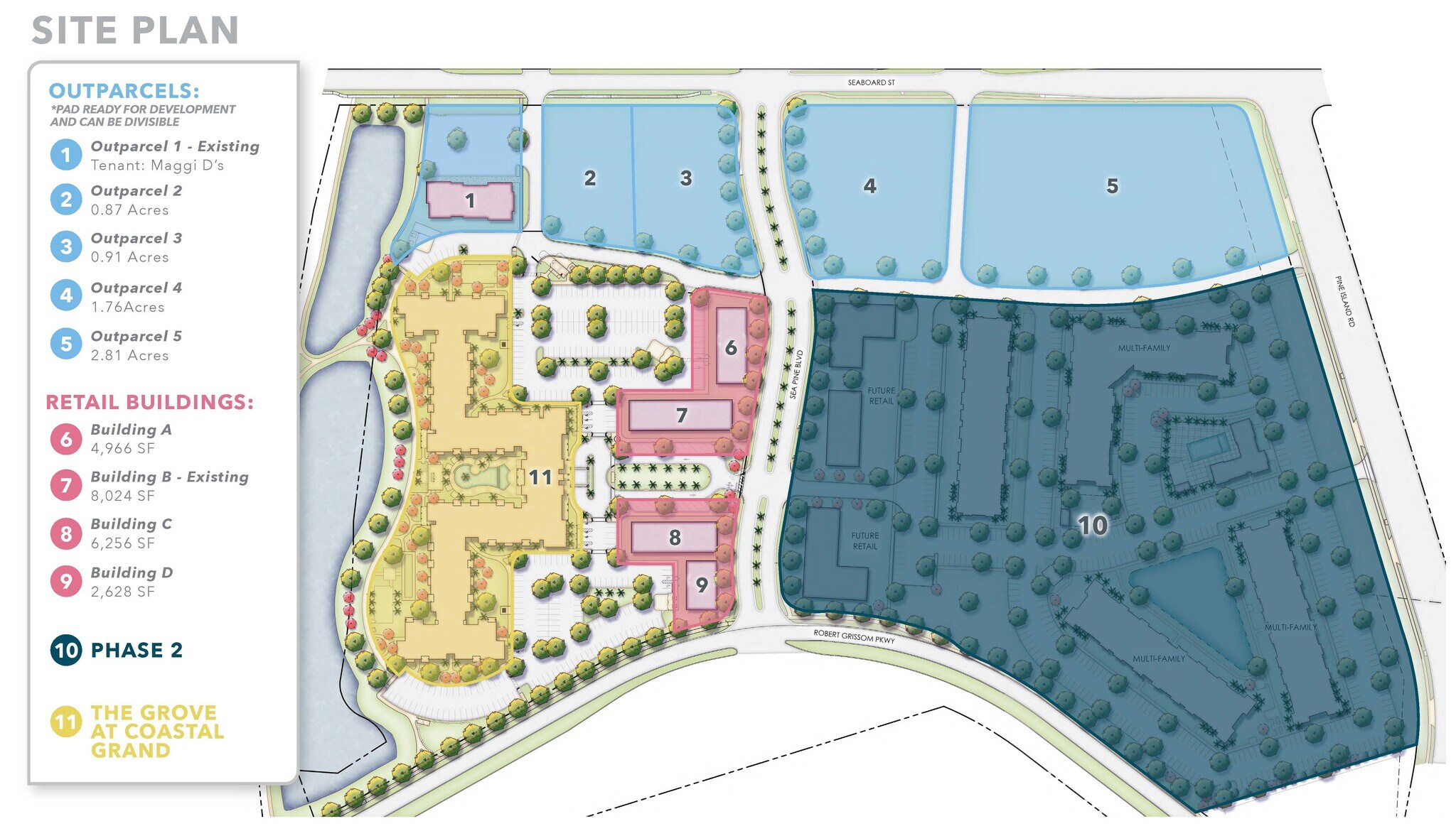
385 Seaboard St - Pine Island Point- Outparcel 2 0,87 Acres of Terrain commercial Land



À propos de 385 SEABOARD ST , MYRTLE BEACH , SC 29577
| Prix | Pas individuellement en vente | Sous-type de propriété | Terrain commercial |
| Type de propriété | Terrain | Taille totale du lot | 0,87 AC |
| Prix | Pas individuellement en vente |
| Type de propriété | Terrain |
| Sous-type de propriété | Terrain commercial |
| Taille totale du lot | 0,87 AC |
1 de 5
Vidéos
Visite extérieure 3D Matterport
Visite 3D Matterport
Photos
Vue depuis la rue
Rue
Carte
