Log In/Sign Up
Your email has been sent.
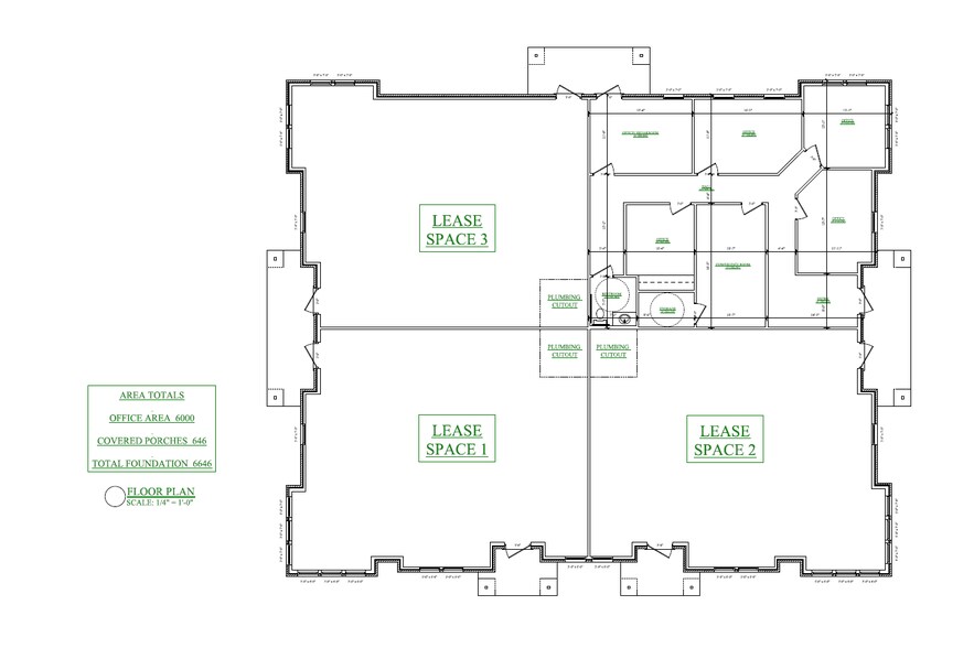
1006 Legacy Ranch Rd - 1006 6,006 SF Office Building



About 1006 LEGACY RANCH RD , WAXAHACHIE , TX 75165
| Price | Not Individually For Sale | Building Class | B |
| Building Size | 6,006 SF | Lot Size | 0.64 AC |
| Property Type | Office |
| Price | Not Individually For Sale |
| Building Size | 6,006 SF |
| Property Type | Office |
| Building Class | B |
| Lot Size | 0.64 AC |
1 of 12
Videos
Matterport 3D Exterior
Matterport 3D Tour
Photos
Street View
Street
Map
