Log In/Sign Up
Your email has been sent.
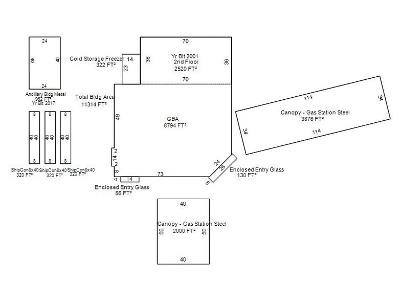
4600 NE 120th St 11,314 SF Retail Building


ABOUT 4600 NE 120TH ST , OKLAHOMA CITY , OK 73131
| Price | Not Individually For Sale | Building Class | C |
| Building Size | 11,314 SF | Lot Size | 5.17 AC |
| Property Type | Retail | Parking Ratio | 2.11/1,000 SF |
| Property Subtype | Convenience Store |
| Price | Not Individually For Sale |
| Building Size | 11,314 SF |
| Property Type | Retail |
| Property Subtype | Convenience Store |
| Building Class | C |
| Lot Size | 5.17 AC |
| Parking Ratio | 2.11/1,000 SF |
1 of 3
VIDEOS
MATTERPORT 3D EXTERIOR
MATTERPORT 3D TOUR
PHOTOS
STREET VIEW
STREET
MAP
