Commercial Real Estate in Jamestown available for lease

1 Warehouse for Lease in Jamestown, MI, USA

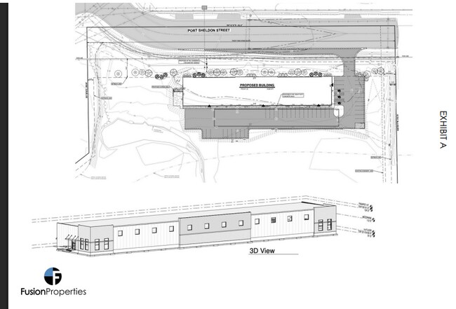
Warehouse for Lease in Jamestown, MI, USA

Warehouses for Lease within 10 kilometers of Jamestown, MI, USA