Your email has been sent.
1247 36th Ave NE 1,500 - 3,000 SF of Space Available in Calgary, AB T2E 6N6



Highlights
- 1247 36th Avenue NE presents two 1,500-square-foot flex industrial units for lease in Calgary, ideal for warehousing, light industrial, and more.
- Excellent connectivity to Deerfoot Trail, Barlow Trail, and McKnight Boulevard, just 11 minutes from Calgary Int'l Airport and one minute to AB-2.
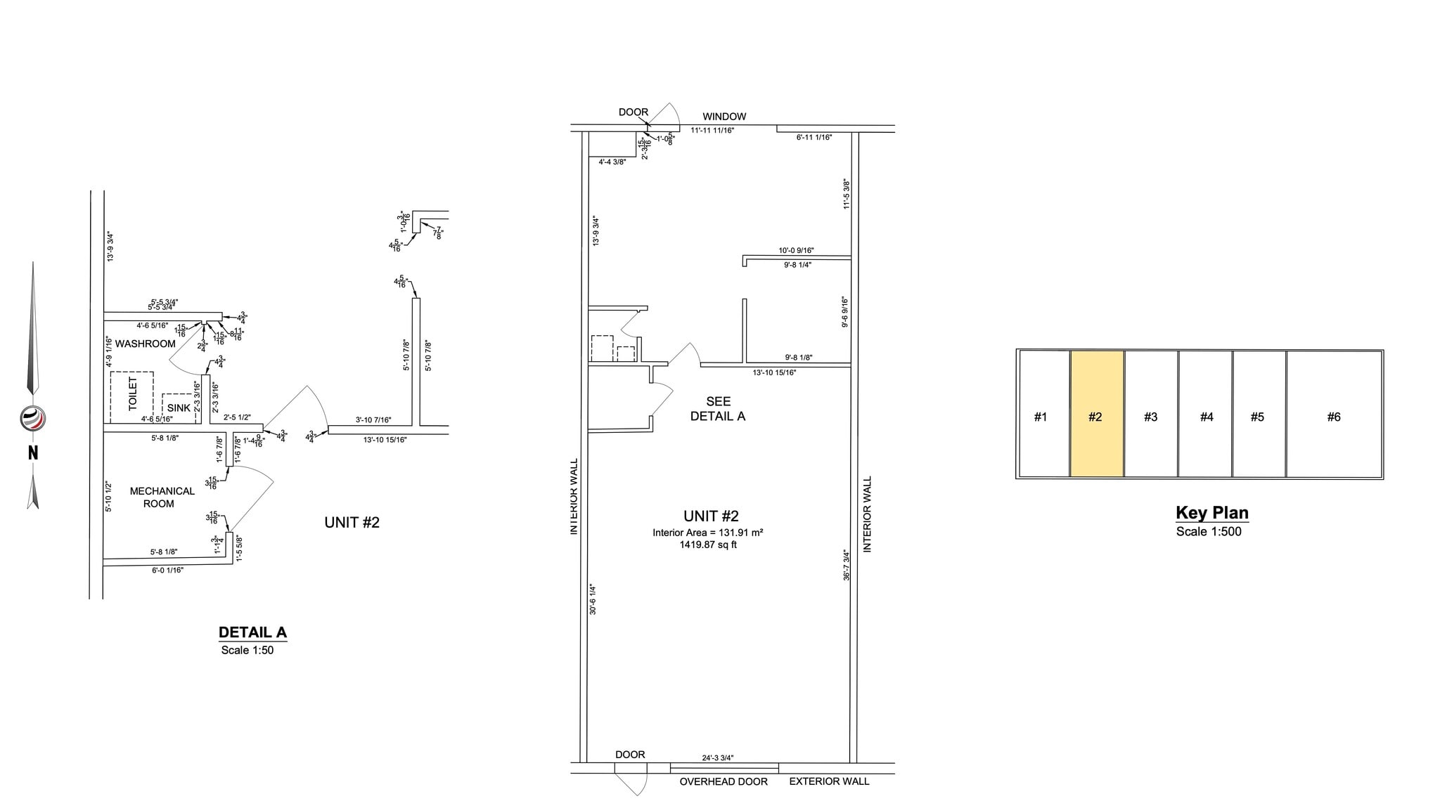
- Each unit combines warehouse and office space with 10-foot overhead doors, 12-foot clear height, 100-amp power, signage, and assigned parking.
- Serving a robust 752,000 population within 10 km, projected to grow 22% by 2033, in one of Calgary’s strongest and most active industrial submarkets.
Features
All Available Spaces(2)
Display Rental Rate as
- Space
- Size
- Term
- Rental Rate
- Space Use
- Build-Out
- Available
- Lease rate does not include utilities, property expenses or building services
- Fits 4 - 12 People
- Finished Ceilings: 12’
- Mostly Open Floor Plan Layout
- 1 Private Office
- Located in-line with other retail
- Lease rate does not include utilities, property expenses or building services
- 1 Drive Bay
- Reception Area
- Security System
- Natural Light
- Main floor warehouse with office area
- 12-foot clear ceiling height
- Close to 32 Avenue NE retail and service corridor
- Includes 400 SF of dedicated office space
- Space is in Excellent Condition
- Private Restrooms
- Drop Ceilings
- 1,500-SF industrial condo bay in McCall Industrial
- 10-foot overhead door
- Quick access to McKnight Boulevard, Deerfoot Trail
| Space | Size | Term | Rental Rate | Space Use | Build-Out | Available |
| 1st Floor, Ste 2 | 1,500 SF | 3 Years | $25.00 CAD/SF/YR $2.08 CAD/SF/MO $37,500 CAD/YR $3,125 CAD/MO | Office/Retail | Partial Build-Out | Now |
| 1st Floor - 3 | 1,500 SF | 3 Years | $25.00 CAD/SF/YR $2.08 CAD/SF/MO $37,500 CAD/YR $3,125 CAD/MO | Industrial | Partial Build-Out | Now |
1st Floor, Ste 2
| Size |
| 1,500 SF |
| Term |
| 3 Years |
| Rental Rate |
| $25.00 CAD/SF/YR $2.08 CAD/SF/MO $37,500 CAD/YR $3,125 CAD/MO |
| Space Use |
| Office/Retail |
| Build-Out |
| Partial Build-Out |
| Available |
| Now |
1st Floor - 3
| Size |
| 1,500 SF |
| Term |
| 3 Years |
| Rental Rate |
| $25.00 CAD/SF/YR $2.08 CAD/SF/MO $37,500 CAD/YR $3,125 CAD/MO |
| Space Use |
| Industrial |
| Build-Out |
| Partial Build-Out |
| Available |
| Now |
1st Floor, Ste 2
| Size | 1,500 SF |
| Term | 3 Years |
| Rental Rate | $25.00 CAD/SF/YR |
| Space Use | Office/Retail |
| Build-Out | Partial Build-Out |
| Available | Now |
- Lease rate does not include utilities, property expenses or building services
- Mostly Open Floor Plan Layout
- Fits 4 - 12 People
- 1 Private Office
- Finished Ceilings: 12’
- Located in-line with other retail
1st Floor - 3
| Size | 1,500 SF |
| Term | 3 Years |
| Rental Rate | $25.00 CAD/SF/YR |
| Space Use | Industrial |
| Build-Out | Partial Build-Out |
| Available | Now |
- Lease rate does not include utilities, property expenses or building services
- Includes 400 SF of dedicated office space
- 1 Drive Bay
- Space is in Excellent Condition
- Reception Area
- Private Restrooms
- Security System
- Drop Ceilings
- Natural Light
- 1,500-SF industrial condo bay in McCall Industrial
- Main floor warehouse with office area
- 10-foot overhead door
- 12-foot clear ceiling height
- Quick access to McKnight Boulevard, Deerfoot Trail
- Close to 32 Avenue NE retail and service corridor
Property Overview
1247 36th Avenue NE offers flexible industrial space located in the heart of the McCall Industrial District. This prime industrial lease opportunity offers two flex industrial unit bays, each providing 1,500 square feet of efficient space that blends main-floor warehouse functionality with dedicated office areas. Designed for businesses seeking a clean, professional, and highly functional layout, each bay features a 10-foot overhead door, a 12-foot clear ceiling height, 100-amp power, building signage, and assigned parking stalls. The opportunity supports a wide range of uses, including warehousing, light industrial, trade, service, distribution, and showroom operations, making the property an ideal platform for operational efficiency, growth, and daily convenience. 1247 36th Avenue NE is strategically positioned with excellent connectivity to Calgary’s major routes, including McKnight Boulevard, Deerfoot Trail, and Barlow Trail. With exposure along 12th Street NE and proximity to the 32nd Avenue retail corridor, the site offers visibility and convenience. Calgary International Airport lies just 11 minutes away, while Autoroute AB-2 is only one minute from 1247 36th Avenue NE, making it an ideal hub for logistics and distribution. McCall Industrial District is one of Calgary’s strongest industrial submarkets, supported by a robust population of more than 752,000 within 10 kilometres, expected to grow 22% by 2033, and a median household spending power of CA$29 billion. 1247 36th Avenue NE is a great opportunity to establish operations in one of Calgary’s most resilient and proven industrial submarkets.
Warehouse Facility Facts
Select Tenants
- Floor
- Tenant Name
- Industry
- 1st
- B & M Auto Detailing
- Services
- 1st
- GM Construction Group
- Construction
- 1st
- Local Liquidations
- Retailer
- 1st
- Water Heater Pro
- -
Demographics
Regional Accessibility
Presented by
VG Group Holding Inc
1247 36th Ave NE
Hmm, there seems to have been an error sending your message. Please try again.
Thanks! Your message was sent.






