Your email has been sent.
1250 Venables St 9,452 SF of Industrial Space Available in Vancouver, BC V6A 3X7



Highlights
- Prime location in False Creek Flats with excellent connectivity to downtown Vancouver and major highways.
- Fully air-conditioned office/showroom featuring open plan, boardroom, and four private offices.
- Ten secured parking stalls and three-phase power to support diverse business needs.
- Flexible configuration with office, showroom, and warehouse space plus mezzanine storage.
- Large grade-level loading door, clear span warehouse, and 18’9” ceiling height for efficient operations.
- Close proximity to Port of Vancouver, new St. Paul’s Hospital, and major entertainment venues.
Features
All Available Space(1)
Display Rental Rate as
- Space
- Size
- Term
- Rental Rate
- Space Use
- Build-Out
- Available
1290 Venables Street offers a prime opportunity in Vancouver’s highly sought-after False Creek Flats district, a hub for wholesale, distribution, and creative businesses. This 9,452 SF property combines showroom, warehouse, and office space in a strategic location just east of downtown, providing exceptional connectivity via the Prior Street Viaduct and major east-west thoroughfares. The site is minutes from the Port of Vancouver, BC Place Stadium, Rogers Arena, and the new St. Paul’s Hospital, enhancing its appeal for businesses seeking proximity to key infrastructure and amenities.
- Lease rate does not include utilities, property expenses or building services
- 1 Drive Bay
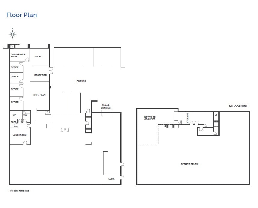
- Office/showroom includes boardroom and 4 offices.
- Warehouse area is clear span.
- Includes 2,380 SF of dedicated office space
- Secure Storage
- Fully air-conditioned office/showroom.
| Space | Size | Term | Rental Rate | Space Use | Build-Out | Available |
| 1st Floor - 1290 | 9,452 SF | 3-7 Years | Upon Request Upon Request Upon Request Upon Request | Industrial | Full Build-Out | 90 Days |
1st Floor - 1290
| Size |
| 9,452 SF |
| Term |
| 3-7 Years |
| Rental Rate |
| Upon Request Upon Request Upon Request Upon Request |
| Space Use |
| Industrial |
| Build-Out |
| Full Build-Out |
| Available |
| 90 Days |
1st Floor - 1290
| Size | 9,452 SF |
| Term | 3-7 Years |
| Rental Rate | Upon Request |
| Space Use | Industrial |
| Build-Out | Full Build-Out |
| Available | 90 Days |
1290 Venables Street offers a prime opportunity in Vancouver’s highly sought-after False Creek Flats district, a hub for wholesale, distribution, and creative businesses. This 9,452 SF property combines showroom, warehouse, and office space in a strategic location just east of downtown, providing exceptional connectivity via the Prior Street Viaduct and major east-west thoroughfares. The site is minutes from the Port of Vancouver, BC Place Stadium, Rogers Arena, and the new St. Paul’s Hospital, enhancing its appeal for businesses seeking proximity to key infrastructure and amenities.
- Lease rate does not include utilities, property expenses or building services
- Includes 2,380 SF of dedicated office space
- 1 Drive Bay
- Secure Storage
- Office/showroom includes boardroom and 4 offices.
- Fully air-conditioned office/showroom.
- Warehouse area is clear span.
Property Overview
The property features a flexible layout with 2,380 SF of office/showroom space and 7,072 SF of warehouse, plus an additional 1,300 SF mezzanine for storage and office use. The office/showroom area includes an open plan, boardroom, four private offices, a lunchroom, and two washrooms, all fully air-conditioned for comfort. The warehouse boasts a clear span design, 18’9” ceiling height, and a large grade-level loading door for efficient operations. Ten secured parking stalls and three-phase power further support operational needs. Located at the intersection of Venables Street and Vernon Drive, this property offers unparalleled access to downtown Vancouver and major transportation routes, making it an ideal choice for businesses requiring visibility, accessibility, and functional space in a thriving commercial corridor.
Warehouse Facility Facts
Select Tenants
- Floor
- Tenant Name
- Industry
- 1st
- Allegra Network, Llc
- Manufacturing
- 1st
- Sherwin-Williams
- Manufacturing
Presented by
1250 Venables St
Hmm, there seems to have been an error sending your message. Please try again.
Thanks! Your message was sent.



