Your email has been sent.
Westgate Centre 130 Cedar St 5,743 SF of Retail Space Available in Cambridge, ON N1S 1W4



Highlights
- Situated along Cedar Street with exceptional street frontage, the property is located within a well-established residential area of Cambridge.
- The property offers excellent access adjacent to the plaza entrance, strategically positioned within a dense residential neighbourhood.
Space Availability (1)
Display Rental Rate as
- Space
- Size
- Term
- Rental Rate
- Rent Type
| Space | Size | Term | Rental Rate | Rent Type | ||
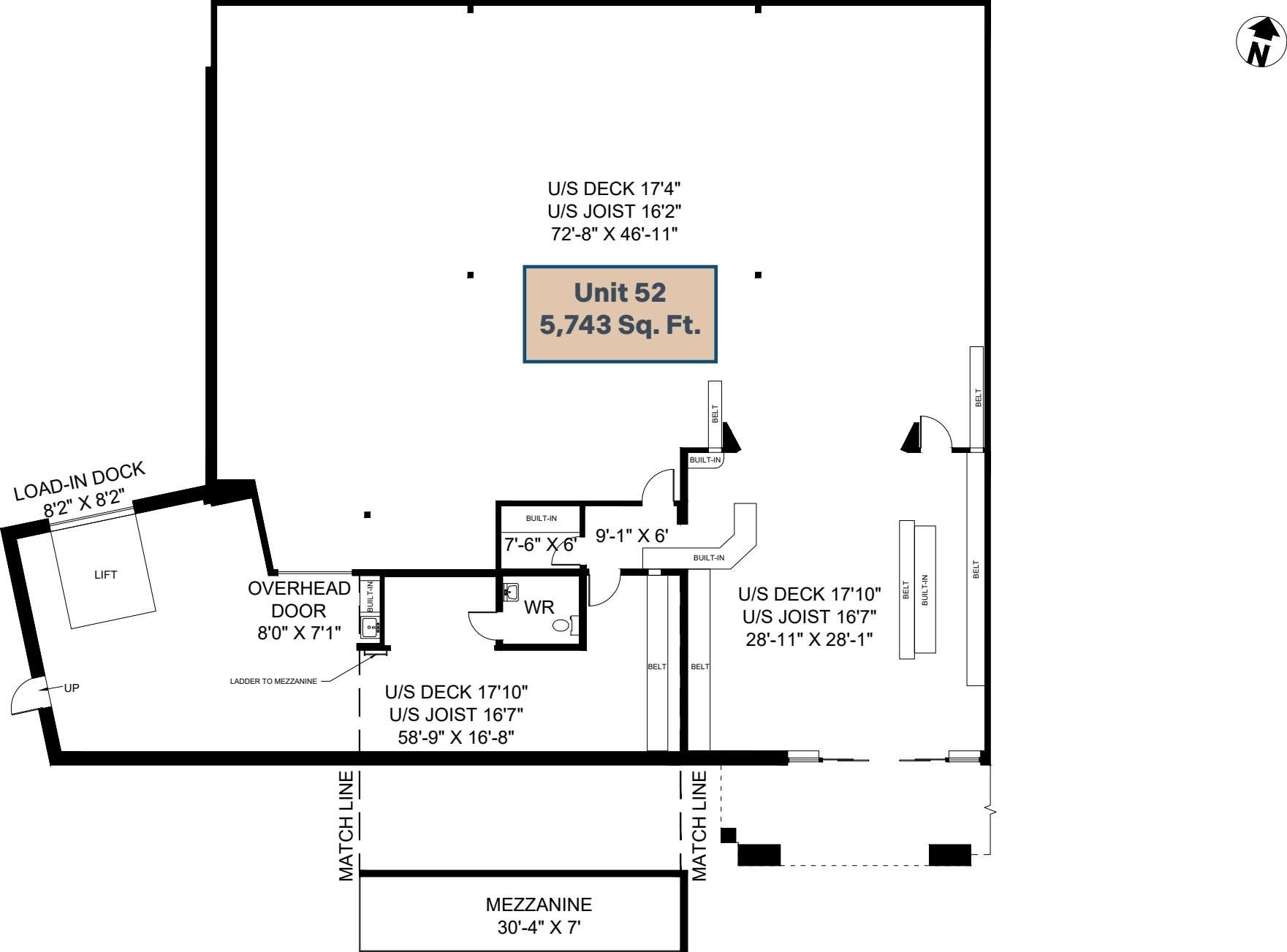
| 1st Floor, Ste 52 | 5,743 SF | Negotiable | $32.00 CAD/SF/YR $2.67 CAD/SF/MO $183,776 CAD/YR $15,315 CAD/MO | Triple Net (NNN) |
1st Floor, Ste 52
Located at 130 Cedar Street in Cambridge, Ontario, this former Beer Store unit offers a prime corner unit retail opportunity within the grocery-anchored Westgate Centre. Benefiting from a strong presence in a residential neighborhood, the unit enjoys excellent visibility and consistent foot traffic drawn by major anchors including Sobeys, Shoppers Drug Mart, TD Bank, LCBO, Tim Hortons, Dollarama, and Westgate Village Home Hardware, creating a robust retail synergy ideal for a wide variety of retail uses.
- Lease rate does not include utilities, property expenses or building services
- Fully Built-Out as Standard Retail Space
- Prime Corner Retail Space
- Direct Front Parking
- 1 Dedicated Loading Dock
Rent Types
The rent amount and type that the tenant (lessee) will be responsible to pay to the landlord (lessor) throughout the lease term is negotiated prior to both parties signing a lease agreement. The rent type will vary depending upon the services provided. For example, triple net rents are typically lower than full service rents due to additional expenses the tenant is required to pay in addition to the base rent. Contact the listing broker for a full understanding of any associated costs or additional expenses for each rent type.
1. Full Service: A rental rate that includes normal building standard services as provided by the landlord within a base year rental.
2. Double Net (NN): Tenant pays for only two of the building expenses; the landlord and tenant determine the specific expenses prior to signing the lease agreement.
3. Triple Net (NNN): A lease in which the tenant is responsible for all expenses associated with their proportional share of occupancy of the building.
4. Modified Gross: Modified Gross is a general type of lease rate where typically the tenant will be responsible for their proportional share of one or more of the expenses. The landlord will pay the remaining expenses. See the below list of common Modified Gross rental rate structures: 4. Plus All Utilities: A type of Modified Gross Lease where the tenant is responsible for their proportional share of utilities in addition to the rent. 4. Plus Cleaning: A type of Modified Gross Lease where the tenant is responsible for their proportional share of cleaning in addition to the rent. 4. Plus Electric: A type of Modified Gross Lease where the tenant is responsible for their proportional share of the electrical cost in addition to the rent. 4. Plus Electric & Cleaning: A type of Modified Gross Lease where the tenant is responsible for their proportional share of the electrical and cleaning cost in addition to the rent. 4. Plus Utilities and Char: A type of Modified Gross Lease where the tenant is responsible for their proportional share of the utilities and cleaning cost in addition to the rent. 4. Industrial Gross: A type of Modified Gross lease where the tenant pays one or more of the expenses in addition to the rent. The landlord and tenant determine these prior to signing the lease agreement.
5. Tenant Electric: The landlord pays for all services and the tenant is responsible for their usage of lights and electrical outlets in the space they occupy.
6. Negotiable or Upon Request: Used when the leasing contact does not provide the rent or service type.
7. TBD: To be determined; used for buildings for which no rent or service type is known, commonly utilized when the buildings are not yet built.
Site Plan
Select Tenants at Westgate Centre
- Tenant
- Description
- CAN Locations
- Reach
- Dollarama
- Dollar/Variety/Thrift
- 1,660
- National
- LCBO
- Liquor
- 993
- Local
- MC Nails
- Nail Salon
- 1
- Local
- Shoppers Drug Mart
- Drug Store
- 1,833
- National
- Sobeys
- Supermarket
- 430
- National
- TD Bank
- Bank
- 98
- National
| Tenant | Description | CAN Locations | Reach |
| Dollarama | Dollar/Variety/Thrift | 1,660 | National |
| LCBO | Liquor | 993 | Local |
| MC Nails | Nail Salon | 1 | Local |
| Shoppers Drug Mart | Drug Store | 1,833 | National |
| Sobeys | Supermarket | 430 | National |
| TD Bank | Bank | 98 | National |
Property Facts
| Total Space Available | 5,743 SF | Gross Leasable Area | 83,152 SF |
| Property Type | Retail | Year Built | 1978 |
| Property Subtype | Storefront | Parking Ratio | 3.6/1,000 SF |
| Total Space Available | 5,743 SF |
| Property Type | Retail |
| Property Subtype | Storefront |
| Gross Leasable Area | 83,152 SF |
| Year Built | 1978 |
| Parking Ratio | 3.6/1,000 SF |
About the Property
130 Cedar Street offers a flexible commercial opportunity in a well-established area of Cambridge. Positioned along a visible corridor with easy access to major city routes, the property benefits from steady local traffic and strong connectivity to nearby neighbourhoods. The surrounding mix of residential, retail, and service amenities supports consistent demand, making this an attractive location for a variety of commercial uses. With its accessible setting and strategic placement within a mature community, the site provides excellent potential for businesses seeking visibility and convenience.
- Pylon Sign
- Signalized Intersection
Nearby Major Retailers
Presented by
Westgate Centre | 130 Cedar St
Hmm, there seems to have been an error sending your message. Please try again.
Thanks! Your message was sent.


