Your email has been sent.
1502-1508 W 2nd Ave 5,100 - 10,600 SF of Space Available in Vancouver, BC V6J 1H2



Highlights
- Prime location at Granville Island entrance
- Private wrap-around patio on the third floor
- Ample parking available through ImPark
- Three floors with flexible retail and office layouts
- Grade-level loading access for operational ease
Space Availability (2)
Display Rental Rate as
- Space
- Size
- Term
- Rental Rate
- Rent Type
| Space | Size | Term | Rental Rate | Rent Type | ||
| 1st Floor, Ste 1508 | 5,500 SF | 1-10 Years | Upon Request Upon Request Upon Request Upon Request | Triple Net (NNN) | ||
| 2nd Floor, Ste 1508 | 5,100 SF | 1-10 Years | Upon Request Upon Request Upon Request Upon Request | Triple Net (NNN) |
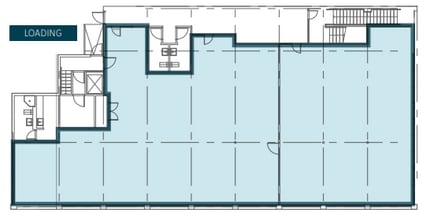
1st Floor, Ste 1508
Retail or Office street front premises, convenient plumbing an connectivity and ready for tenant improvements. Contact agents for rates.
- Lease rate does not include utilities, property expenses or building services
- Mostly Open Floor Plan Layout
- Fits 14 - 44 People
- Can be combined with additional space(s) for up to 10,600 SF of adjacent space
- Exterior upgrades including new windows
- Parking and loading area
- Boutique style building
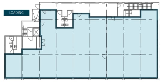
2nd Floor, Ste 1508
Ready for tenant improvements, the premises also has access to grade level loading on the south portion of the floor. Contact agents for rates.
- Lease rate does not include utilities, property expenses or building services
- Partially Built-Out as Standard Office
- Mostly Open Floor Plan Layout
- Fits 13 - 41 People
- Can be combined with additional space(s) for up to 10,600 SF of adjacent space
- Central Air and Heating
- Natural Light
- Exterior upgrades including new windows
- Parking and loading area
- Boutique style building
Rent Types
The rent amount and type that the tenant (lessee) will be responsible to pay to the landlord (lessor) throughout the lease term is negotiated prior to both parties signing a lease agreement. The rent type will vary depending upon the services provided. For example, triple net rents are typically lower than full service rents due to additional expenses the tenant is required to pay in addition to the base rent. Contact the listing broker for a full understanding of any associated costs or additional expenses for each rent type.
1. Full Service: A rental rate that includes normal building standard services as provided by the landlord within a base year rental.
2. Double Net (NN): Tenant pays for only two of the building expenses; the landlord and tenant determine the specific expenses prior to signing the lease agreement.
3. Triple Net (NNN): A lease in which the tenant is responsible for all expenses associated with their proportional share of occupancy of the building.
4. Modified Gross: Modified Gross is a general type of lease rate where typically the tenant will be responsible for their proportional share of one or more of the expenses. The landlord will pay the remaining expenses. See the below list of common Modified Gross rental rate structures: 4. Plus All Utilities: A type of Modified Gross Lease where the tenant is responsible for their proportional share of utilities in addition to the rent. 4. Plus Cleaning: A type of Modified Gross Lease where the tenant is responsible for their proportional share of cleaning in addition to the rent. 4. Plus Electric: A type of Modified Gross Lease where the tenant is responsible for their proportional share of the electrical cost in addition to the rent. 4. Plus Electric & Cleaning: A type of Modified Gross Lease where the tenant is responsible for their proportional share of the electrical and cleaning cost in addition to the rent. 4. Plus Utilities and Char: A type of Modified Gross Lease where the tenant is responsible for their proportional share of the utilities and cleaning cost in addition to the rent. 4. Industrial Gross: A type of Modified Gross lease where the tenant pays one or more of the expenses in addition to the rent. The landlord and tenant determine these prior to signing the lease agreement.
5. Tenant Electric: The landlord pays for all services and the tenant is responsible for their usage of lights and electrical outlets in the space they occupy.
6. Negotiable or Upon Request: Used when the leasing contact does not provide the rent or service type.
7. TBD: To be determined; used for buildings for which no rent or service type is known, commonly utilized when the buildings are not yet built.
Property Facts
| Total Space Available | 10,600 SF | Year Built | 2000 |
| Property Type | Retail | Parking Ratio | 0.86/1,000 SF |
| Property Subtype | Storefront Retail/Office | Cross Streets | Anderson |
| Gross Leasable Area | 14,000 SF |
| Total Space Available | 10,600 SF |
| Property Type | Retail |
| Property Subtype | Storefront Retail/Office |
| Gross Leasable Area | 14,000 SF |
| Year Built | 2000 |
| Parking Ratio | 0.86/1,000 SF |
| Cross Streets | Anderson |
About the Property
1508 West 2nd Avenue is located at the entrance to Granville Island with access to an abundance of amenities and transit.
Nearby Major Retailers
Presented by
1502-1508 W 2nd Ave
Hmm, there seems to have been an error sending your message. Please try again.
Thanks! Your message was sent.




