Log In/Sign Up
Your email has been sent.
Highlights
- Easy walk to Downtown.
- Close to parks and river pathway.
- Located on southbound Edmonton Trail.
- Ample Parking Nearby.
All Available Space(1)
Display Rental Rate as
- Space
- Size
- Term
- Rental Rate
- Space Use
- Build-Out
- Available
| Space | Size | Term | Rental Rate | Space Use | Build-Out | Available |
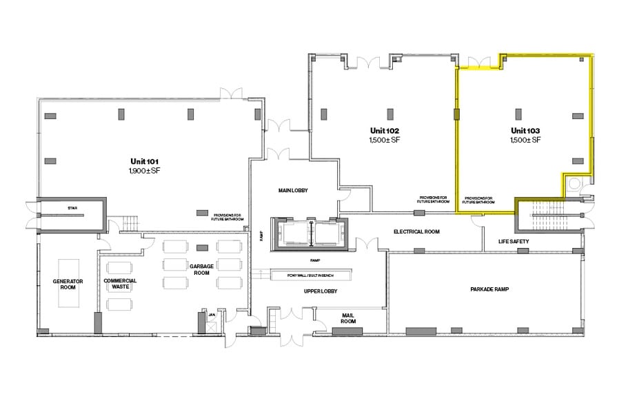
| 1st Floor, Ste 103 | 1,500 SF | 5 Years | Upon Request Upon Request Upon Request Upon Request | Retail | - | Now |
1st Floor, Ste 103
| Size |
| 1,500 SF |
| Term |
| 5 Years |
| Rental Rate |
| Upon Request Upon Request Upon Request Upon Request |
| Space Use |
| Retail |
| Build-Out |
| - |
| Available |
| Now |
1 of 2
Videos
Matterport 3D Exterior
Matterport 3D Tour
Photos
Street View
Street
Map
1st Floor, Ste 103
| Size | 1,500 SF |
| Term | 5 Years |
| Rental Rate | Upon Request |
| Space Use | Retail |
| Build-Out | - |
| Available | Now |
Property Facts
| Total Space Available | 1,500 SF | Apartment Style | Mid-Rise |
| No. Units | 180 | Building Size | 166,000 SF |
| Property Type | Multifamily | Year Built | 2023 |
| Property Subtype | Apartment |
| Total Space Available | 1,500 SF |
| No. Units | 180 |
| Property Type | Multifamily |
| Property Subtype | Apartment |
| Apartment Style | Mid-Rise |
| Building Size | 166,000 SF |
| Year Built | 2023 |
About the Property
Retail Space at Era, Bridgeland. Set your business in one of Calgary’s most vibrant neighbourhoods. Surrounded by top restaurants, shops, and steady foot traffic, Era offers modern spaces in a prime location with stunning skyline views.
Very walkable
80/100
Moderately drivable
60/100
Good public transit
70/100
Very bikeable
80/100
Nearby Major Retailers
1 of 13
Videos
Matterport 3D Exterior
Matterport 3D Tour
Photos
Street View
Street
Map
Presented by
Era | 151 4 St NE
Already a member? Log In
Hmm, there seems to have been an error sending your message. Please try again.
Thanks! Your message was sent.







