Your email has been sent.
333-343 King St E 1,383 - 99,863 SF of Space Available in Toronto, ON M5A 3X5



Sublease Highlights
- Turnkey Furnished Spaces Available
- Dedicated Ground Floor Entrance
- Extensive Storage/ Library Space
- Direct Streetcar Access
All Available Spaces(6)
Display Rental Rate as
- Space
- Size
- Term
- Rental Rate
- Space Use
- Build-Out
- Available
Located in Toronto’s vibrant east core, 333 King Street offers a rare sublease opportunity across four expansive floors currently built out as a premier education facility. The building provides an adaptable environment, combining convenience, connectivity, and move-in-ready functionality in the heart of the city.
- Sublease space available from current tenant
- Open Floor Plan Layout
- Fully Built-Out as Standard Office
- Can be combined with additional space(s) for up to 5,539 SF of adjacent space
Located in Toronto’s vibrant east core, 333 King Street offers a rare sublease opportunity across four expansive floors currently built out as a premier education facility. The building provides an adaptable environment, combining convenience, connectivity, and move-in-ready functionality in the heart of the city.
- Sublease space available from current tenant
- Open Floor Plan Layout
- Fully Built-Out as Standard Office
- Can be combined with additional space(s) for up to 5,539 SF of adjacent space
Located in Toronto’s vibrant east core, 333 King Street offers a rare sublease opportunity across four expansive floors currently built out as a premier education facility. The building provides an adaptable environment, combining convenience, connectivity, and move-in-ready functionality in the heart of the city.
- Sublease space available from current tenant
- Office intensive layout
- Fully Built-Out as Standard Office
- Can be combined with additional space(s) for up to 94,324 SF of adjacent space
Located in Toronto’s vibrant east core, 333 King Street offers a rare sublease opportunity across four expansive floors currently built out as a premier education facility. The building provides an adaptable environment, combining convenience, connectivity, and move-in-ready functionality in the heart of the city.
- Sublease space available from current tenant
- Office intensive layout
- Fully Built-Out as Standard Office
- Can be combined with additional space(s) for up to 94,324 SF of adjacent space
Located in Toronto’s vibrant east core, 333 King Street offers a rare sublease opportunity across four expansive floors currently built out as a premier education facility. The building provides an adaptable environment, combining convenience, connectivity, and move-in-ready functionality in the heart of the city.
- Sublease space available from current tenant
- Office intensive layout
- Fully Built-Out as Standard Office
- Can be combined with additional space(s) for up to 94,324 SF of adjacent space
Located in Toronto’s vibrant east core, 333 King Street offers a rare sublease opportunity across four expansive floors currently built out as a premier education facility. The building provides an adaptable environment, combining convenience, connectivity, and move-in-ready functionality in the heart of the city.
- Sublease space available from current tenant
- Office intensive layout
- Fully Built-Out as Standard Office
- Can be combined with additional space(s) for up to 94,324 SF of adjacent space
| Space | Size | Term | Rental Rate | Space Use | Build-Out | Available |
| 1st Floor, Ste A | 4,156 SF | Jul 2029 | Upon Request Upon Request Upon Request Upon Request | Office/Retail | Full Build-Out | 30 Days |
| 1st Floor, Ste B | 1,383 SF | Jul 2029 | Upon Request Upon Request Upon Request Upon Request | Office/Retail | Full Build-Out | 30 Days |
| 3rd Floor, Ste 3rd Floor | 58,054 SF | Jul 2029 | Upon Request Upon Request Upon Request Upon Request | Office | Full Build-Out | 30 Days |
| 4th Floor, Ste 4th Floor | 12,093 SF | Jul 2029 | Upon Request Upon Request Upon Request Upon Request | Office | Full Build-Out | 30 Days |
| 5th Floor, Ste 5th Floor | 12,097 SF | Jul 2029 | Upon Request Upon Request Upon Request Upon Request | Office | Full Build-Out | 30 Days |
| 6th Floor, Ste 6th Floor | 12,080 SF | Jul 2029 | Upon Request Upon Request Upon Request Upon Request | Office | Full Build-Out | 30 Days |
1st Floor, Ste A
| Size |
| 4,156 SF |
| Term |
| Jul 2029 |
| Rental Rate |
| Upon Request Upon Request Upon Request Upon Request |
| Space Use |
| Office/Retail |
| Build-Out |
| Full Build-Out |
| Available |
| 30 Days |
1st Floor, Ste B
| Size |
| 1,383 SF |
| Term |
| Jul 2029 |
| Rental Rate |
| Upon Request Upon Request Upon Request Upon Request |
| Space Use |
| Office/Retail |
| Build-Out |
| Full Build-Out |
| Available |
| 30 Days |
3rd Floor, Ste 3rd Floor
| Size |
| 58,054 SF |
| Term |
| Jul 2029 |
| Rental Rate |
| Upon Request Upon Request Upon Request Upon Request |
| Space Use |
| Office |
| Build-Out |
| Full Build-Out |
| Available |
| 30 Days |
4th Floor, Ste 4th Floor
| Size |
| 12,093 SF |
| Term |
| Jul 2029 |
| Rental Rate |
| Upon Request Upon Request Upon Request Upon Request |
| Space Use |
| Office |
| Build-Out |
| Full Build-Out |
| Available |
| 30 Days |
5th Floor, Ste 5th Floor
| Size |
| 12,097 SF |
| Term |
| Jul 2029 |
| Rental Rate |
| Upon Request Upon Request Upon Request Upon Request |
| Space Use |
| Office |
| Build-Out |
| Full Build-Out |
| Available |
| 30 Days |
6th Floor, Ste 6th Floor
| Size |
| 12,080 SF |
| Term |
| Jul 2029 |
| Rental Rate |
| Upon Request Upon Request Upon Request Upon Request |
| Space Use |
| Office |
| Build-Out |
| Full Build-Out |
| Available |
| 30 Days |
1st Floor, Ste A
| Size | 4,156 SF |
| Term | Jul 2029 |
| Rental Rate | Upon Request |
| Space Use | Office/Retail |
| Build-Out | Full Build-Out |
| Available | 30 Days |
Located in Toronto’s vibrant east core, 333 King Street offers a rare sublease opportunity across four expansive floors currently built out as a premier education facility. The building provides an adaptable environment, combining convenience, connectivity, and move-in-ready functionality in the heart of the city.
- Sublease space available from current tenant
- Fully Built-Out as Standard Office
- Open Floor Plan Layout
- Can be combined with additional space(s) for up to 5,539 SF of adjacent space
1st Floor, Ste B
| Size | 1,383 SF |
| Term | Jul 2029 |
| Rental Rate | Upon Request |
| Space Use | Office/Retail |
| Build-Out | Full Build-Out |
| Available | 30 Days |
Located in Toronto’s vibrant east core, 333 King Street offers a rare sublease opportunity across four expansive floors currently built out as a premier education facility. The building provides an adaptable environment, combining convenience, connectivity, and move-in-ready functionality in the heart of the city.
- Sublease space available from current tenant
- Fully Built-Out as Standard Office
- Open Floor Plan Layout
- Can be combined with additional space(s) for up to 5,539 SF of adjacent space
3rd Floor, Ste 3rd Floor
| Size | 58,054 SF |
| Term | Jul 2029 |
| Rental Rate | Upon Request |
| Space Use | Office |
| Build-Out | Full Build-Out |
| Available | 30 Days |
Located in Toronto’s vibrant east core, 333 King Street offers a rare sublease opportunity across four expansive floors currently built out as a premier education facility. The building provides an adaptable environment, combining convenience, connectivity, and move-in-ready functionality in the heart of the city.
- Sublease space available from current tenant
- Fully Built-Out as Standard Office
- Office intensive layout
- Can be combined with additional space(s) for up to 94,324 SF of adjacent space
4th Floor, Ste 4th Floor
| Size | 12,093 SF |
| Term | Jul 2029 |
| Rental Rate | Upon Request |
| Space Use | Office |
| Build-Out | Full Build-Out |
| Available | 30 Days |
Located in Toronto’s vibrant east core, 333 King Street offers a rare sublease opportunity across four expansive floors currently built out as a premier education facility. The building provides an adaptable environment, combining convenience, connectivity, and move-in-ready functionality in the heart of the city.
- Sublease space available from current tenant
- Fully Built-Out as Standard Office
- Office intensive layout
- Can be combined with additional space(s) for up to 94,324 SF of adjacent space
5th Floor, Ste 5th Floor
| Size | 12,097 SF |
| Term | Jul 2029 |
| Rental Rate | Upon Request |
| Space Use | Office |
| Build-Out | Full Build-Out |
| Available | 30 Days |
Located in Toronto’s vibrant east core, 333 King Street offers a rare sublease opportunity across four expansive floors currently built out as a premier education facility. The building provides an adaptable environment, combining convenience, connectivity, and move-in-ready functionality in the heart of the city.
- Sublease space available from current tenant
- Fully Built-Out as Standard Office
- Office intensive layout
- Can be combined with additional space(s) for up to 94,324 SF of adjacent space
6th Floor, Ste 6th Floor
| Size | 12,080 SF |
| Term | Jul 2029 |
| Rental Rate | Upon Request |
| Space Use | Office |
| Build-Out | Full Build-Out |
| Available | 30 Days |
Located in Toronto’s vibrant east core, 333 King Street offers a rare sublease opportunity across four expansive floors currently built out as a premier education facility. The building provides an adaptable environment, combining convenience, connectivity, and move-in-ready functionality in the heart of the city.
- Sublease space available from current tenant
- Fully Built-Out as Standard Office
- Office intensive layout
- Can be combined with additional space(s) for up to 94,324 SF of adjacent space
Property Overview
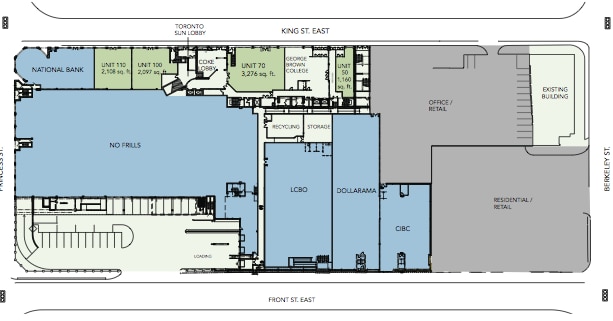
Located in Toronto’s vibrant Downtown East, 333 King Street East presents a rare opportunity to sublease nearly 100,000 RSF of turnkey space across five contiguous floors. Previously configured as a premier education facility, the space is fully built out with classrooms, offices, lounges, and extensive library/storage areas. The building offers a dedicated ground floor entrance, direct streetcar access, and is steps from the Distillery District, St. Lawrence Market, and Corktown. Tenants benefit from proximity to Toronto’s Financial Core and Union Station, with seamless access to the Gardiner Expressway and Don Valley Parkway. The property is part of a 360,000 SF commercial complex housing major tenants such as Coca-Cola and Scotiabank Digital Factory. Renovated in 2012 and 2016, the building features robust infrastructure including dual central HVAC plants, high-voltage electrical systems, multiple POP rooms, and three emergency generators. Internet service is available from Rogers, Bell, TELUS, and Beanfield. Amenities include Scotiabank onsite, food vendors, and a single-level underground garage with 102 parking spaces.
Property Facts
Select Tenants
- Floor
- Tenant Name
- Industry
- 1st
- CIBC
- Finance and Insurance
- 1st
- Dollarama
- Retailer
- Multiple
- George Brown College
- Educational Services
- 1st
- LCBO
- Retailer
- 1st
- National Bank of Canada
- Finance and Insurance
- 1st
- No Frills
- Retailer
- 1st
- Rogers
- Information
- 1st
- Royal Bank of Canada
- Finance and Insurance
- Multiple
- Scotiabank
- Finance and Insurance
- Multiple
- The Coca-Cola Company
- Manufacturing
Presented by
333-343 King St E
Hmm, there seems to have been an error sending your message. Please try again.
Thanks! Your message was sent.


