Your email has been sent.
Highlights
- Operating costs includes utilities & Pylon signage available
- Underground and surface parking available.
- Recently renovated common areas, exterior and atrium
- Prime Macleod Trail location, steps from 39th Ave LRT Station.
All Available Spaces(3)
Display Rental Rate as
- Space
- Size
- Term
- Rental Rate
- Space Use
- Build-Out
- Available
Quality office building located on Macleod Trail immediately adjacent to the 39th Avenue LRT station. Nicely finished office space available immediately. Underground and surface parking available. Recently renovated common areas, exterior and open atrium. Available Immediately.
- Fully Built-Out as Standard Office
- Natural Light
- Windows provide ample natural light.
- Mostly Open Floor Plan Layout
- Recently renovated space.
- Signage available.
Quality office building located on Macleod Trail immediately adjacent to the 39th Avenue LRT station. Nicely finished office space available immediately. Underground and surface parking available. Recently renovated common areas, exterior and open atrium. Available immediately.
- Fully Built-Out as Standard Office
- Can be combined with additional space(s) for up to 3,396 SF of adjacent space
- Windows provide ample natural light.
- Office intensive layout
- Underground parking available.
Quality office building located on Macleod Trail immediately adjacent to the 39th Avenue LRT station. Nicely finished office space available immediately. Underground and surface parking available. Recently renovated common areas, exterior and open atrium
- Fully Built-Out as Standard Office
- Can be combined with additional space(s) for up to 3,396 SF of adjacent space
- Windows provide ample natural light.
- Open Floor Plan Layout
- Underground parking available.
| Space | Size | Term | Rental Rate | Space Use | Build-Out | Available |
| 2nd Floor, Ste 211/212 | 4,873 SF | 5 Years | $14.00 CAD/SF/YR $1.17 CAD/SF/MO $68,222 CAD/YR $5,685 CAD/MO | Office | Full Build-Out | Now |
| 3rd Floor, Ste 305 | 1,698 SF | 5 Years | $14.00 CAD/SF/YR $1.17 CAD/SF/MO $23,772 CAD/YR $1,981 CAD/MO | Office | Full Build-Out | Now |
| 3rd Floor, Ste 307 | 1,698 SF | 5 Years | $14.00 CAD/SF/YR $1.17 CAD/SF/MO $23,772 CAD/YR $1,981 CAD/MO | Office | Full Build-Out | Now |
2nd Floor, Ste 211/212
| Size |
| 4,873 SF |
| Term |
| 5 Years |
| Rental Rate |
| $14.00 CAD/SF/YR $1.17 CAD/SF/MO $68,222 CAD/YR $5,685 CAD/MO |
| Space Use |
| Office |
| Build-Out |
| Full Build-Out |
| Available |
| Now |
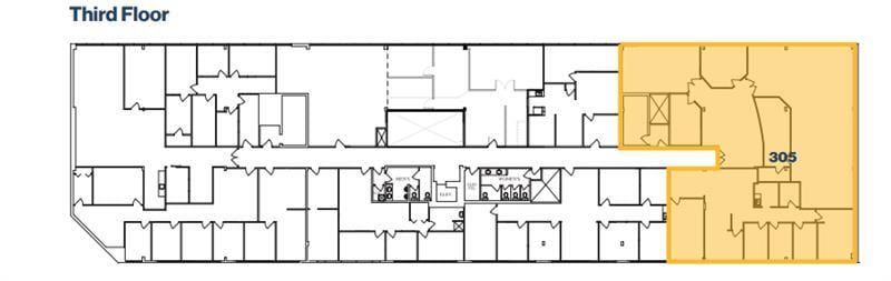
3rd Floor, Ste 305
| Size |
| 1,698 SF |
| Term |
| 5 Years |
| Rental Rate |
| $14.00 CAD/SF/YR $1.17 CAD/SF/MO $23,772 CAD/YR $1,981 CAD/MO |
| Space Use |
| Office |
| Build-Out |
| Full Build-Out |
| Available |
| Now |
3rd Floor, Ste 307
| Size |
| 1,698 SF |
| Term |
| 5 Years |
| Rental Rate |
| $14.00 CAD/SF/YR $1.17 CAD/SF/MO $23,772 CAD/YR $1,981 CAD/MO |
| Space Use |
| Office |
| Build-Out |
| Full Build-Out |
| Available |
| Now |
2nd Floor, Ste 211/212
| Size | 4,873 SF |
| Term | 5 Years |
| Rental Rate | $14.00 CAD/SF/YR |
| Space Use | Office |
| Build-Out | Full Build-Out |
| Available | Now |
Quality office building located on Macleod Trail immediately adjacent to the 39th Avenue LRT station. Nicely finished office space available immediately. Underground and surface parking available. Recently renovated common areas, exterior and open atrium. Available Immediately.
- Fully Built-Out as Standard Office
- Mostly Open Floor Plan Layout
- Natural Light
- Recently renovated space.
- Windows provide ample natural light.
- Signage available.
3rd Floor, Ste 305
| Size | 1,698 SF |
| Term | 5 Years |
| Rental Rate | $14.00 CAD/SF/YR |
| Space Use | Office |
| Build-Out | Full Build-Out |
| Available | Now |
Quality office building located on Macleod Trail immediately adjacent to the 39th Avenue LRT station. Nicely finished office space available immediately. Underground and surface parking available. Recently renovated common areas, exterior and open atrium. Available immediately.
- Fully Built-Out as Standard Office
- Office intensive layout
- Can be combined with additional space(s) for up to 3,396 SF of adjacent space
- Underground parking available.
- Windows provide ample natural light.
3rd Floor, Ste 307
| Size | 1,698 SF |
| Term | 5 Years |
| Rental Rate | $14.00 CAD/SF/YR |
| Space Use | Office |
| Build-Out | Full Build-Out |
| Available | Now |
Quality office building located on Macleod Trail immediately adjacent to the 39th Avenue LRT station. Nicely finished office space available immediately. Underground and surface parking available. Recently renovated common areas, exterior and open atrium
- Fully Built-Out as Standard Office
- Open Floor Plan Layout
- Can be combined with additional space(s) for up to 3,396 SF of adjacent space
- Underground parking available.
- Windows provide ample natural light.
Property Overview
Located along Calgary’s prominent Macleod Trail, this property offers exceptional visibility in a high-traffic corridor with over 50,000 vehicles passing daily. The building features modern renovations, including refreshed common areas and an inviting atrium, creating a professional and welcoming environment. It's prime position near the 39th Avenue LRT station ensures convenient transit access and connectivity to downtown Calgary.
- Bus Line
- Signage
- Smoke Detector
Property Facts
Presented by
Atrium Square | 4014 Macleod Trl S
Hmm, there seems to have been an error sending your message. Please try again.
Thanks! Your message was sent.






