Your email has been sent.
515 Legget Dr
Ottawa, ON K2K 2E7
Tower D · Office Property For Lease
·
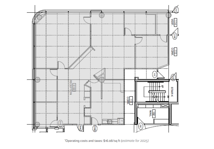
8,713 SF


Highlights
- Tower D, built in 2001, is the fourth tower in the complex and offers exceptional views of the Marshes Golf Course and Gatineau Hills near the Brookst
- Supports both single-tenant and multi-tenant layouts and includes barrier-free access, high-speed elevators, and a shared loading dock.
- The building features buff architectural precast panels, aluminum curtain wall, and shaded low-E glazing.
- HVAC includes four rooftop units with VAV distribution, DDC controls, and provisions for future cooling expansion via glycol coolant lines.
Property Overview
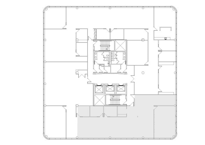
Tower D was constructed in 2001 and represents the 4th of 4 towers. The Towers are strategically located adjacent to the 4 diamond Brookstreet Resort on Legget Drive, and overlook the championship designed Robert Trent Jones Marshes Golf Course as well as offer exceptional views of the Gatineau hills. The exterior of the Building is clad with buff architectural pre-cast panels, aluminum framed curtain wall, and shaded/reflective low “E” glazing. The floor plate easily accommodates both single or multi-tenant tenant configurations with a central core. Building design includes barrier free access, 3 high speed traction drive elevators (2 passenger, 1 shipping) with stainless steel doors, and a common loading dock c/w dock leveler. The Building is fully sprinklered with an addressable fire alarm system with remote monitoring. The Building is equipped with a card access entry system that is monitored and controlled by a central security centre. Building completely heated and air conditioned with 4 roof top mounted packaged HVAC units, supplemented with fluid coolers; common high pressure loop circulation and zoning for Variable Air Volume (VAV) distribution; controlled by a Direct Digital Control system. Heating is provided by terminal re-heat on perimeter VAV boxes. Valved and capped glycol coolant lines are provided in ceiling space of each floor for potential future additional cooling capacity through roof mounted dry coolers.
- Bus Line
- Controlled Access
- Signage
- Kitchen
- Accent Lighting
- Reception
- Outdoor Seating
- Air Conditioning
