Log In/Sign Up
Your email has been sent.
5216 48 Ave
Red Deer, AB T4N 3T9
Office Property For Sale


Investment Highlights
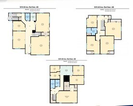
- 3,500+ sq ft office space across three fully developed floors.
- C-1 zoning allows for flexible commercial uses in a well-maintained, air-conditioned building
- Prime downtown location with 12 paved parking stalls and metered parking on two sides.
Executive Summary
Truly a unique property and opportunity, located in downtown Red Deer. Situated on a corner lot, this structure was originally a residence however over time has been converted to office use. It has retained some of its earlier characteristics and features, then combines them with modern finishing and a layout which is functional for office or potentially other commercial uses. Featuring 3 fully developed floors, including the basement which was professionally built-out in 2017.
Property Facts
Sale Type
Owner User
Property Type
Office
Property Subtype
Office/Residential
Building Size
3,516 SF
Building Class
C
Year Built
2000
Price
$395,000 CAD
Price Per SF
$112.34 CAD
Tenancy
Single
Building Height
2 Stories
Typical Floor Size
1,758 SF
Building FAR
0.58
Lot Size
0.14 AC
Zoning
C1 - City Center District
Parking
12 Spaces (3.41 Spaces per 1,000 SF Leased)
1 of 13
Videos
Matterport 3D Exterior
Matterport 3D Tour
Photos
Street View
Street
Map
