Log In/Sign Up
Your email has been sent.
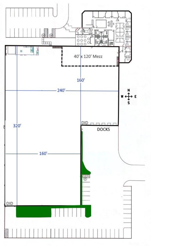
585 Capital Dr 72,000 SF of Industrial Space Available in Lake Zurich, IL 60047



Sublease Highlights
- Drive-in door for easy loading and deliveries
- Convenient access to IL-22, Rand Rd, and major commercial corridors
- Clean, well-maintained interior with flexible layout
- Located in a well-kept business park setting with ample parking
Features
Clear Height
21’
Column Spacing
40’ x 40’
Warehouse Floor
6”
Drive In Bays
2
Exterior Dock Doors
5
Levelers
5
Standard Parking Spaces
73
All Available Space(1)
Display Rental Rate as
- Space
- Size
- Term
- Rental Rate
- Space Use
- Condition
- Available
Rate: STO
- Sublease space available from current tenant
- Includes 8,600 SF of dedicated office space
- Space is in Excellent Condition
- Central Air and Heating
- Listed rate may not include certain utilities, building services and property expenses
- 2 Drive Ins
- 5 Loading Docks
- Heavy Power / 1200 AMPs, 3PH
| Space | Size | Term | Rental Rate | Space Use | Condition | Available |
| 1st Floor | 72,000 SF | Jan 2032 | Upon Request Upon Request Upon Request Upon Request | Industrial | Partial Build-Out | 30 Days |
1st Floor
| Size |
| 72,000 SF |
| Term |
| Jan 2032 |
| Rental Rate |
| Upon Request Upon Request Upon Request Upon Request |
| Space Use |
| Industrial |
| Condition |
| Partial Build-Out |
| Available |
| 30 Days |
1 of 2
Videos
Matterport 3D Exterior
Matterport 3D Tour
Photos
Street View
Street
Map
1st Floor
| Size | 72,000 SF |
| Term | Jan 2032 |
| Rental Rate | Upon Request |
| Space Use | Industrial |
| Condition | Partial Build-Out |
| Available | 30 Days |
Rate: STO
- Sublease space available from current tenant
- Listed rate may not include certain utilities, building services and property expenses
- Includes 8,600 SF of dedicated office space
- 2 Drive Ins
- Space is in Excellent Condition
- 5 Loading Docks
- Central Air and Heating
- Heavy Power / 1200 AMPs, 3PH
Property Overview
Well-maintained industrial/flex space with office buildout, warehouse area, and drive-in door. Convenient location with easy access to major routes. Ideal for light manufacturing, distribution, or service use.
Warehouse Facility Facts
Building Size
72,000 SF
Lot Size
4.28 AC
Year Built/Renovated
1999/2017
Construction
Reinforced Concrete
Sprinkler System
Wet
Water
City
Sewer
City
Heating
Gas
Gas
Natural
Power Supply
Amps: 1,200 Volts: 270 Phase: 3 Wire: 4
Zoning
Industrial
Select Tenants
- Floor
- Tenant Name
- Industry
- 1st
- Screenflex Portable Partition
- Manufacturing
1 of 10
Videos
Matterport 3D Exterior
Matterport 3D Tour
Photos
Street View
Street
Map
Presented by
585 Capital Dr
Already a member? Log In
Hmm, there seems to have been an error sending your message. Please try again.
Thanks! Your message was sent.
Your message has been sent!
Activate your LoopNet account now to track properties, get real-time alerts, save time on future inquiries, and more.




