Your email has been sent.
Highlights
- Fully air-conditioned space
- STM bus stop in front of property and train nearby
- 24' clear, 2 dock doors and 2 electric dock levelers
- Easy access to highways 40, 13, 117 and 520
- Located minutes from Montreal- Trudeau airport
Features
All Available Space(1)
Display Rental Rate as
- Space
- Size
- Term
- Rental Rate
- Space Use
- Build-Out
- Available
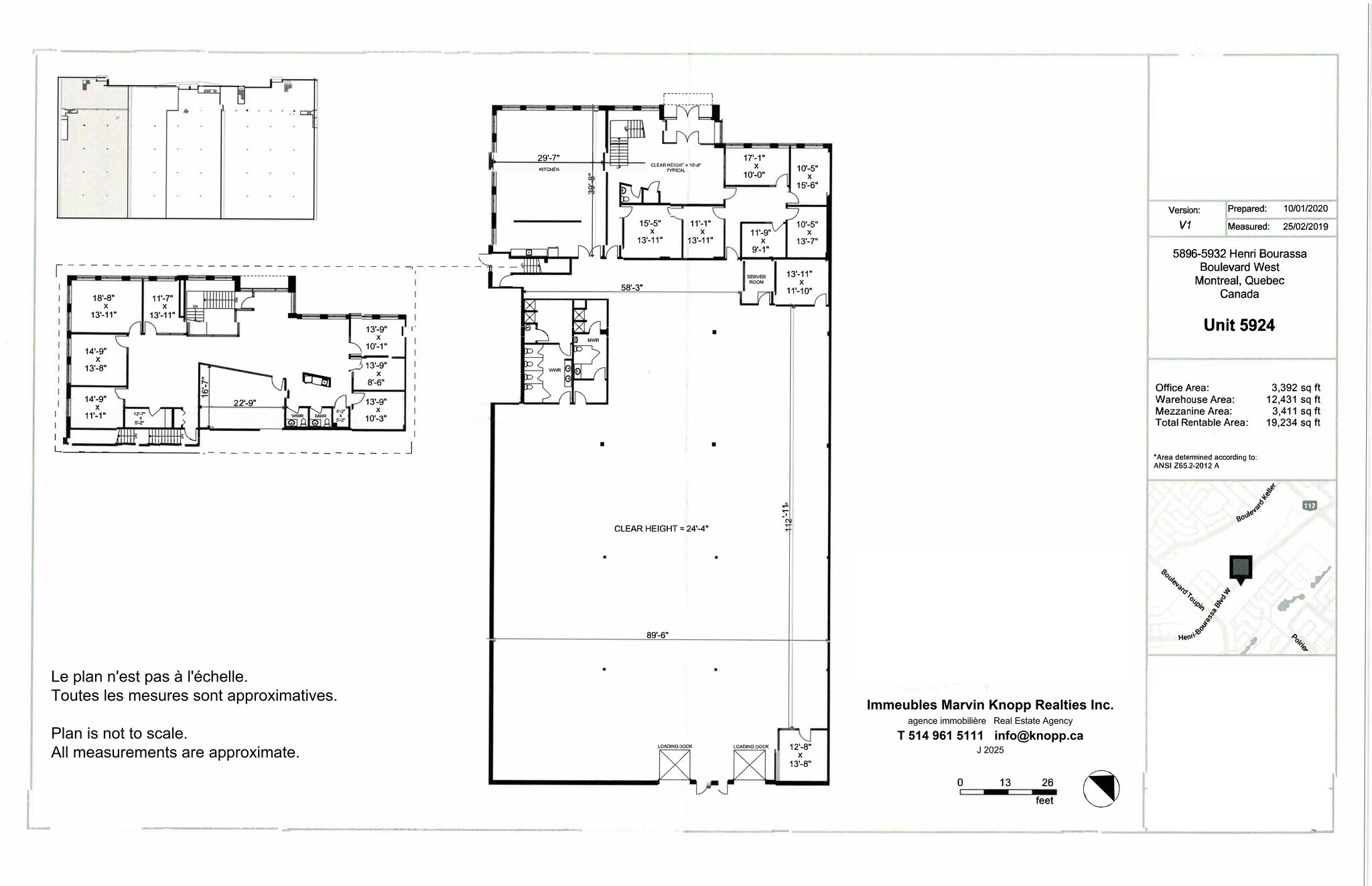
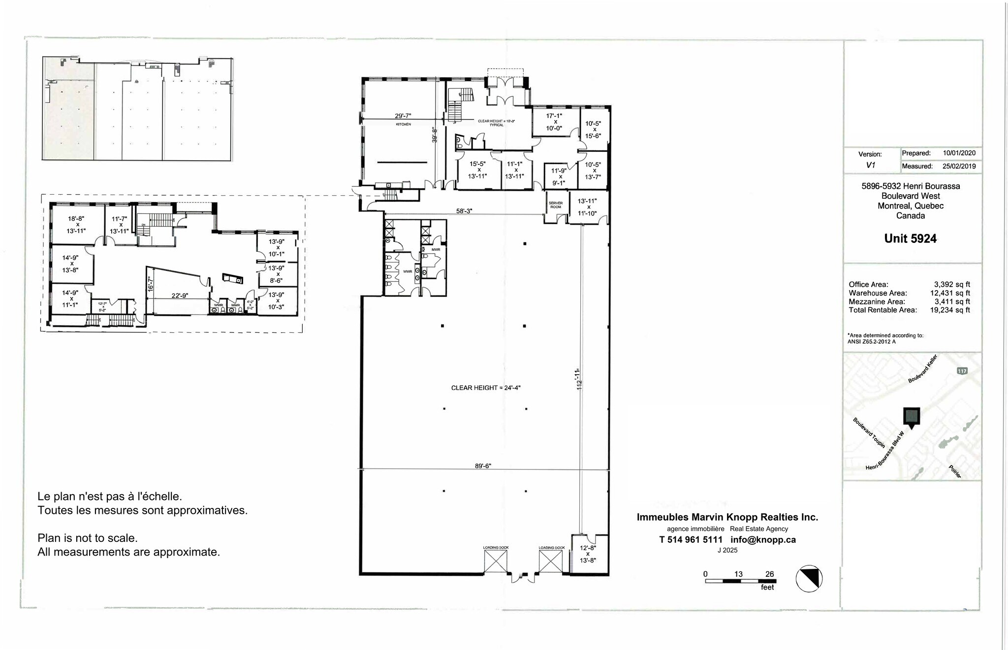
The premises is located on 2 floors with multiple washrooms and kitchens. It has an abundance of power and 2 dock doors levelers with electric dock levelers. The entire office space is air-conditioned. The office space is well appointed. The property has a timeless brick facade and upgraded materials were used in the construction. This Property was built in 2001 as part of this prestigious industrial complex of 4 high caliber multi-tenant buildings. This offering does not constitute a promise or offer to sell or lease that could bind the property owner, but an invitation to submit such a promise or an offer. The information contained herein has been obtained from sources deemed reliable, interested parties should complete a due diligence inspection. This information may change and the property may be withdrawn from the market without notice.
- Lease rate does not include utilities, property expenses or building services
- Space is in Excellent Condition
- Includes 6,800 SF of dedicated office space
- 2 Loading Docks
| Space | Size | Term | Rental Rate | Space Use | Build-Out | Available |
| 1st Floor - 5924 | 19,234 SF | Negotiable | Upon Request Upon Request Upon Request Upon Request | Industrial | Partial Build-Out | 30 Days |
1st Floor - 5924
| Size |
| 19,234 SF |
| Term |
| Negotiable |
| Rental Rate |
| Upon Request Upon Request Upon Request Upon Request |
| Space Use |
| Industrial |
| Build-Out |
| Partial Build-Out |
| Available |
| 30 Days |
1st Floor - 5924
| Size | 19,234 SF |
| Term | Negotiable |
| Rental Rate | Upon Request |
| Space Use | Industrial |
| Build-Out | Partial Build-Out |
| Available | 30 Days |
The premises is located on 2 floors with multiple washrooms and kitchens. It has an abundance of power and 2 dock doors levelers with electric dock levelers. The entire office space is air-conditioned. The office space is well appointed. The property has a timeless brick facade and upgraded materials were used in the construction. This Property was built in 2001 as part of this prestigious industrial complex of 4 high caliber multi-tenant buildings. This offering does not constitute a promise or offer to sell or lease that could bind the property owner, but an invitation to submit such a promise or an offer. The information contained herein has been obtained from sources deemed reliable, interested parties should complete a due diligence inspection. This information may change and the property may be withdrawn from the market without notice.
- Lease rate does not include utilities, property expenses or building services
- Includes 6,800 SF of dedicated office space
- Space is in Excellent Condition
- 2 Loading Docks
Property Overview
The building was constructed in 2001 as part of this prestigious industrial complex of 4 high caliber multi-tenant buildings. The premises is fully air-conditioned, has 2 washrooms and a kitchen area. The warehouse is 24' clear with 2 dock doors and electric levelers. The premises was used for office, research and laboratory for medical devises and is in pristine condition. The property has a timeless brick facade and upgraded materials were used in the construction. Located in the Saint-Laurent Industrial Park, an established business park environment that is home to many national and international corporations, the property offers easy access to the Trans-Canada Highway (40), the Chomedey Autoroute (13), the Laurentian Autoroute (15), Marcel-Laurin (117) and access to public transportation is excellent with an STM bus stop in front of the property and the STM train station one block away. Restaurants and other employee amenities are located in the immediate vicinity. This offering does not constitute a promise or offer to sell or lease that could bind the property owner, but an invitation to submit such a promise or an offer. The information contained herein has been obtained from sources deemed reliable, interested parties should complete a due diligence inspection. This information may change and the property may be withdrawn from the market without notice.
Distribution Facility Facts
Presented by
5896-5932 Boul Henri-Bourassa O
Hmm, there seems to have been an error sending your message. Please try again.
Thanks! Your message was sent.







