Your email has been sent.
One Grand Central Place 60 E 42nd St 287 - 5,413 SF of Retail Space Available in New York, NY 10165



Highlights
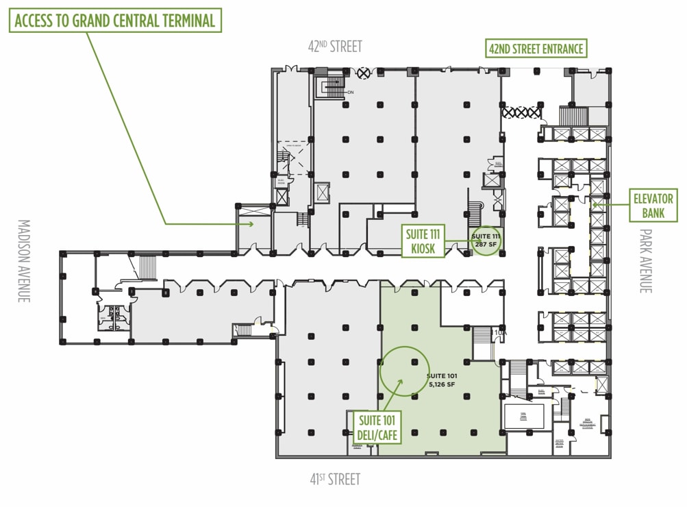
- Directly across from Grand Central Terminal with in-building access to all mass transportation
- 326,000+ neighborhood office workers who annually earn a combined $11.3 Billion
- Freight entrance on 41st Street to support operations
- 750,000+ daily commuters and tourists at Grand Central Terminal
- In-building conference center presents catering and coffee service opportunities
- Built-in weekday breakfast and lunch demand
All Available Spaces(2)
Display Rental Rate as
- Space
- Size
- Term
- Rental Rate
- Space Use
- Build-Out
- Available
• 14.5’ ceiling heights • Prominent lobby kiosk - high-velocity commuter trade • Current use: newsstand (turnkey footprint for quick-service retail) • Customer access through main lobby • Signage: directory and interior signage • Utilities and storage
- Fully Built-Out as Standard Retail Space
- Finished Ceilings: 14’5”
- Located in-line with other retail
• 13.5’ ceiling heights • Lobby-adjacent retail with strong office and transit-driven demand • Current use: deli & buet (existing food-service footprint) • Open to all uses. Physical Therapy, Fitness, and Dry uses considered • Customer queueing and seating configuration subject to layout and approvals
- Fully Built-Out as a Restaurant or Café Space
- Finished Ceilings: 13’5”
- Located in-line with other retail
| Space | Size | Term | Rental Rate | Space Use | Build-Out | Available |
| Lobby, Ste 111 | 287 SF | Negotiable | Upon Request Upon Request Upon Request Upon Request | Retail | Full Build-Out | 30 Days |
| Ground, Ste 101 | 5,126 SF | Negotiable | Upon Request Upon Request Upon Request Upon Request | Retail | Full Build-Out | 30 Days |
Lobby, Ste 111
| Size |
| 287 SF |
| Term |
| Negotiable |
| Rental Rate |
| Upon Request Upon Request Upon Request Upon Request |
| Space Use |
| Retail |
| Build-Out |
| Full Build-Out |
| Available |
| 30 Days |
Ground, Ste 101
| Size |
| 5,126 SF |
| Term |
| Negotiable |
| Rental Rate |
| Upon Request Upon Request Upon Request Upon Request |
| Space Use |
| Retail |
| Build-Out |
| Full Build-Out |
| Available |
| 30 Days |
Lobby, Ste 111
| Size | 287 SF |
| Term | Negotiable |
| Rental Rate | Upon Request |
| Space Use | Retail |
| Build-Out | Full Build-Out |
| Available | 30 Days |
• 14.5’ ceiling heights • Prominent lobby kiosk - high-velocity commuter trade • Current use: newsstand (turnkey footprint for quick-service retail) • Customer access through main lobby • Signage: directory and interior signage • Utilities and storage
- Fully Built-Out as Standard Retail Space
- Located in-line with other retail
- Finished Ceilings: 14’5”
Ground, Ste 101
| Size | 5,126 SF |
| Term | Negotiable |
| Rental Rate | Upon Request |
| Space Use | Retail |
| Build-Out | Full Build-Out |
| Available | 30 Days |
• 13.5’ ceiling heights • Lobby-adjacent retail with strong office and transit-driven demand • Current use: deli & buet (existing food-service footprint) • Open to all uses. Physical Therapy, Fitness, and Dry uses considered • Customer queueing and seating configuration subject to layout and approvals
- Fully Built-Out as a Restaurant or Café Space
- Located in-line with other retail
- Finished Ceilings: 13’5”
Select Tenants
- Floor
- Tenant Name
- Industry
- 16th
- Belkin Burden Goldman, LLP
- Professional, Scientific, and Technical Services
- GRND
- Blue Bottle Coffee
- Accommodation and Food Services
- GRND
- Chase Bank
- Finance and Insurance
- 11th
- Dime Community Bank
- Finance and Insurance
- Multiple
- GLG
- Professional, Scientific, and Technical Services
- Multiple
- Haver Analytics
- Professional, Scientific, and Technical Services
- Multiple
- iCapital
- Finance and Insurance
- 29th
- Johnson Controls Inc
- Construction
- Multiple
- Sol de Janeiro USA
- Manufacturing
- Multiple
- Stark Office Suites
- Real Estate
Property Facts
Features and Amenities
- Atrium
- Banking
- Bus Line
- Commuter Rail
- Conferencing Facility
- Convenience Store
- Food Service
- Metro/Subway
- Property Manager on Site
- Restaurant
- Security System
- Energy Star Labeled
- Air Conditioning
Nearby Major Retailers
Presented by
Company Not Provided
One Grand Central Place | 60 E 42nd St
Hmm, there seems to have been an error sending your message. Please try again.
Thanks! Your message was sent.


