Votre courriel a été envoyé.
1041 Boul Pierre-Bertrand 23 974 pi² d'espace disponible • Industriel • Québec, QC G1M 2E8



Certaines informations ont été traduites automatiquement.
Faits saillants de la sous-location
- Emplacement de choix dans un parc d'affaires prisé au Québec
- Minutes de l'aéroport international Jean-Lesage
- Accès immédiat à l'Autoroute de la Capitale
- Mélange de zonage solide soutenant des utilisations industrielles et commerciales diversifiées
Caractéristiques
Tous les espaces disponibles(1)
Afficher les taux de location en
- Espace
- Taille
- Terme
- Taux de location
- Utilisation de l’espace
- Aménagement
- Disponible
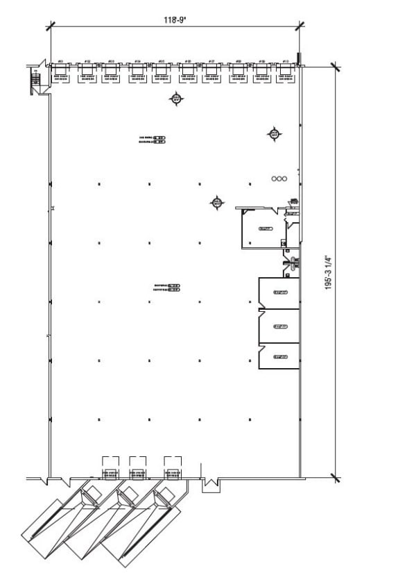
Avec 23 974 pieds carrés d'espace au rez-de-chaussée, la propriété offre une hauteur libre de 23 pieds, garantissant des capacités optimales de rayonnage et de stockage. Le bâtiment est équipé de 13 quais de chargement, stratégiquement répartis entre les sections nord et sud pour optimiser les processus d'expédition et de réception.
- Espace de sous-location disponible auprès du locataire actuel
- 13 quais de chargement
| Espace | Taille | Terme | Taux de location | Utilisation de l’espace | Aménagement | Disponible |
| 1er étage | 23 974 pi² | Août 2026 | Sur demande Sur demande Sur demande Sur demande | Industriel | construction partielle | 30 jours |
1er étage
| Taille |
| 23 974 pi² |
| Terme |
| Août 2026 |
| Taux de location |
| Sur demande Sur demande Sur demande Sur demande |
| Utilisation de l’espace |
| Industriel |
| Aménagement |
| construction partielle |
| Disponible |
| 30 jours |
1er étage
| Taille | 23 974 pi² |
| Terme | Août 2026 |
| Taux de location | Sur demande |
| Utilisation de l’espace | Industriel |
| Aménagement | construction partielle |
| Disponible | 30 jours |
Avec 23 974 pieds carrés d'espace au rez-de-chaussée, la propriété offre une hauteur libre de 23 pieds, garantissant des capacités optimales de rayonnage et de stockage. Le bâtiment est équipé de 13 quais de chargement, stratégiquement répartis entre les sections nord et sud pour optimiser les processus d'expédition et de réception.
- Espace de sous-location disponible auprès du locataire actuel
- 13 quais de chargement
Aperçu de la propriété
Ce bâtiment industriel autonome est stratégiquement situé dans l'un des parcs d'affaires les plus établis de Québec, offrant une connectivité exceptionnelle et une efficacité opérationnelle optimale. La propriété présente un design moderne avec une hauteur libre de 23 pieds, garantissant des capacités de stockage vertical et de rayonnage optimales. Son infrastructure robuste comprend 13 quais de chargement, répartis entre les sections nord et sud, soutenant des opérations d'expédition et de réception à haut volume.
Faits sur l’installation distribution
Sélectionner des locataires
- Étage
- Nom du locataire
- Secteur
- 1ᵉʳ
- Bimbo Canada
- Fabrication
- 1ᵉʳ
- Dollarama
- Détaillant
- 1ᵉʳ
- Juneau & frères
- Détaillant
- 1ᵉʳ
- M2S Électronique
- Fabrication
- 1ᵉʳ
- XPN
- Détaillant
Présenté par
1041 Boul Pierre-Bertrand
Hmm, il semble y avoir eu une erreur lors de l’envoi de votre message. Veuillez réessayer.
Merci! Votre message a été envoyé.


