Votre courriel a été envoyé.
Parkway Connect 10420 City Pky 2 059 pi² d'espace disponible • Commerce de détail • 4 étoiles • Surrey, BC V3T 4X8



Certaines informations ont été traduites automatiquement.
Faits saillants
- Vie en hauteur moderne avec des suites nouvellement construites offrant des finitions modernes, une technologie de maison intelligente et une buanderie dans la suite.
- Emplacement de choix au centre-ville de Surrey offrant une excellente accessibilité à pied et en transport en commun, avec un Walk Score de 91 et un Transit Score de 90.
- Équipements de style complexe comprenant un gymnase entièrement équipé, des salons sur le toit, des salles d'étude, des patios extérieurs avec barbecues, et des installations sécurisées pour le chargement des vélos et des voitures.
Tous les espaces disponibles(1)
Afficher les taux de location en
- Espace
- Taille
- Terme
- Taux de location
- Utilisation de l’espace
- État
- Disponible
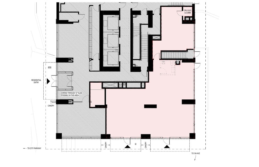
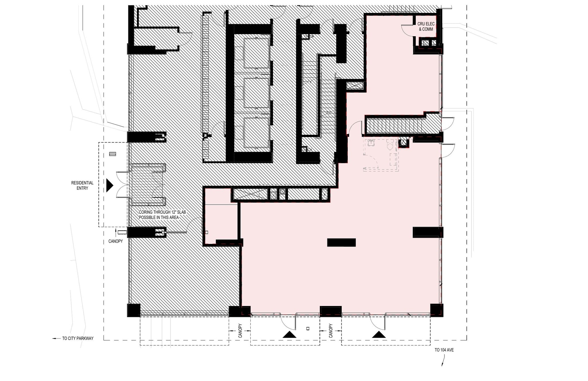
- Entièrement construit comme Espace pour un restaurant ou un café
- Situé en ligne avec d’autres commerces de détail
| Espace | Taille | Terme | Taux de location | Utilisation de l’espace | État | Disponible |
| 1er étage, ste 1 | 2 059 pi² | Négociable | Sur demande Sur demande Sur demande Sur demande | Commerce de détail | construction complète | Maintenant |
1er étage, ste 1
| Taille |
| 2 059 pi² |
| Terme |
| Négociable |
| Taux de location |
| Sur demande Sur demande Sur demande Sur demande |
| Utilisation de l’espace |
| Commerce de détail |
| État |
| construction complète |
| Disponible |
| Maintenant |
1er étage, ste 1
| Taille | 2 059 pi² |
| Terme | Négociable |
| Taux de location | Sur demande |
| Utilisation de l’espace | Commerce de détail |
| État | construction complète |
| Disponible | Maintenant |
- Entièrement construit comme Espace pour un restaurant ou un café
- Situé en ligne avec d’autres commerces de détail
Faits sur la propriété
| Superficie totale disponible | 2 059 pi² | Style d’appartement | De grande hauteur |
| Nombre d’unités | 373 | Taille du bâtiment | 493 509 pi² |
| Type de propriété | Immeuble residentiel | Année de construction | 2025 |
| Sous-type de propriété | Appartement |
| Superficie totale disponible | 2 059 pi² |
| Nombre d’unités | 373 |
| Type de propriété | Immeuble residentiel |
| Sous-type de propriété | Appartement |
| Style d’appartement | De grande hauteur |
| Taille du bâtiment | 493 509 pi² |
| Année de construction | 2025 |
À propos de la propriété
Situé au cœur du centre-ville de Surrey, le 10420 City Parkway—qui abrite le tout nouveau Parkway Connect—offre un mode de vie moderne en hauteur avec une commodité exceptionnelle et un design contemporain. Achevé en 2025, cette communauté de 37 étages et 373 unités propose des logements allant du studio à une chambre et demie, chacun doté d'intérieurs modernes, de buanderies intégrées, de technologies de maison intelligente et de balcons spacieux sur toute la largeur. Le bâtiment offre une impressionnante collection d'équipements pour les résidents, y compris un centre de fitness entièrement équipé, des salons sur le toit, des salles d'étude et de réunion, des espaces sociaux, des zones de BBQ extérieures, ainsi que des installations sécurisées pour vélos et bornes de recharge pour voitures. Avec une gestion sur place très bien notée, un accès 24 heures sur 24, des systèmes de sécurité et des politiques acceptant les animaux de compagnie, les résidents profitent d'une expérience de vie sans souci conçue pour le confort et la connexion. Parfaitement situé à quelques pas des principaux transports en commun—avec un Walk Score de 91 et un Transit Score de 90—la propriété offre un accès inégalé aux boutiques, restaurants, parcs, écoles et au centre urbain en pleine croissance de Surrey, en faisant un foyer idéal pour ceux qui recherchent à la fois le style de vie et la commodité.
Principaux détaillants à proximité
Présenté par
Parkway Connect | 10420 City Pky
Hmm, il semble y avoir eu une erreur lors de l’envoi de votre message. Veuillez réessayer.
Merci! Votre message a été envoyé.

