Votre courriel a été envoyé.
Station Tower 13401 108th Ave 1 346–51 361 pi² d'espace disponible • Bureau • 4 étoiles • Surrey, BC V3T 5T3



Certaines informations ont été traduites automatiquement.
Faits saillants
- 1 stationnement par 100 SF - 150$ sans réservation, 200$ réservés
- Sécurité sur place, bureau habité, accès par carte partout et système d'entrée téléphonique
- Sur la station SkyTrain Gateway
- 5 silos à passagers, 1 silo à marchandises
- Géré par des professionnels
- Fitness, restaurant, services bancaires, pharmacie et épicerie sur le père
Tous les espaces disponibles(6)
Afficher les taux de location en
- Espace
- Taille
- Terme
- Taux de location
- Utilisation de l’espace
- Aménagement
- Disponible
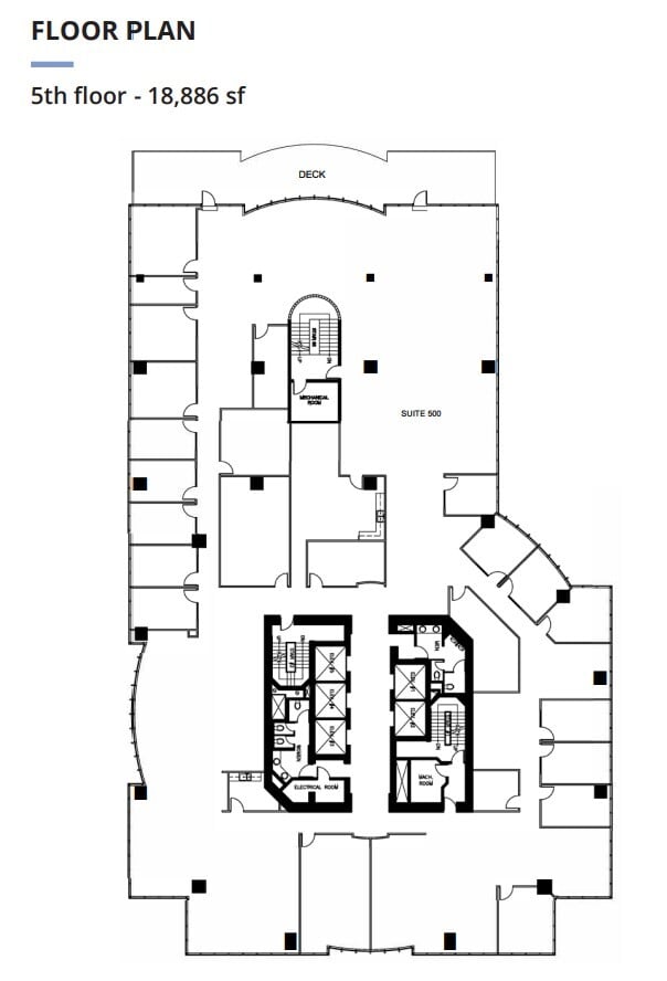
Avison Young est heureux de présenter l'opportunité de louer un espace au 5e étage.
- Le taux de location ne comprend pas les services publics, les services de bâtiment ou les dépenses immobilières.
- Disposition du plan d’étage ouverte en général
- 2 salles de conférence
- Accès aux ascenseurs
- Salle de bains privée
- Sécurité 24 heures sur 24
- Partiellement construit comme Bureau standard
- 16 bureaux privés
- Air central et chauffage
- Balcon
- 5 ascenseurs
- 1 stationnement par 750 sf
Avison Young est heureux de présenter l'opportunité de louer l'intégralité du 6e étage de Station Tower.
- Le taux de location ne comprend pas les services publics, les services de bâtiment ou les dépenses immobilières.
- Disposition du plan d’étage ouverte en général
- Air central et chauffage
- Balcon
- 1 stationnement par 750 sf
- Sécurité 24 heures sur 24
- Partiellement construit comme Bureau standard
- Peut être associé à un ou plusieurs espaces supplémentaires pour obtenir jusqu’à 43 884 pi² d’espace adjacent.
- Accès aux ascenseurs
- Salle de bains privée
- 5 ascenseurs
Avison Young est heureux de présenter l'opportunité de louer l'intégralité du 7ème étage de Station Tower.
- Le taux de location ne comprend pas les services publics, les services de bâtiment ou les dépenses immobilières.
- Disposition du plan d’étage ouverte en général
- Air central et chauffage
- Salle de bains privée
- 5 ascenseurs
- Partiellement construit comme Bureau standard
- Peut être associé à un ou plusieurs espaces supplémentaires pour obtenir jusqu’à 43 884 pi² d’espace adjacent.
- Accès aux ascenseurs
- 1 stationnement par 750 sf
- Sécurité 24 heures sur 24
Avison Young est heureux de présenter l'opportunité de louer l'intégralité du 8e étage de Station Tower.
- Le taux de location ne comprend pas les services publics, les services de bâtiment ou les dépenses immobilières.
- Disposition du plan d’étage ouverte en général
- Air central et chauffage
- Salle de bains privée
- Sécurité 24 heures sur 24
- Partiellement construit comme Bureau standard
- Peut être associé à un ou plusieurs espaces supplémentaires pour obtenir jusqu’à 43 884 pi² d’espace adjacent.
- Accès aux ascenseurs
- 1 stationnement par 750 sf
- 5 ascenseurs
Avison Young est heureux de présenter l'opportunité de louer un espace au 10e étage.
- Le taux de location ne comprend pas les services publics, les services de bâtiment ou les dépenses immobilières.
- Disposition du plan d’étage ouverte en général
- Air central et chauffage
- Accès aux ascenseurs
- 1 stationnement par 750 sf
- Sécurité 24 heures sur 24
- Partiellement construit comme Bureau standard
- Salles de conférence
- Cuisine
- Salle de bains privée
- 5 ascenseurs
Station Tower à la station de SkyTrain Gateway est l'une des principales tours de bureaux suburbaines de Metro Vancouver. La propriété est stratégiquement située au cœur du centre-ville de Surrey, au nord de la 108e Avenue et à l'ouest du boulevard King George. Cette tour de bureaux de 18 étages fait partie d'un complexe de 20 acres, semblable à un campus, surplombant le fleuve Fraser et offrant des vues à couper le souffle. Station Tower comprend 220 000 pieds carrés de bureaux de classe A avec d'excellentes commodités pour les locataires, y compris une salle de fitness complète ainsi que des installations de vente au détail et de restauration.
- Partiellement construit comme Bureau standard
- Disposition du plan d’étage ouverte
| Espace | Taille | Terme | Taux de location | Utilisation de l’espace | Aménagement | Disponible |
| 5e étage, ste 501 | 1 346 pi² | 1-10 ans | Sur demande Sur demande Sur demande Sur demande | Bureau | construction partielle | Maintenant |
| 6e étage | 17 590 pi² | 1-10 ans | Sur demande Sur demande Sur demande Sur demande | Bureau | construction partielle | Maintenant |
| 7e étage | 13 914 pi² | 1-10 ans | Sur demande Sur demande Sur demande Sur demande | Bureau | construction partielle | Maintenant |
| 8e étage | 12 380 pi² | 1-10 ans | Sur demande Sur demande Sur demande Sur demande | Bureau | construction partielle | Maintenant |
| 10e étage, ste 1010 | 3 484 pi² | 1-10 ans | Sur demande Sur demande Sur demande Sur demande | Bureau | construction partielle | Maintenant |
| 17e étage, ste 1730 | 2 647 pi² | Négociable | Sur demande Sur demande Sur demande Sur demande | Bureau | construction partielle | 2026-06-01 |
5e étage, ste 501
| Taille |
| 1 346 pi² |
| Terme |
| 1-10 ans |
| Taux de location |
| Sur demande Sur demande Sur demande Sur demande |
| Utilisation de l’espace |
| Bureau |
| Aménagement |
| construction partielle |
| Disponible |
| Maintenant |
6e étage
| Taille |
| 17 590 pi² |
| Terme |
| 1-10 ans |
| Taux de location |
| Sur demande Sur demande Sur demande Sur demande |
| Utilisation de l’espace |
| Bureau |
| Aménagement |
| construction partielle |
| Disponible |
| Maintenant |
7e étage
| Taille |
| 13 914 pi² |
| Terme |
| 1-10 ans |
| Taux de location |
| Sur demande Sur demande Sur demande Sur demande |
| Utilisation de l’espace |
| Bureau |
| Aménagement |
| construction partielle |
| Disponible |
| Maintenant |
8e étage
| Taille |
| 12 380 pi² |
| Terme |
| 1-10 ans |
| Taux de location |
| Sur demande Sur demande Sur demande Sur demande |
| Utilisation de l’espace |
| Bureau |
| Aménagement |
| construction partielle |
| Disponible |
| Maintenant |
10e étage, ste 1010
| Taille |
| 3 484 pi² |
| Terme |
| 1-10 ans |
| Taux de location |
| Sur demande Sur demande Sur demande Sur demande |
| Utilisation de l’espace |
| Bureau |
| Aménagement |
| construction partielle |
| Disponible |
| Maintenant |
17e étage, ste 1730
| Taille |
| 2 647 pi² |
| Terme |
| Négociable |
| Taux de location |
| Sur demande Sur demande Sur demande Sur demande |
| Utilisation de l’espace |
| Bureau |
| Aménagement |
| construction partielle |
| Disponible |
| 2026-06-01 |
5e étage, ste 501
| Taille | 1 346 pi² |
| Terme | 1-10 ans |
| Taux de location | Sur demande |
| Utilisation de l’espace | Bureau |
| Aménagement | construction partielle |
| Disponible | Maintenant |
Avison Young est heureux de présenter l'opportunité de louer un espace au 5e étage.
- Le taux de location ne comprend pas les services publics, les services de bâtiment ou les dépenses immobilières.
- Partiellement construit comme Bureau standard
- Disposition du plan d’étage ouverte en général
- 16 bureaux privés
- 2 salles de conférence
- Air central et chauffage
- Accès aux ascenseurs
- Balcon
- Salle de bains privée
- 5 ascenseurs
- Sécurité 24 heures sur 24
- 1 stationnement par 750 sf
6e étage
| Taille | 17 590 pi² |
| Terme | 1-10 ans |
| Taux de location | Sur demande |
| Utilisation de l’espace | Bureau |
| Aménagement | construction partielle |
| Disponible | Maintenant |
Avison Young est heureux de présenter l'opportunité de louer l'intégralité du 6e étage de Station Tower.
- Le taux de location ne comprend pas les services publics, les services de bâtiment ou les dépenses immobilières.
- Partiellement construit comme Bureau standard
- Disposition du plan d’étage ouverte en général
- Peut être associé à un ou plusieurs espaces supplémentaires pour obtenir jusqu’à 43 884 pi² d’espace adjacent.
- Air central et chauffage
- Accès aux ascenseurs
- Balcon
- Salle de bains privée
- 1 stationnement par 750 sf
- 5 ascenseurs
- Sécurité 24 heures sur 24
7e étage
| Taille | 13 914 pi² |
| Terme | 1-10 ans |
| Taux de location | Sur demande |
| Utilisation de l’espace | Bureau |
| Aménagement | construction partielle |
| Disponible | Maintenant |
Avison Young est heureux de présenter l'opportunité de louer l'intégralité du 7ème étage de Station Tower.
- Le taux de location ne comprend pas les services publics, les services de bâtiment ou les dépenses immobilières.
- Partiellement construit comme Bureau standard
- Disposition du plan d’étage ouverte en général
- Peut être associé à un ou plusieurs espaces supplémentaires pour obtenir jusqu’à 43 884 pi² d’espace adjacent.
- Air central et chauffage
- Accès aux ascenseurs
- Salle de bains privée
- 1 stationnement par 750 sf
- 5 ascenseurs
- Sécurité 24 heures sur 24
8e étage
| Taille | 12 380 pi² |
| Terme | 1-10 ans |
| Taux de location | Sur demande |
| Utilisation de l’espace | Bureau |
| Aménagement | construction partielle |
| Disponible | Maintenant |
Avison Young est heureux de présenter l'opportunité de louer l'intégralité du 8e étage de Station Tower.
- Le taux de location ne comprend pas les services publics, les services de bâtiment ou les dépenses immobilières.
- Partiellement construit comme Bureau standard
- Disposition du plan d’étage ouverte en général
- Peut être associé à un ou plusieurs espaces supplémentaires pour obtenir jusqu’à 43 884 pi² d’espace adjacent.
- Air central et chauffage
- Accès aux ascenseurs
- Salle de bains privée
- 1 stationnement par 750 sf
- Sécurité 24 heures sur 24
- 5 ascenseurs
10e étage, ste 1010
| Taille | 3 484 pi² |
| Terme | 1-10 ans |
| Taux de location | Sur demande |
| Utilisation de l’espace | Bureau |
| Aménagement | construction partielle |
| Disponible | Maintenant |
Avison Young est heureux de présenter l'opportunité de louer un espace au 10e étage.
- Le taux de location ne comprend pas les services publics, les services de bâtiment ou les dépenses immobilières.
- Partiellement construit comme Bureau standard
- Disposition du plan d’étage ouverte en général
- Salles de conférence
- Air central et chauffage
- Cuisine
- Accès aux ascenseurs
- Salle de bains privée
- 1 stationnement par 750 sf
- 5 ascenseurs
- Sécurité 24 heures sur 24
17e étage, ste 1730
| Taille | 2 647 pi² |
| Terme | Négociable |
| Taux de location | Sur demande |
| Utilisation de l’espace | Bureau |
| Aménagement | construction partielle |
| Disponible | 2026-06-01 |
Station Tower à la station de SkyTrain Gateway est l'une des principales tours de bureaux suburbaines de Metro Vancouver. La propriété est stratégiquement située au cœur du centre-ville de Surrey, au nord de la 108e Avenue et à l'ouest du boulevard King George. Cette tour de bureaux de 18 étages fait partie d'un complexe de 20 acres, semblable à un campus, surplombant le fleuve Fraser et offrant des vues à couper le souffle. Station Tower comprend 220 000 pieds carrés de bureaux de classe A avec d'excellentes commodités pour les locataires, y compris une salle de fitness complète ainsi que des installations de vente au détail et de restauration.
- Partiellement construit comme Bureau standard
- Disposition du plan d’étage ouverte
Aperçu de la propriété
La tour de la station Gateway SkyTrain est l'une des plus grandes tours de bureaux de banlieue du Grand Vancouver. La propriété est stratégiquement située au cœur du centre-ville de Surrey, au nord de la 108e Avenue et à l'ouest du boulevard King George. Cette tour de bureaux de 18 étages fait partie d'un cadre semblable à un campus de 20 acres surplombant le fleuve Fraser et offrant une vue imprenable. Station Tower comprend 220 000 pieds carrés de locaux à bureaux de classe A offrant d'excellentes commodités pour les locataires, y compris une salle de conditionnement physique complète ainsi que des installations de vente au détail et de restauration.
- Accès 24 heures
- Banque
- Accès contrôlé
- Centre de conditionnement physique
- Métro
- Gestionnaire d'immeuble sur place
- Restaurant
- Système de sécurité
- Affichage
- Accessible aux fauteuils roulants
- Affichage sur monument
- Climatisation
- Détecteur de fumée
- Agents de sécurité sur place
Faits sur la propriété
Présenté par
Station Tower | 13401 108th Ave
Hmm, il semble y avoir eu une erreur lors de l’envoi de votre message. Veuillez réessayer.
Merci! Votre message a été envoyé.












