Se Connecter/S’inscrire
Votre courriel a été envoyé.
19130 24 Av
Surrey, BC V3Z 3S9
Flex Propriété À louer
·
10 211 pi²


Certaines informations ont été traduites automatiquement.
Faits saillants
- Situé dans un parc d'affaires industriel de premier plan offrant une excellente connectivité régionale
- Fonctionnalité améliorée avec des gicleurs ESFR, alimentation électrique triphasée et une cour de chargement de 130 pieds.
- Propriété professionnelle et gérée par le groupe Onni avec des services de soutien axés sur les locataires.
- Aménagements efficaces avec quais de chargement et de déchargement conçus pour soutenir diverses opérations industrielles
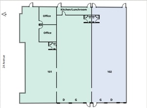
- Amélioration des espaces de bureau, y compris des bureaux privés et un espace cuisine dans l'unité 101
Caractéristiques
Hauteur libre
24’
Baies d’entrée
14
Niveleurs
15
Places de stationnement standard
50
Aperçu de la propriété
Situé juste au sud de la 24e Avenue, entre la 190e Rue et la 192e Rue à South Surrey, le parc d'affaires Campbell Heights East est bien relié à l'autoroute 15, à l'autoroute 99 et se trouve à seulement 15 minutes de la frontière Canada / États-Unis. En tant que l'un des emplacements industriels les plus prisés du Lower Mainland, Campbell Heights bénéficie d'une main-d'œuvre diversifiée provenant de Surrey, Langley et White Rock.
Faits sur l’installation Entrepôt
Taille du bâtiment
54 155 pi²
Taille du lot
3,35 AC
Année de construction
2007
Construction
Béton renforcé
Alimentation électrique
Phase: 3
Zonage
IB-2 - Industriel
1 de 5
Vidéos
Visite extérieure 3D Matterport
Visite 3D Matterport
Photos
Vue depuis la rue
Rue
Carte
