Se Connecter/S’inscrire
Votre courriel a été envoyé.
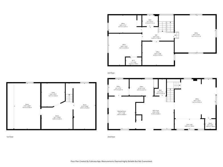
196 King St 3 527 pi² 100% Loué Bureau Immeuble St Catharines, ON L2R 3J7 699 900 $ CAD (198,44 $ CAD/pi²)



Certaines informations ont été traduites automatiquement.
Faits saillants de l'investissement
- 8 places de stationnement sur site
- Centre-ville de St. Catharines - Fort achalandage
- Zonage M2
Résumé de l'annonce
Occasion unique d'acquérir une propriété au centre-ville offrant un immeuble moderne clé en main à usage mixte avec une visibilité exceptionnelle sur rue, un stationnement privé rare sur place (8 espaces) et un potentiel de développement à long terme remarquable. Idéal pour les investisseurs ou les exploitants propriétaires, cet actif polyvalent combine des composantes commerciales et résidentielles solides avec un zonage flexible M2, permettant une large gamme d'utilisations, y compris le développement commercial, résidentiel ou mixte.
La propriété dispose d'une accueillante véranda enveloppante qui améliore l'attrait extérieur, tandis que le niveau principal offre une disposition fonctionnelle et adaptable convenant à divers usages professionnels. Plusieurs entrées extérieures offrent une excellente flexibilité pour des configurations à locataire unique ou multiple, assurant une accessibilité exceptionnelle et une adaptabilité future. Située sur un corridor très fréquenté du centre-ville, entourée d'entreprises établies, de restaurants, de cafés et de commodités locales, la propriété bénéficie d'une exposition constante et d'un fort achalandage piétonnier.
À quelques pas du Meridian Centre, du FirstOntario Performing Arts Centre, du centre de transit, de la station GO et avec un accès rapide à l'autoroute 406 et à la QEW, l'emplacement offre une connectivité inégalée dans toute la région. Que ce soit pour élargir un portefeuille d'investissement ou sécuriser un emplacement stratégique pour une entreprise en croissance, cette propriété offre une visibilité exceptionnelle, une grande polyvalence et un potentiel de développement futur dans l'un des emplacements les plus recherchés du centre-ville de la ville.
La propriété dispose d'une accueillante véranda enveloppante qui améliore l'attrait extérieur, tandis que le niveau principal offre une disposition fonctionnelle et adaptable convenant à divers usages professionnels. Plusieurs entrées extérieures offrent une excellente flexibilité pour des configurations à locataire unique ou multiple, assurant une accessibilité exceptionnelle et une adaptabilité future. Située sur un corridor très fréquenté du centre-ville, entourée d'entreprises établies, de restaurants, de cafés et de commodités locales, la propriété bénéficie d'une exposition constante et d'un fort achalandage piétonnier.
À quelques pas du Meridian Centre, du FirstOntario Performing Arts Centre, du centre de transit, de la station GO et avec un accès rapide à l'autoroute 406 et à la QEW, l'emplacement offre une connectivité inégalée dans toute la région. Que ce soit pour élargir un portefeuille d'investissement ou sécuriser un emplacement stratégique pour une entreprise en croissance, cette propriété offre une visibilité exceptionnelle, une grande polyvalence et un potentiel de développement futur dans l'un des emplacements les plus recherchés du centre-ville de la ville.
Faits sur la propriété
Type de vente
Investissement ou propriétaire utilisateur
Type de propriété
Taille du bâtiment
3 527 pi²
Classe d’immeuble
C
Année de construction
1870
Prix
699 900 $ CAD
Prix par pi²
198,44 $ CAD
Pourcentage loué
100%
Hauteur du bâtiment
2 étages
Superficie de plancher typique
1 764 pi²
Coefficient d’occupation des sols de l’immeuble
0,62
Taille du lot
0,13 AC
Zonage
M2 - Zonage M2, permettant une large gamme d'utilisations, y compris le commercial, le résidentiel ou le développement à usage mixte.
Stationnement
8 places (2,27 places par 1 000 pi² loué)
Exceptionnellement praticable à pied
90/100
Très facile d’accès en voiture
80/100
Transports en commun exceptionnels
100/100
Moyennement praticable en vélo
60/100
1 de 33
Vidéos
Visite extérieure 3D Matterport
Visite 3D Matterport
Photos
Vue depuis la rue
Rue
Carte
1 de 1
Présenté par
196 King St
Vous êtes déjà membre? Connectez-vous
Hmm, il semble y avoir eu une erreur lors de l’envoi de votre message. Veuillez réessayer.
Merci! Votre message a été envoyé.
