Votre courriel a été envoyé.
228 Queen St W 1 404–4 555 pi² d'espace disponible • Commerce de détail • Toronto, ON M5V 1Z6


Certaines informations ont été traduites automatiquement.
Faits saillants
- Circulation diurne intense
- Circulation piétonnière intense
- Beaucoup de lumière naturelle
Disponibilité des espaces (3)
Afficher les taux de location en
- Espace
- Taille
- Terme
- Taux de location
- Type de loyer
| Espace | Taille | Terme | Taux de location | Type de loyer | ||
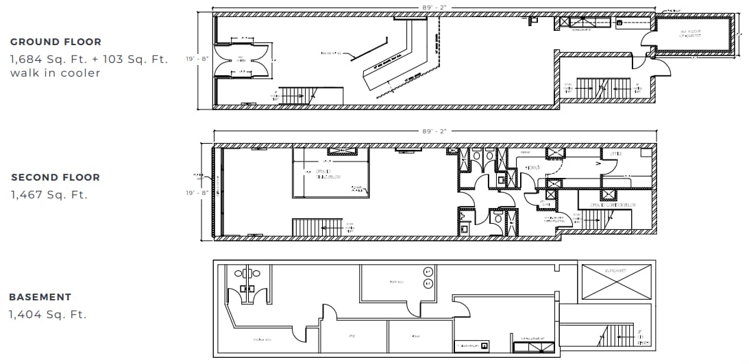
| Sous-sol | 1 404 pi² | 1-10 ans | Sur demande Sur demande Sur demande Sur demande | Loyer hypernet | ||
| 1er étage | 1 684 pi² | 1-10 ans | Sur demande Sur demande Sur demande Sur demande | Loyer hypernet | ||
| 2e étage | 1 467 pi² | 1-10 ans | Sur demande Sur demande Sur demande Sur demande | Loyer hypernet |
Sous-sol
Profitez de cette rare opportunité sur 2 étages à l'intersection de Queen et University. Cette offre permet une grande variété d'usages, tant au rez-de-chaussée qu'à la mezzanine du deuxième étage. Cette unité comprend un sous-sol de 1 404 pieds carrés, une façade de 20 pieds sur Queen West et 3 places de stationnement à l'arrière du bâtiment. La propriété est idéalement située du côté nord de Queen Street West, juste à l'ouest de McCaul Street, au cœur du quartier historique "Queen West", l'un des pôles commerciaux les plus fréquentés du Canada, avec des locataires nationaux et internationaux tels que Starbucks, Subway, Scotiabank, Chipotle et Chick-fil-A.
- Le taux de location ne comprend pas les services publics, les services de bâtiment ou les dépenses immobilières.
- Partiellement construit comme Espace pour un restaurant ou un café
- Situé en ligne avec d’autres commerces de détail
- Peut être associé à un ou plusieurs espaces supplémentaires pour obtenir jusqu’à 4 555 pi² d’espace adjacent.
- Air central et chauffage
- Salle de bains privée
- Hauts plafonds
- Excellent espace de vente au détail.
1er étage
Profitez de cette rare opportunité sur 2 étages à l'intersection de Queen et University. Cette offre permet une grande variété d'usages, tant au rez-de-chaussée qu'à la mezzanine du deuxième étage. Cette unité comprend un sous-sol de 1 404 pieds carrés, une façade de 20 pieds sur Queen West et 3 places de stationnement à l'arrière du bâtiment. La propriété est idéalement située du côté nord de Queen Street West, juste à l'ouest de McCaul Street, au cœur du quartier historique "Queen West", l'un des pôles commerciaux les plus fréquentés du Canada, avec des locataires nationaux et internationaux tels que Starbucks, Subway, Scotiabank, Chipotle et Chick-fil-A.
- Le taux de location ne comprend pas les services publics, les services de bâtiment ou les dépenses immobilières.
- Partiellement construit comme Espace pour un restaurant ou un café
- Situé en ligne avec d’autres commerces de détail
- Peut être associé à un ou plusieurs espaces supplémentaires pour obtenir jusqu’à 4 555 pi² d’espace adjacent.
- Air central et chauffage
- Salle de bains privée
- Hauts plafonds
- Excellent espace de vente au détail.
2e étage
Profitez de cette rare opportunité sur 2 étages à l'intersection de Queen et University. Cette offre permet une grande variété d'usages, tant au rez-de-chaussée qu'à la mezzanine du deuxième étage. Cette unité comprend un sous-sol de 1 404 pieds carrés, une façade de 20 pieds sur Queen West et 3 places de stationnement à l'arrière du bâtiment. La propriété est idéalement située du côté nord de Queen Street West, juste à l'ouest de McCaul Street, au cœur du quartier historique "Queen West", l'un des pôles commerciaux les plus animés du Canada, regroupant des enseignes nationales et des locataires tels que Starbucks, Subway, Scotiabank, Chipotle et Chick-fil-A.
- Le taux de location ne comprend pas les services publics, les services de bâtiment ou les dépenses immobilières.
- Partiellement construit comme Espace pour un restaurant ou un café
- Situé en ligne avec d’autres commerces de détail
- Peut être associé à un ou plusieurs espaces supplémentaires pour obtenir jusqu’à 4 555 pi² d’espace adjacent.
- Air central et chauffage
- Salle de bains privée
- Hauts plafonds
- Excellent espace de vente au détail.
Types de loyers
Le type et le montant du loyer que le locataire (preneur) est tenu de payer au propriétaire (bailleur) sur la durée du bail sont négociés avant la signature du bail par les deux parties. Le type de loyer varie selon les services fournis. Par exemple, le prix d’un loyer hypernet est habituellement inférieur à celui d’un bail à service complet puisque le locataire est tenu d’assumer des dépenses additionnelles par rapport au loyer de base. Contactez le courtier inscripteur pour tout connaître sur les frais connexes et additionnels associés à chaque type de loyer.
1. Service complet: Un taux de location qui comprend des services standards liés à l’immeuble fournis par le propriétaire dans le cadre d’une location annuelle de base.
2. Loyer supernet: Le locataire paie seulement deux des frais de l’immeuble. Le propriétaire et le locataire déterminent ces frais spécifiques avant la signature du bail.
3. Loyer hypernet: Un bail en vertu duquel le locataire est responsable de tous les frais liés à sa part proportionnelle d’occupation de l’immeuble.
4. Brut modifié: Le loyer brut modifié désigne un type général de taux de location dans lequel le locataire est habituellement responsable de sa part proportionnelle d’un ou de plusieurs frais. C’est le propriétaire qui paie les frais restants. Considérez les structures tarifaires courantes suivantes applicables aux loyers bruts modifiés: 4. Plus les services: Un type de bail brut modifié suivant lequel le locataire est responsable de sa part proportionnelle des coûts des services publics, en plus du loyer. 4. Plus le nettoyage: Un type de bail brut modifié suivant lequel le locataire est responsable de sa part proportionnelle des coûts de nettoyage, en plus du loyer. 4. Plus l'électricité: Un type de bail brut modifié suivant lequel le locataire est responsable de sa part proportionnelle des coûts d’électricité, en plus du loyer. 4. Plus l’électricité et le nettoyage: Un type de bail brut modifié dans lequel le locataire est responsable de sa part proportionnelle des coûts d’électricité et de nettoyage, en plus du loyer. 4. Plus les services publics et le nettoyage: Un type de bail brut modifié dans lequel le locataire est responsable de sa part proportionnelle des coûts des services publics et de nettoyage, en plus du loyer. 4. Bail industriel brut: Un type de bail brut modifié dans lequel le locataire paie un ou plusieurs des frais, en plus du loyer. Le propriétaire et le locataire déterminent ces frais spécifiques avant la signature du bail.
5. L’électricité est à la charge du locataire: Le propriétaire paie pour tous les services et le locataire est responsable de sa propre utilisation de l’éclairage et des prises électriques dans l’espace qu’il occupe.
6. Négociable ou sur demande: Cette option est utilisée lorsque le contact de location ne précise pas le type de loyer ou de service.
7. À déterminer: À déterminer ; utilisé pour les immeubles dont le type de services ou de loyer n’est pas connu, souvent quand l’immeuble n’est pas encore construit.
Faits sur la propriété
| Superficie totale disponible | 4 555 pi² | Superficie commerciale brute | 4 555 pi² |
| Type de propriété | Commerce de détail | Année de construction | 1988 |
| Sous-type de propriété | Boutique | Ratio de stationnement | 0,66/1 000 pi² |
| Superficie totale disponible | 4 555 pi² |
| Type de propriété | Commerce de détail |
| Sous-type de propriété | Boutique |
| Superficie commerciale brute | 4 555 pi² |
| Année de construction | 1988 |
| Ratio de stationnement | 0,66/1 000 pi² |
À propos de la propriété
Situé dans le quartier historique de Queen West, ce coin très médiatisé bénéficie d'une importante circulation quotidienne des piétons et des véhicules.
- Ligne d'autobus
- Train de banlieue
- Métro
- Affichage
Principaux détaillants à proximité
Présenté par
228 Queen St W
Hmm, il semble y avoir eu une erreur lors de l’envoi de votre message. Veuillez réessayer.
Merci! Votre message a été envoyé.



