Votre courriel a été envoyé.
Certaines informations ont été traduites automatiquement.
Faits saillants de l'investissement
- Stationnement pour remorques disponible sur place.
- Accès pratique à l'autoroute 15 et à la route 219 pour une connectivité régionale.
- Accès à un bassin de main-d'œuvre de plus de 20 000 travailleurs dans un rayon de 15 km, avec une forte représentation dans les secteurs des métiers et des transports.
- La capacité électrique élevée de 3 000 ampères favorise une utilisation industrielle intensive.
- Situé à 25 minutes de la frontière américaine à Lacolle, facilitant la logistique transfrontalière.
Résumé de l'annonce
Idéalement située près des autoroutes 15 et de la route 219, la propriété bénéficie d'une excellente connectivité aux principaux corridors de transport et se trouve à seulement 25 minutes de la frontière américaine à Lacolle, ce qui en fait une option attrayante pour le commerce transfrontalier et la distribution régionale. Le bassin de main-d'œuvre environnant, composé de plus de 20 000 travailleurs dans un rayon de 15 km, soutient la croissance opérationnelle, en particulier dans les secteurs des métiers, du transport et de la construction. Cet actif représente une excellente opportunité pour les investisseurs à la recherche d'une installation industrielle bien située, disponible immédiatement et offrant un potentiel d'expansion.
Faits sur la propriété
| Type de vente | Investissement ou propriétaire utilisateur | Nombre d’étages | 1 |
| Condition de vente | Option du bail | Année de construction | 1972 |
| Type de propriété | Industriel | Location | Unique |
| Sous-type de propriété | Manufacture | Effacer hauteur du plafond | 16’ |
| Classe d’immeuble | B | Nbre de quais à portes élevées/de chargement | 9 |
| Taille du lot | 7,20 AC | Nbre d’entrées dans les portes/au niveau du sol | 2 |
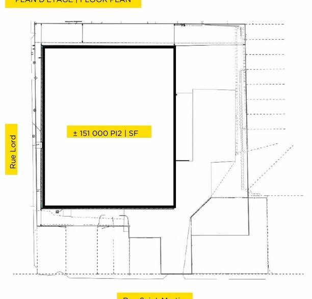
| Aire du bâtiment louable | 151 000 pi² |
| Type de vente | Investissement ou propriétaire utilisateur |
| Condition de vente | Option du bail |
| Type de propriété | Industriel |
| Sous-type de propriété | Manufacture |
| Classe d’immeuble | B |
| Taille du lot | 7,20 AC |
| Aire du bâtiment louable | 151 000 pi² |
| Nombre d’étages | 1 |
| Année de construction | 1972 |
| Location | Unique |
| Effacer hauteur du plafond | 16’ |
| Nbre de quais à portes élevées/de chargement | 9 |
| Nbre d’entrées dans les portes/au niveau du sol | 2 |
Disponibilité des espaces
- Espace
- Taille
- Utilisation de l’espace
- Aménagement
- Disponible
Ce bâtiment industriel offre des options de location flexibles allant de 25 000 à 151 000 pieds carrés, répondant à une variété de besoins opérationnels. La propriété dispose d'une hauteur libre de 16 pieds, d'un éclairage LED et d'une capacité électrique élevée de 3 000 ampères, idéale pour des exigences de puissance importantes. Avec neuf portes de quai et deux portes au niveau du sol, l'installation est optimisée pour des opérations efficaces de réception et d'expédition. Situé à Napierville, le site bénéficie d'une proximité avec l'autoroute 15 et la route 219, offrant un accès direct à Montréal et à la frontière américaine en moins de 25 minutes. Le stationnement pour remorques sur place et un espacement des colonnes de 25’ x 20’ améliorent la manœuvrabilité et les capacités de stockage. Disponible dans un délai de 30 jours, cette propriété est idéale pour les entreprises à la recherche d'un espace industriel bien connecté et prêt à répondre à des besoins énergétiques dans un emplacement stratégique.
| Espace | Taille | Utilisation de l’espace | Aménagement | Disponible |
| 1er étage | 25 000 à 151 000 pi² | Industriel | construction partielle | 30 jours |
1er étage
| Taille |
| 25 000 à 151 000 pi² |
| Utilisation de l’espace |
| Industriel |
| Aménagement |
| construction partielle |
| Disponible |
| 30 jours |
1er étage
| Taille | 25 000 à 151 000 pi² |
| Utilisation de l’espace | Industriel |
| Aménagement | construction partielle |
| Disponible | 30 jours |
Ce bâtiment industriel offre des options de location flexibles allant de 25 000 à 151 000 pieds carrés, répondant à une variété de besoins opérationnels. La propriété dispose d'une hauteur libre de 16 pieds, d'un éclairage LED et d'une capacité électrique élevée de 3 000 ampères, idéale pour des exigences de puissance importantes. Avec neuf portes de quai et deux portes au niveau du sol, l'installation est optimisée pour des opérations efficaces de réception et d'expédition. Situé à Napierville, le site bénéficie d'une proximité avec l'autoroute 15 et la route 219, offrant un accès direct à Montréal et à la frontière américaine en moins de 25 minutes. Le stationnement pour remorques sur place et un espacement des colonnes de 25’ x 20’ améliorent la manœuvrabilité et les capacités de stockage. Disponible dans un délai de 30 jours, cette propriété est idéale pour les entreprises à la recherche d'un espace industriel bien connecté et prêt à répondre à des besoins énergétiques dans un emplacement stratégique.
Présenté par
260 Rue Lord
Hmm, il semble y avoir eu une erreur lors de l’envoi de votre message. Veuillez réessayer.
Merci! Votre message a été envoyé.






