Votre courriel a été envoyé.
Kincaid Bldg 4225 Kincaid St 3 000–11 000 pi² d'espace disponible • Bureau • Burnaby, BC V5G 4P5



Certaines informations ont été traduites automatiquement.
Faits saillants de la sous-location
- Accès en commun à la station Gilmore Skytrain
- Beaucoup de places de stationnement
- Bureaux, laboratoires et immeubles industriels flexibles
- Appelez pour une visite.
Tous les espaces disponibles(1)
Afficher les taux de location en
- Espace
- Taille
- Terme
- Taux de location
- Utilisation de l’espace
- État
- Disponible
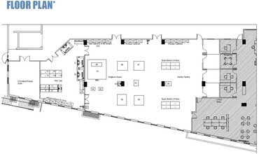
Situé dans le prestigieux Discovery Place Business Park de Burnaby, le 4225 Kincaid Street offre une rare opportunité de sous-location pour les utilisateurs des secteurs de la haute technologie, des sciences de la vie et de l'industrie à la recherche d'un emplacement flexible et bien connecté. Cet espace sur deux niveaux propose un mélange modulaire de laboratoires, de bureaux et d'espaces flexibles, avec jusqu'à 11 000 pieds carrés disponibles et des options à partir de 3 000 pieds carrés. La composante laboratoire comprend trois hottes (dont une accessible à pied), deux bancs avec évier et une salle de stockage de produits chimiques dédiée. Les zones de bureaux et d'espaces flexibles offrent des postes de travail ouverts, quatre bureaux privés et des zones prêtes pour l'ingénierie, le tout soutenu par un accès facile pour le chargement et la livraison. Le bâtiment est équipé de puits de lumière, de 16 caméras de vidéosurveillance, d'un espace de rangement sécurisé pour vélos, de stationnements souterrains et en surface, ainsi que d'installations de remise en forme avec douches. Avec un terme de sous-location allant jusqu'en septembre 2029 et un taux de location brut bas, cet espace est une option attrayante pour les entreprises cherchant à s'implanter stratégiquement dans le corridor d'innovation de la région métropolitaine de Vancouver.
- Espace de sous-location disponible auprès du locataire actuel
- Entièrement construit comme Espace de recherche et développement
- Convient pour 8 à 88 personnes
- Laboratoire
- Entreposage sécurisé
- Espace total de 11 000 pieds carrés
- Hottes et entreposage de produits chimiques
- Idéal pour la haute technologie et les sciences de la vie
- Le taux de location ne comprend pas les services publics, les services de bâtiment ou les dépenses immobilières.
- Disposition du plan d’étage ouverte en général
- 4 bureaux privés
- Système de sécurité
- Lumière naturelle
- Zone de laboratoire de 2 000 pieds carrés
- Accès facile aux transports en commun et aux autoroutes
| Espace | Taille | Terme | Taux de location | Utilisation de l’espace | État | Disponible |
| 2e étage | 3 000 à 11 000 pi² | Sept. 2029 | Sur demande Sur demande Sur demande Sur demande | Bureau | construction complète | Maintenant |
2e étage
| Taille |
| 3 000 à 11 000 pi² |
| Terme |
| Sept. 2029 |
| Taux de location |
| Sur demande Sur demande Sur demande Sur demande |
| Utilisation de l’espace |
| Bureau |
| État |
| construction complète |
| Disponible |
| Maintenant |
2e étage
| Taille | 3 000 à 11 000 pi² |
| Terme | Sept. 2029 |
| Taux de location | Sur demande |
| Utilisation de l’espace | Bureau |
| État | construction complète |
| Disponible | Maintenant |
Situé dans le prestigieux Discovery Place Business Park de Burnaby, le 4225 Kincaid Street offre une rare opportunité de sous-location pour les utilisateurs des secteurs de la haute technologie, des sciences de la vie et de l'industrie à la recherche d'un emplacement flexible et bien connecté. Cet espace sur deux niveaux propose un mélange modulaire de laboratoires, de bureaux et d'espaces flexibles, avec jusqu'à 11 000 pieds carrés disponibles et des options à partir de 3 000 pieds carrés. La composante laboratoire comprend trois hottes (dont une accessible à pied), deux bancs avec évier et une salle de stockage de produits chimiques dédiée. Les zones de bureaux et d'espaces flexibles offrent des postes de travail ouverts, quatre bureaux privés et des zones prêtes pour l'ingénierie, le tout soutenu par un accès facile pour le chargement et la livraison. Le bâtiment est équipé de puits de lumière, de 16 caméras de vidéosurveillance, d'un espace de rangement sécurisé pour vélos, de stationnements souterrains et en surface, ainsi que d'installations de remise en forme avec douches. Avec un terme de sous-location allant jusqu'en septembre 2029 et un taux de location brut bas, cet espace est une option attrayante pour les entreprises cherchant à s'implanter stratégiquement dans le corridor d'innovation de la région métropolitaine de Vancouver.
- Espace de sous-location disponible auprès du locataire actuel
- Le taux de location ne comprend pas les services publics, les services de bâtiment ou les dépenses immobilières.
- Entièrement construit comme Espace de recherche et développement
- Disposition du plan d’étage ouverte en général
- Convient pour 8 à 88 personnes
- 4 bureaux privés
- Laboratoire
- Système de sécurité
- Entreposage sécurisé
- Lumière naturelle
- Espace total de 11 000 pieds carrés
- Zone de laboratoire de 2 000 pieds carrés
- Hottes et entreposage de produits chimiques
- Accès facile aux transports en commun et aux autoroutes
- Idéal pour la haute technologie et les sciences de la vie
Aperçu de la propriété
La propriété est située dans le parc d'affaires Discovery Place de Burnaby, un centre de recherche scientifique et technologique avancée, adjacent au BCIT et près de l'hôpital de Burnaby. Le parc accueille des entreprises de premier plan telles qu'Electronic Arts, HSBC et Telus. Les commodités du bâtiment incluent un espace de rangement sécurisé pour les vélos, un stationnement souterrain et en surface, des puits de lumière partout, une sécurité par CCTV, des installations de fitness et des douches. Le site est très accessible, avec un arrêt de transit directement devant le bâtiment et des connexions rapides aux lignes de SkyTrain Millennium et Expo. Il est à seulement 5 minutes en voiture de l'autoroute Trans-Canada et de The Amazing Brentwood, et à 10 minutes de Metrotown.
- Bio-tech/Laboratoire
- Ligne d'autobus
- Centre de conditionnement physique
- Système de sécurité
- Accessible aux fauteuils roulants
- Affichage sur monument
- Climatisation
- Détecteur de fumée
Faits sur la propriété
Sélectionner des locataires
- Étage
- Nom du locataire
- Secteur
- Inconnu
- Agreeya Mobility Canada Inc
- Information
- 1ᵉʳ
- Eastman Kodak Company
- Fabrication
- 3ᵉ
- Fraser health
- Soins de santé et assistance sociale
- Inconnu
- Rainforest Automation Inc
- Construction
Présenté par
Kincaid Bldg | 4225 Kincaid St
Hmm, il semble y avoir eu une erreur lors de l’envoi de votre message. Veuillez réessayer.
Merci! Votre message a été envoyé.



