Votre courriel a été envoyé.
5433 152nd St
Surrey, BC V3S 8R7
Bldg 100 · Bureau Propriété À louer
·
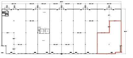
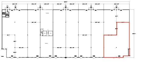
8 170 pi²


Certaines informations ont été traduites automatiquement.
Faits saillants
- Excellente façade de rue avec exposition le long de la rue 152
- Deux (2) portes de chargement à quai à l'arrière (camions de 53 pi interdits)
- 600 volts, 800 ampères, service électrique triphasé à l'ensemble du bâtiment
- Design de bâtiment attrayant avec des vitrages attrayants
- Hauteur du plafond clair de 23 pi
- Entretien des bâtiments de première classe
Caractéristiques
Aperçu de la propriété
Le Colebrook Business Centre se compose de 3 bâtiments multi-locataires totalisant 366 185 pieds carrés et est idéalement situé dans la ville de Surrey, à l'angle sud-est de la 152e Rue et de l'Avenue 54A, au sud de l'autoroute 10. Ce complexe offre aux locataires la possibilité de s'installer dans un bâtiment récent, de première classe, avec une grande visibilité. Ces bâtiments uniques sont très bien situés pour les entreprises intéressées par la vente en gros (y compris certains commerces de détail), car des salles d'exposition à forte visibilité et des aménagements de bureaux peuvent être facilement réalisés. Il est à proximité de toutes les grandes voies de transport vers les autoroutes 91/99, la 176e Rue, le métro de Vancouver et la frontière Canada/États-Unis.
