Votre courriel a été envoyé.
Certaines informations ont été traduites automatiquement.
Caractéristiques
Tous les espaces disponibles(2)
Afficher les taux de location en
- Espace
- Taille
- Terme
- Taux de location
- Utilisation de l’espace
- Aménagement
- Disponible
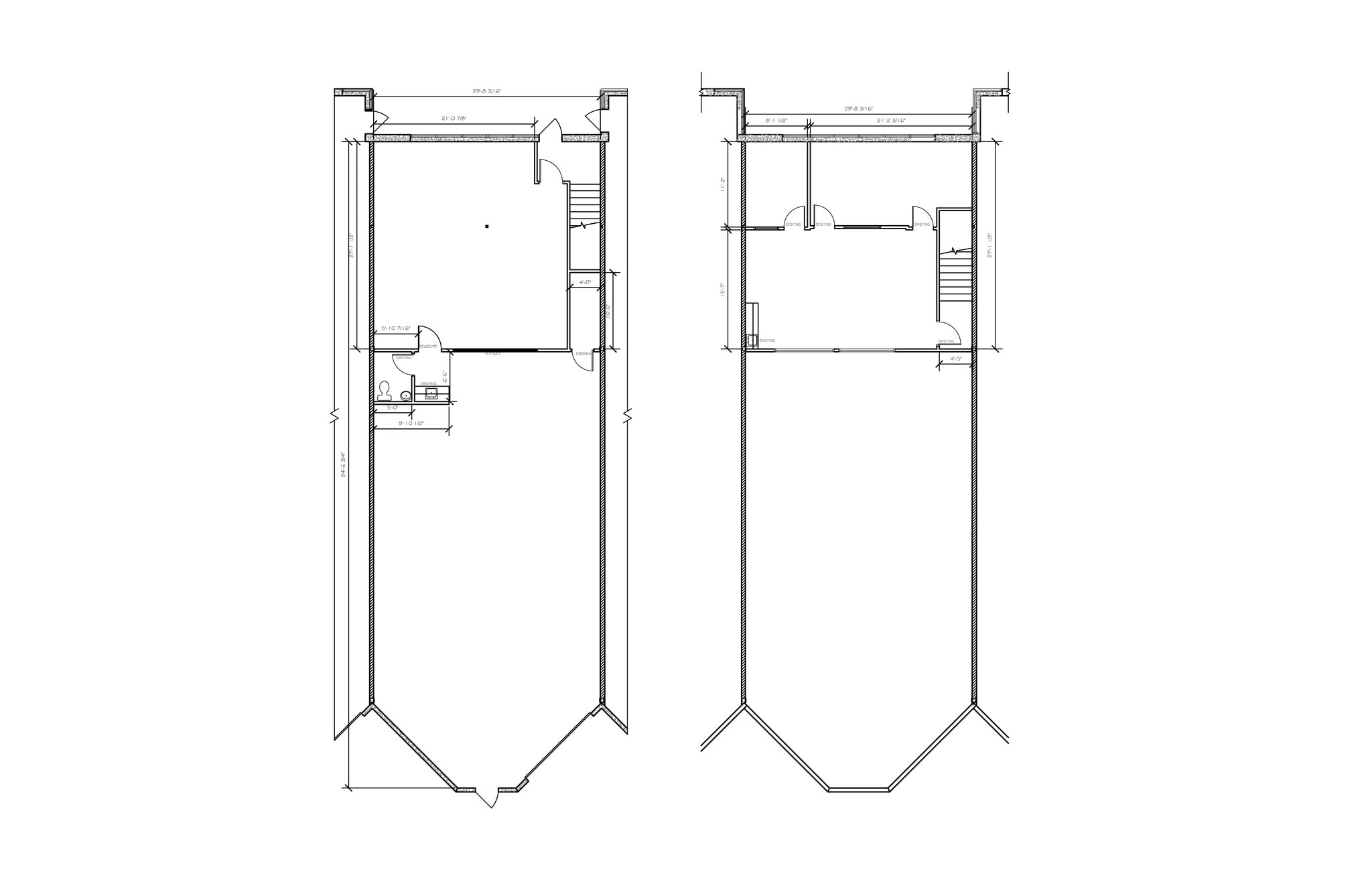
Cet entrepôt de 2 450 pieds carrés comprend 860 pieds carrés de bureau climatisé, plus un bureau supplémentaire de 855 pieds carrés au deuxième étage. Excellente visibilité sur la rue 202 et l'avenue 64.
- Le taux de location ne comprend pas les services publics, les services de bâtiment ou les dépenses immobilières.
- Disposition du plan d’étage ouverte en général
- Air central et chauffage
- Lumière naturelle
- Stationnement abondant sur place
- Bureaux privés et espace ouvert
- Entièrement construit comme Bureau standard
- Bureaux partitionnés
- Système de sécurité
- Plan ouvert
- Près des restaurants et des magasins
Cet espace de bureau de 4 896 pieds carrés au 2e étage, accessible par escalier, est situé au cœur de Willowbrook et comprend plusieurs bureaux, une salle de conférence, une cuisine, des espaces de travail ouverts et 3 salles de bain. Rejoignez le Langley Business Centre dès aujourd'hui !
- Le taux de location ne comprend pas les services publics, les services de bâtiment ou les dépenses immobilières.
- Disposition du plan d’étage ouverte en général
- Air central et chauffage
- Lumière naturelle
- Beaucoup de places de stationnement sur place
- Bureaux privés et espaces ouverts
- Entièrement construit comme Bureau standard
- Bureaux partitionnés
- Système de sécurité
- Plan ouvert
- Près de la nourriture et du shopping
| Espace | Taille | Terme | Taux de location | Utilisation de l’espace | Aménagement | Disponible |
| 1er étage, ste 105 | 2 450 pi² | 1-10 ans | 26,00 $ CAD/pi²/an 2,17 $ CAD/pi²/mois 63 700 $ CAD/an 5 308 $ CAD/mois | Bureau | construction complète | Maintenant |
| 2e étage, ste 212 | 4 896 pi² | 1-10 ans | 20,00 $ CAD/pi²/an 1,67 $ CAD/pi²/mois 97 920 $ CAD/an 8 160 $ CAD/mois | Bureau | construction complète | Maintenant |
1er étage, ste 105
| Taille |
| 2 450 pi² |
| Terme |
| 1-10 ans |
| Taux de location |
| 26,00 $ CAD/pi²/an 2,17 $ CAD/pi²/mois 63 700 $ CAD/an 5 308 $ CAD/mois |
| Utilisation de l’espace |
| Bureau |
| Aménagement |
| construction complète |
| Disponible |
| Maintenant |
2e étage, ste 212
| Taille |
| 4 896 pi² |
| Terme |
| 1-10 ans |
| Taux de location |
| 20,00 $ CAD/pi²/an 1,67 $ CAD/pi²/mois 97 920 $ CAD/an 8 160 $ CAD/mois |
| Utilisation de l’espace |
| Bureau |
| Aménagement |
| construction complète |
| Disponible |
| Maintenant |
1er étage, ste 105
| Taille | 2 450 pi² |
| Terme | 1-10 ans |
| Taux de location | 26,00 $ CAD/pi²/an |
| Utilisation de l’espace | Bureau |
| Aménagement | construction complète |
| Disponible | Maintenant |
Cet entrepôt de 2 450 pieds carrés comprend 860 pieds carrés de bureau climatisé, plus un bureau supplémentaire de 855 pieds carrés au deuxième étage. Excellente visibilité sur la rue 202 et l'avenue 64.
- Le taux de location ne comprend pas les services publics, les services de bâtiment ou les dépenses immobilières.
- Entièrement construit comme Bureau standard
- Disposition du plan d’étage ouverte en général
- Bureaux partitionnés
- Air central et chauffage
- Système de sécurité
- Lumière naturelle
- Plan ouvert
- Stationnement abondant sur place
- Près des restaurants et des magasins
- Bureaux privés et espace ouvert
2e étage, ste 212
| Taille | 4 896 pi² |
| Terme | 1-10 ans |
| Taux de location | 20,00 $ CAD/pi²/an |
| Utilisation de l’espace | Bureau |
| Aménagement | construction complète |
| Disponible | Maintenant |
Cet espace de bureau de 4 896 pieds carrés au 2e étage, accessible par escalier, est situé au cœur de Willowbrook et comprend plusieurs bureaux, une salle de conférence, une cuisine, des espaces de travail ouverts et 3 salles de bain. Rejoignez le Langley Business Centre dès aujourd'hui !
- Le taux de location ne comprend pas les services publics, les services de bâtiment ou les dépenses immobilières.
- Entièrement construit comme Bureau standard
- Disposition du plan d’étage ouverte en général
- Bureaux partitionnés
- Air central et chauffage
- Système de sécurité
- Lumière naturelle
- Plan ouvert
- Beaucoup de places de stationnement sur place
- Près de la nourriture et du shopping
- Bureaux privés et espaces ouverts
Aperçu de la propriété
Le Langley Business Centre est situé au cœur de Willowbrook. Bureau commercial à Langley, au coin de la rue 202 et de l'avenue 64. Trois bâtiments inclinables en béton adaptés à une gamme d'utilisations, y compris l'entreposage, la fabrication légère, les bureaux, le commerce de détail ou l'usage mixte.
Faits sur l’installation entrepôt
Présenté par
6375 202nd St
Hmm, il semble y avoir eu une erreur lors de l’envoi de votre message. Veuillez réessayer.
Merci! Votre message a été envoyé.








