Votre courriel a été envoyé.
787 Queen St W 589–2 261 pi² d'espace disponible • Commerce de détail • Toronto, ON M6J 1G1


Certaines informations ont été traduites automatiquement.
Faits saillants
- La façade Prime West Queen West se positionne parmi les destinations de vente au détail et de restauration les plus remarquables de Toronto.
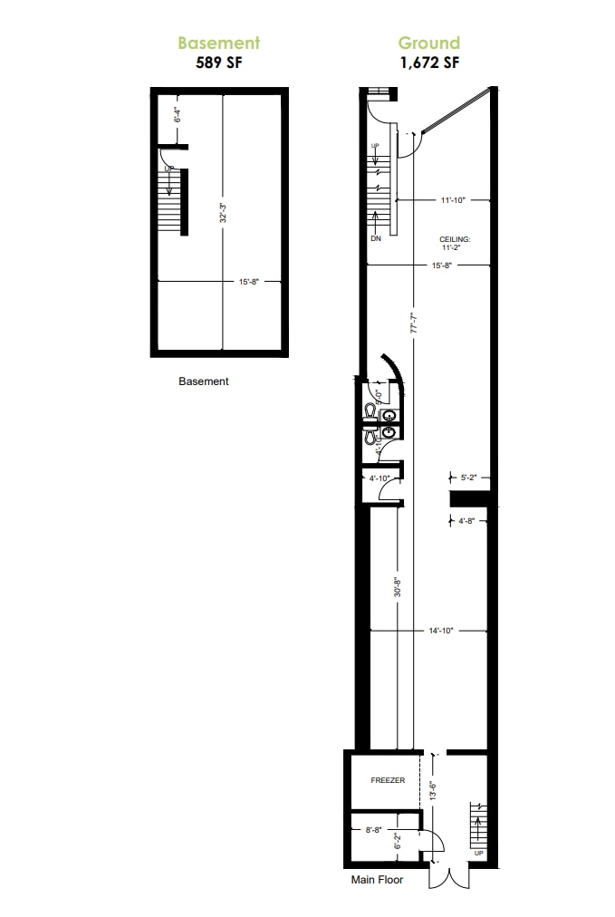
- Chargement arrière pratique qui favorise l'efficacité des opérations et des fonctions de livraison.
- À quelques pas du parc Trinity Bellwoods, assurant une activité piétonne constante tout au long de l'année.
- Ambiance intérieure lumineuse soutenue par de hauts plafonds et des puits de lumière arrière qui améliorent la lumière naturelle.
- Accès direct à la ligne de tramway 501 Queen offrant une excellente connectivité entre les clients et les employés.
Disponibilité des espaces (2)
Afficher les taux de location en
- Espace
- Taille
- Terme
- Taux de location
- Type de loyer
| Espace | Taille | Terme | Taux de location | Type de loyer | ||
| Niveau inférieur | 589 pi² | Négociable | Sur demande Sur demande Sur demande Sur demande | Loyer hypernet | ||
| 1er étage | 1 672 pi² | Négociable | 36,09 $ CAD/pi²/an 3,01 $ CAD/pi²/mois 60 342 $ CAD/an 5 029 $ CAD/mois | Loyer hypernet |
Niveau inférieur
- Le taux de location ne comprend pas les services publics, les services de bâtiment ou les dépenses immobilières.
- Partiellement construit comme Espace de commerce de détail standard
- Situé en ligne avec d’autres commerces de détail
- Peut être associé à un ou plusieurs espaces supplémentaires pour obtenir jusqu’à 2 261 pi² d’espace adjacent.
1er étage
Le 787, rue Queen Ouest offre une occasion exceptionnelle de location au détail dans l'un des quartiers les plus dynamiques et les plus influents sur le plan culturel de Toronto. Positionnée directement sur la rue Queen Ouest, cette offre place un locataire au cœur d'une destination réputée pour son énergie créative, sa culture de rue dynamique et sa scène commerciale indépendante florissante. La région attire un flux constant de résidents locaux, de visiteurs et de consommateurs axés sur les tendances qui affluent vers ses boutiques distinctives, ses restaurants acclamés et ses lieux de divertissement animés. À quelques pas du parc Trinity Bellwoods, l'emplacement bénéficie d'une circulation piétonnière toute l'année amplifiée par le rôle du parc en tant qu'important lieu de rassemblement communautaire. Les locaux combinent haute visibilité et fonctionnalité polyvalente, avec un niveau principal bien proportionné, de hauts plafonds et des lucarnes à l'arrière qui permettent à la lumière naturelle de pénétrer dans l'espace. La propriété offre également un sous-sol qui fonctionne bien pour l'entreposage, les besoins à l'arrière de la maison ou les utilisations opérationnelles supplémentaires. Grâce à l'accès au chargement arrière, les opérations quotidiennes peuvent être gérées facilement et répondre aux exigences de service et de livraison. Située directement sur la ligne de tramway 501 Queen, l'adresse bénéficie d'une connectivité exceptionnelle le long de la plus longue ligne de tramway d'Amérique du Nord. Le quartier abrite des marques de premier plan et des détaillants distinctifs, dont Warby Parker, Filson, The Latest Scoop, Terroni, Sud Forno, John Fluevog et Dutil Denim, créant ainsi un environnement de co-location puissant qui attire continuellement les acheteurs. Des restaurants, des cafés, des boutiques spécialisées et des concepts de style de vie jalonnent la rue dans toutes les directions, renforçant ainsi l'avantage stratégique de la propriété pour un large éventail d'opérateurs de vente au détail. Le 787, rue Queen Ouest, offre la rare occasion d'établir une présence dans un corridor qui se classe régulièrement parmi les destinations de vente au détail les plus recherchées de Toronto. Sa combinaison de caractère, de force de localisation et d'énergie du quartier constitue une base idéale pour les marques qui cherchent à s'aligner sur l'un des paysages commerciaux les plus influents de la ville.
- Le taux de location ne comprend pas les services publics, les services de bâtiment ou les dépenses immobilières.
- Partiellement construit comme Espace de commerce de détail standard
- Situé en ligne avec d’autres commerces de détail
- Peut être associé à un ou plusieurs espaces supplémentaires pour obtenir jusqu’à 2 261 pi² d’espace adjacent.
Types de loyers
Le type et le montant du loyer que le locataire (preneur) est tenu de payer au propriétaire (bailleur) sur la durée du bail sont négociés avant la signature du bail par les deux parties. Le type de loyer varie selon les services fournis. Par exemple, le prix d’un loyer hypernet est habituellement inférieur à celui d’un bail à service complet puisque le locataire est tenu d’assumer des dépenses additionnelles par rapport au loyer de base. Contactez le courtier inscripteur pour tout connaître sur les frais connexes et additionnels associés à chaque type de loyer.
1. Service complet: Un taux de location qui comprend des services standards liés à l’immeuble fournis par le propriétaire dans le cadre d’une location annuelle de base.
2. Loyer supernet: Le locataire paie seulement deux des frais de l’immeuble. Le propriétaire et le locataire déterminent ces frais spécifiques avant la signature du bail.
3. Loyer hypernet: Un bail en vertu duquel le locataire est responsable de tous les frais liés à sa part proportionnelle d’occupation de l’immeuble.
4. Brut modifié: Le loyer brut modifié désigne un type général de taux de location dans lequel le locataire est habituellement responsable de sa part proportionnelle d’un ou de plusieurs frais. C’est le propriétaire qui paie les frais restants. Considérez les structures tarifaires courantes suivantes applicables aux loyers bruts modifiés: 4. Plus les services: Un type de bail brut modifié suivant lequel le locataire est responsable de sa part proportionnelle des coûts des services publics, en plus du loyer. 4. Plus le nettoyage: Un type de bail brut modifié suivant lequel le locataire est responsable de sa part proportionnelle des coûts de nettoyage, en plus du loyer. 4. Plus l'électricité: Un type de bail brut modifié suivant lequel le locataire est responsable de sa part proportionnelle des coûts d’électricité, en plus du loyer. 4. Plus l’électricité et le nettoyage: Un type de bail brut modifié dans lequel le locataire est responsable de sa part proportionnelle des coûts d’électricité et de nettoyage, en plus du loyer. 4. Plus les services publics et le nettoyage: Un type de bail brut modifié dans lequel le locataire est responsable de sa part proportionnelle des coûts des services publics et de nettoyage, en plus du loyer. 4. Bail industriel brut: Un type de bail brut modifié dans lequel le locataire paie un ou plusieurs des frais, en plus du loyer. Le propriétaire et le locataire déterminent ces frais spécifiques avant la signature du bail.
5. L’électricité est à la charge du locataire: Le propriétaire paie pour tous les services et le locataire est responsable de sa propre utilisation de l’éclairage et des prises électriques dans l’espace qu’il occupe.
6. Négociable ou sur demande: Cette option est utilisée lorsque le contact de location ne précise pas le type de loyer ou de service.
7. À déterminer: À déterminer ; utilisé pour les immeubles dont le type de services ou de loyer n’est pas connu, souvent quand l’immeuble n’est pas encore construit.
Faits sur la propriété
| Superficie totale disponible | 2 261 pi² | Superficie commerciale brute | 4 163 pi² |
| Type de propriété | Commerce de détail | Année de construction | 1880 |
| Sous-type de propriété | Commerce pied immeuble |
| Superficie totale disponible | 2 261 pi² |
| Type de propriété | Commerce de détail |
| Sous-type de propriété | Commerce pied immeuble |
| Superficie commerciale brute | 4 163 pi² |
| Année de construction | 1880 |
Principaux détaillants à proximité
Présenté par
787 Queen St W
Hmm, il semble y avoir eu une erreur lors de l’envoi de votre message. Veuillez réessayer.
Merci! Votre message a été envoyé.



