Votre courriel a été envoyé.
Strathcona Village 923-977 Hastings St E 4 232 pi² d'espace disponible • Bureau • 4 étoiles • Vancouver, BC V6A 0H1



Certaines informations ont été traduites automatiquement.
Faits saillants
- Comprend quatre places de stationnement souterraines sécurisées pour plus de commodité.
- Entouré de nombreux cafés, restaurants et brasseries, ce qui augmente le trafic des clients.
- Excellente visibilité le long de la rue East Hastings dans une communauté dynamique à usage mixte.
Tous les espaces disponibles(1)
Afficher les taux de location en
- Espace
- Taille
- Terme
- Taux de location
- Utilisation de l’espace
- Aménagement
- Disponible
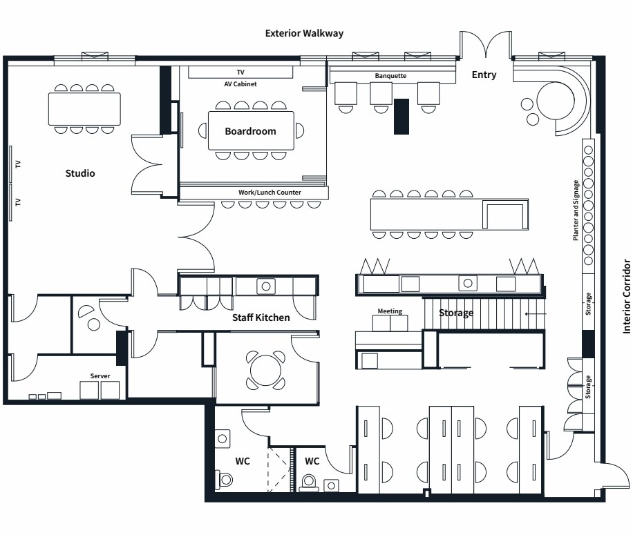
Le 937 East Hastings est un espace créatif magnifiquement aménagé, offrant un excellent mélange d’aires de collaboration et de bureaux privés. L’espace comprend un vaste hall d’accueil avec une aire café/bar à l’entrée, une grande salle de conférence, deux petites salles de réunion, des studios, une salle de baladodiffusion, deux salles de bain privées, une salle de serveurs, un espace d’entreposage et 8 postes de travail. Communiquez avec les courtiers inscripteurs pour plus d’information.
- Le taux de location ne comprend pas les services publics, les services de bâtiment ou les dépenses immobilières.
- Disposition du plan d’étage ouverte en général
- 2 salles de conférence
- Espace en excellent état
- Hauts plafonds
- De grandes fenêtres offrent une abondance de lumière naturelle.
- Entièrement construit comme Bureau standard
- Convient pour 11 à 34 personnes
- 8 postes de travail
- Aire de réception
- Lumière naturelle
- Espace moderne en excellent état.
| Espace | Taille | Terme | Taux de location | Utilisation de l’espace | Aménagement | Disponible |
| 1er étage | 4 232 pi² | Négociable | Sur demande Sur demande Sur demande Sur demande | Bureau | construction complète | Maintenant |
1er étage
| Taille |
| 4 232 pi² |
| Terme |
| Négociable |
| Taux de location |
| Sur demande Sur demande Sur demande Sur demande |
| Utilisation de l’espace |
| Bureau |
| Aménagement |
| construction complète |
| Disponible |
| Maintenant |
1er étage
| Taille | 4 232 pi² |
| Terme | Négociable |
| Taux de location | Sur demande |
| Utilisation de l’espace | Bureau |
| Aménagement | construction complète |
| Disponible | Maintenant |
Le 937 East Hastings est un espace créatif magnifiquement aménagé, offrant un excellent mélange d’aires de collaboration et de bureaux privés. L’espace comprend un vaste hall d’accueil avec une aire café/bar à l’entrée, une grande salle de conférence, deux petites salles de réunion, des studios, une salle de baladodiffusion, deux salles de bain privées, une salle de serveurs, un espace d’entreposage et 8 postes de travail. Communiquez avec les courtiers inscripteurs pour plus d’information.
- Le taux de location ne comprend pas les services publics, les services de bâtiment ou les dépenses immobilières.
- Entièrement construit comme Bureau standard
- Disposition du plan d’étage ouverte en général
- Convient pour 11 à 34 personnes
- 2 salles de conférence
- 8 postes de travail
- Espace en excellent état
- Aire de réception
- Hauts plafonds
- Lumière naturelle
- De grandes fenêtres offrent une abondance de lumière naturelle.
- Espace moderne en excellent état.
À propos de la propriété
Située dans le développement primé de Strathcona Village, cette propriété offre un espace commercial et flexible très visible le long de la rue East Hastings. Le site dispose de plafonds élevés, d'une alimentation électrique triphasée et d'un stationnement souterrain sécurisé, complété par la proximité de cafés populaires, de brasseries et de boutiques spécialisées. Positionnée dans un quartier en pleine évolution près du centre-ville de Vancouver, la propriété bénéficie de solides données démographiques locales et d'un excellent accès au transport en commun.
Faits sur la propriété
| Superficie totale disponible | 4 232 pi² | Style d’appartement | De grande hauteur |
| Nombre d’unités | 87 | Taille du bâtiment | 255 000 pi² |
| Type de propriété | Immeuble residentiel | Année de construction | 2018 |
| Sous-type de propriété | Appartement |
| Superficie totale disponible | 4 232 pi² |
| Nombre d’unités | 87 |
| Type de propriété | Immeuble residentiel |
| Sous-type de propriété | Appartement |
| Style d’appartement | De grande hauteur |
| Taille du bâtiment | 255 000 pi² |
| Année de construction | 2018 |
Présenté par
Strathcona Village | 923-977 Hastings St E
Hmm, il semble y avoir eu une erreur lors de l’envoi de votre message. Veuillez réessayer.
Merci! Votre message a été envoyé.



