Your email has been sent.
Richmond Centre 151 Yonge St 3,798 - 56,519 SF of 5-Star Office Space Available in Toronto, ON M5C 2W7


Highlights
- PATH Connected - Direct access to the path
- Security - Concierge & security system
- Public Transportation - Walking distance to public transit
- Walking Distance - Walking distance to restaurants & shops
All Available Spaces(6)
Display Rental Rate as
- Space
- Size
- Term
- Rental Rate
- Space Use
- Build-Out
- Available
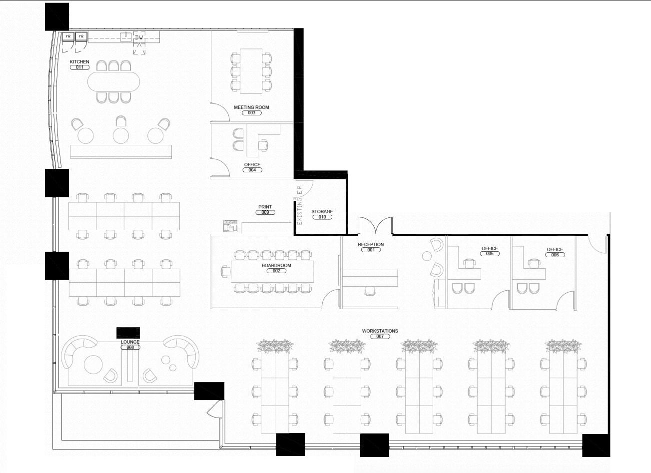
• Build out includes reception, boardroom, a good mix of offices/meetings rooms, kitchen and open area for workstations and collaboration
- Lease rate does not include utilities, property expenses or building services
- Mostly Open Floor Plan Layout
- Reception Area
- Fully Built-Out as Standard Office
- Space is in Excellent Condition
The build-out will include a boardroom, a balanced mix of offices and meeting rooms, a kitchen, and an open area designed for workstations and collaborative spaces
- Fully Built-Out as Professional Services Office
- 3 Private Offices
- Space is in Excellent Condition
- Balcony
- Open Floor Plan Layout
- 1 Conference Room
- Reception Area
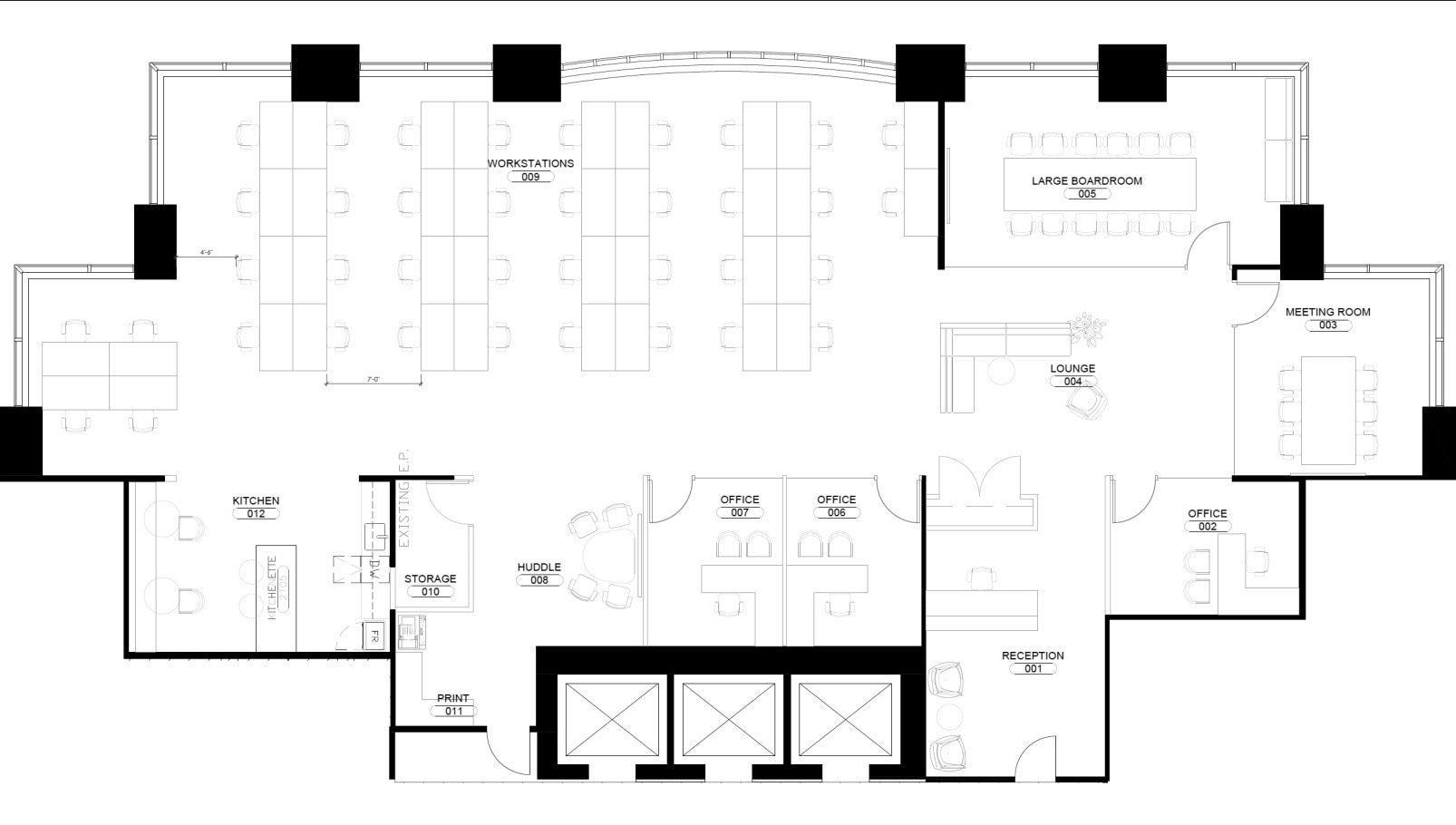
A Model Suite is coming soon, offering a thoughtfully designed workspace that balances professionalism and flexibility. The suite will feature a welcoming reception area for visitors, a 12-person boardroom equipped for executive meetings and presentations, and a dedicated meeting room ideal for team discussions and collaboration. Three private offices provide quiet space for leadership and focused work, complemented by an open work area with a flexible layout to support both individual workstations and collaborative activity. A modern open kitchen encourages social interaction, while a secure storage area ensures organized and efficient operations throughout the suite.
- Fully Built-Out as Professional Services Office
- 3 Private Offices
- 38 Workstations
- Reception Area
- Open Floor Plan Layout
- 2 Conference Rooms
- Space is in Excellent Condition
- Elevator Access
Build out includes reception, boardroom, a good mix of offices/meetings rooms, 2 kitchens, cafeteria, IT/server room, and open area for workstations and collaboration
- Fully Built-Out as Professional Services Office
- Space is in Excellent Condition
- Mostly Open Floor Plan Layout
- 11th Floor, Ste 1100
- 18,299 SF
- Negotiable
- Upon Request Upon Request Upon Request Upon Request
- Office
- -
- Now
• Build out includes 7 offices/meeting rooms, kitchen, boardroom, and open area
- Lease rate does not include utilities, property expenses or building services
- Open Floor Plan Layout
- 7 Workstations
- Fully Built-Out as Standard Office
- 7 Private Offices
- Space is in Excellent Condition
| Space | Size | Term | Rental Rate | Space Use | Build-Out | Available |
| 5th Floor, Ste 500 | 6,490 SF | Negotiable | Upon Request Upon Request Upon Request Upon Request | Office | Full Build-Out | Now |
| 5th Floor, Ste 502 | 3,798 SF | Negotiable | Upon Request Upon Request Upon Request Upon Request | Office | Full Build-Out | 2027-02-01 |
| 6th Floor, Ste 601 | 4,964 SF | Negotiable | Upon Request Upon Request Upon Request Upon Request | Office | Full Build-Out | Now |
| 9th Floor, Ste 900 | 18,299 SF | Negotiable | Upon Request Upon Request Upon Request Upon Request | Office | Full Build-Out | 2027-02-01 |
| 11th Floor, Ste 1100 | 18,299 SF | Negotiable | Upon Request Upon Request Upon Request Upon Request | Office | - | Now |
| 19th Floor, Ste 1901 | 4,669 SF | Negotiable | Upon Request Upon Request Upon Request Upon Request | Office | Full Build-Out | Now |
5th Floor, Ste 500
| Size |
| 6,490 SF |
| Term |
| Negotiable |
| Rental Rate |
| Upon Request Upon Request Upon Request Upon Request |
| Space Use |
| Office |
| Build-Out |
| Full Build-Out |
| Available |
| Now |
5th Floor, Ste 502
| Size |
| 3,798 SF |
| Term |
| Negotiable |
| Rental Rate |
| Upon Request Upon Request Upon Request Upon Request |
| Space Use |
| Office |
| Build-Out |
| Full Build-Out |
| Available |
| 2027-02-01 |
6th Floor, Ste 601
| Size |
| 4,964 SF |
| Term |
| Negotiable |
| Rental Rate |
| Upon Request Upon Request Upon Request Upon Request |
| Space Use |
| Office |
| Build-Out |
| Full Build-Out |
| Available |
| Now |
9th Floor, Ste 900
| Size |
| 18,299 SF |
| Term |
| Negotiable |
| Rental Rate |
| Upon Request Upon Request Upon Request Upon Request |
| Space Use |
| Office |
| Build-Out |
| Full Build-Out |
| Available |
| 2027-02-01 |
11th Floor, Ste 1100
| Size |
| 18,299 SF |
| Term |
| Negotiable |
| Rental Rate |
| Upon Request Upon Request Upon Request Upon Request |
| Space Use |
| Office |
| Build-Out |
| - |
| Available |
| Now |
19th Floor, Ste 1901
| Size |
| 4,669 SF |
| Term |
| Negotiable |
| Rental Rate |
| Upon Request Upon Request Upon Request Upon Request |
| Space Use |
| Office |
| Build-Out |
| Full Build-Out |
| Available |
| Now |
5th Floor, Ste 500
| Size | 6,490 SF |
| Term | Negotiable |
| Rental Rate | Upon Request |
| Space Use | Office |
| Build-Out | Full Build-Out |
| Available | Now |
• Build out includes reception, boardroom, a good mix of offices/meetings rooms, kitchen and open area for workstations and collaboration
- Lease rate does not include utilities, property expenses or building services
- Fully Built-Out as Standard Office
- Mostly Open Floor Plan Layout
- Space is in Excellent Condition
- Reception Area
5th Floor, Ste 502
| Size | 3,798 SF |
| Term | Negotiable |
| Rental Rate | Upon Request |
| Space Use | Office |
| Build-Out | Full Build-Out |
| Available | 2027-02-01 |
The build-out will include a boardroom, a balanced mix of offices and meeting rooms, a kitchen, and an open area designed for workstations and collaborative spaces
- Fully Built-Out as Professional Services Office
- Open Floor Plan Layout
- 3 Private Offices
- 1 Conference Room
- Space is in Excellent Condition
- Reception Area
- Balcony
6th Floor, Ste 601
| Size | 4,964 SF |
| Term | Negotiable |
| Rental Rate | Upon Request |
| Space Use | Office |
| Build-Out | Full Build-Out |
| Available | Now |
A Model Suite is coming soon, offering a thoughtfully designed workspace that balances professionalism and flexibility. The suite will feature a welcoming reception area for visitors, a 12-person boardroom equipped for executive meetings and presentations, and a dedicated meeting room ideal for team discussions and collaboration. Three private offices provide quiet space for leadership and focused work, complemented by an open work area with a flexible layout to support both individual workstations and collaborative activity. A modern open kitchen encourages social interaction, while a secure storage area ensures organized and efficient operations throughout the suite.
- Fully Built-Out as Professional Services Office
- Open Floor Plan Layout
- 3 Private Offices
- 2 Conference Rooms
- 38 Workstations
- Space is in Excellent Condition
- Reception Area
- Elevator Access
9th Floor, Ste 900
| Size | 18,299 SF |
| Term | Negotiable |
| Rental Rate | Upon Request |
| Space Use | Office |
| Build-Out | Full Build-Out |
| Available | 2027-02-01 |
Build out includes reception, boardroom, a good mix of offices/meetings rooms, 2 kitchens, cafeteria, IT/server room, and open area for workstations and collaboration
- Fully Built-Out as Professional Services Office
- Mostly Open Floor Plan Layout
- Space is in Excellent Condition
19th Floor, Ste 1901
| Size | 4,669 SF |
| Term | Negotiable |
| Rental Rate | Upon Request |
| Space Use | Office |
| Build-Out | Full Build-Out |
| Available | Now |
• Build out includes 7 offices/meeting rooms, kitchen, boardroom, and open area
- Lease rate does not include utilities, property expenses or building services
- Fully Built-Out as Standard Office
- Open Floor Plan Layout
- 7 Private Offices
- 7 Workstations
- Space is in Excellent Condition
Features and Amenities
- 24 Hour Access
- Bus Line
- Controlled Access
- Metro/Subway
- Property Manager on Site
- Restaurant
- PATH
Property Facts
Presented by
Richmond Centre | 151 Yonge St
Hmm, there seems to have been an error sending your message. Please try again.
Thanks! Your message was sent.








