Your email has been sent.
400 Third 400 3rd Ave SW 2,036 - 220,116 SF of 4-Star Office Space Available in Calgary, AB T2P 4H2



Highlights
- Security 24/7
- Fitness Centre
- Concierge
- EV charging station
- Indoor parking
- Bike facilities
All Available Spaces(13)
Display Rental Rate as
- Space
- Size
- Term
- Rental Rate
- Space Use
- Build-Out
- Available
- Lease rate does not include utilities, property expenses or building services
This office intensive unit boasts 32 offices with terrific views to the southwest and can be made contiguous with the 16th floor for 31,268 SF. Available immediately.
- Lease rate does not include utilities, property expenses or building services
- 32 Private Offices
- Ample natural light.
- Fully Built-Out as Standard Office
- Natural Light
- Terrific views.
This full floor opportunity includes a mix of office and open area, two large boardrooms and two kitchens. Can be made contiguous with suite 1510 for 31,268 SF.
- Lease rate does not include utilities, property expenses or building services
- Mostly Open Floor Plan Layout
- 2 Conference Rooms
- Ample natural light.
- Fully Built-Out as Standard Office
- 36 Private Offices
- Natural Light
- Two kitchen areas included.
- Lease rate does not include utilities, property expenses or building services
- Lease rate does not include utilities, property expenses or building services
21,754 square foot office space with a blend of private offices and open space. Available April of 2027
- Fully Built-Out as Standard Office
- Space is in Excellent Condition
- Ample natural light.
- Mostly Open Floor Plan Layout
- Natural Light
- Skyline views.
- Lease rate does not include utilities, property expenses or building services
22,233 square foot office space contiguous with floors 36-39. Available April of 2027.
- Fully Built-Out as Standard Office
- Space is in Excellent Condition
- Ample natural light.
- Mostly Open Floor Plan Layout
- Natural Light
- Skyline views.
Contiguous space up to 108,581 SF available on floors 35–39, featuring a blend of perimeter offices and open-plan workspace with skyline views. Available April 2027.
- Lease rate does not include utilities, property expenses or building services
- Mostly Open Floor Plan Layout
- Natural Light
- Skyline views.
- Fully Built-Out as Standard Office
- Space is in Excellent Condition
- Ample natural light.
Contiguous space up to 108,581 SF available on floors 35–39, featuring a blend of perimeter offices and open-plan workspace with skyline views. Available April 2027.
- Lease rate does not include utilities, property expenses or building services
- Mostly Open Floor Plan Layout
- Natural Light
- Skyline views.
- Fully Built-Out as Standard Office
- Space is in Excellent Condition
- Ample natural light.
Contiguous space up to 108,581 SF available on floors 35–39, featuring a blend of perimeter offices and open-plan workspace with skyline views. Available April of 2027.
- Lease rate does not include utilities, property expenses or building services
- Mostly Open Floor Plan Layout
- Natural Light
- Skyline views.
- Fully Built-Out as Standard Office
- Space is in Excellent Condition
- Ample natural light.
Contiguous space up to 108,581 SF available on floors 35–39, featuring a blend of perimeter offices and open-plan workspace with skyline views. Available April 2027.
- Lease rate does not include utilities, property expenses or building services
- Mostly Open Floor Plan Layout
- Natural Light
- Skyline views.
- Fully Built-Out as Standard Office
- Space is in Excellent Condition
- Ample natural light.
Terrific high-rise opportunity with spectacular views. This suite boasts direct elevator exposure, generous size reception area, three meeting rooms, large boardroom, 14 offices and an open area. Available immediately.
- Lease rate does not include utilities, property expenses or building services
- Mostly Open Floor Plan Layout
- 3 Conference Rooms
- Reception Area
- Spectacular views.
- Fully Built-Out as Standard Office
- 14 Private Offices
- Space is in Excellent Condition
- Natural Light
- Ample natural light.
| Space | Size | Term | Rental Rate | Space Use | Build-Out | Available |
| 14th Floor, Ste 1470 | 4,060 SF | Negotiable | Upon Request Upon Request Upon Request Upon Request | Office | - | 2026-06-01 |
| 15th Floor, Ste 1510 | 10,022 SF | Negotiable | Upon Request Upon Request Upon Request Upon Request | Office | Full Build-Out | Now |
| 16th Floor, Ste 1600 | 21,246 SF | Negotiable | Upon Request Upon Request Upon Request Upon Request | Office | Full Build-Out | Now |
| 18th Floor, Ste 1800 | 21,244 SF | Negotiable | Upon Request Upon Request Upon Request Upon Request | Office | - | 2027-01-01 |
| 19th Floor, Ste 1900 | 21,244 SF | Negotiable | Upon Request Upon Request Upon Request Upon Request | Office | - | 2027-01-01 |
| 33rd Floor, Ste 3300 | 21,754 SF | Negotiable | Upon Request Upon Request Upon Request Upon Request | Office | Full Build-Out | 2027-04-01 |
| 34th Floor, Ste 3410 | 2,036 SF | Negotiable | Upon Request Upon Request Upon Request Upon Request | Office | - | 2027-01-01 |
| 35th Floor, Ste 3500 | 22,233 SF | Negotiable | Upon Request Upon Request Upon Request Upon Request | Office | Full Build-Out | 2027-04-01 |
| 36th Floor, Ste 3600 | 22,234 SF | Negotiable | Upon Request Upon Request Upon Request Upon Request | Office | Full Build-Out | 2027-04-01 |
| 37th Floor, Ste 3700 | 22,231 SF | Negotiable | Upon Request Upon Request Upon Request Upon Request | Office | Full Build-Out | 2027-04-01 |
| 38th Floor, Ste 3800 | 22,232 SF | Negotiable | Upon Request Upon Request Upon Request Upon Request | Office | Full Build-Out | 2027-04-01 |
| 39th Floor, Ste 3900 | 19,650 SF | Negotiable | Upon Request Upon Request Upon Request Upon Request | Office | Full Build-Out | 2027-04-01 |
| 40th Floor, Ste 4050 | 9,930 SF | Negotiable | Upon Request Upon Request Upon Request Upon Request | Office | Full Build-Out | Now |
14th Floor, Ste 1470
| Size |
| 4,060 SF |
| Term |
| Negotiable |
| Rental Rate |
| Upon Request Upon Request Upon Request Upon Request |
| Space Use |
| Office |
| Build-Out |
| - |
| Available |
| 2026-06-01 |
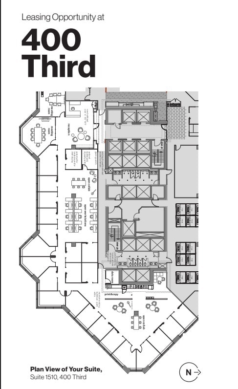
15th Floor, Ste 1510
| Size |
| 10,022 SF |
| Term |
| Negotiable |
| Rental Rate |
| Upon Request Upon Request Upon Request Upon Request |
| Space Use |
| Office |
| Build-Out |
| Full Build-Out |
| Available |
| Now |
16th Floor, Ste 1600
| Size |
| 21,246 SF |
| Term |
| Negotiable |
| Rental Rate |
| Upon Request Upon Request Upon Request Upon Request |
| Space Use |
| Office |
| Build-Out |
| Full Build-Out |
| Available |
| Now |
18th Floor, Ste 1800
| Size |
| 21,244 SF |
| Term |
| Negotiable |
| Rental Rate |
| Upon Request Upon Request Upon Request Upon Request |
| Space Use |
| Office |
| Build-Out |
| - |
| Available |
| 2027-01-01 |
19th Floor, Ste 1900
| Size |
| 21,244 SF |
| Term |
| Negotiable |
| Rental Rate |
| Upon Request Upon Request Upon Request Upon Request |
| Space Use |
| Office |
| Build-Out |
| - |
| Available |
| 2027-01-01 |
33rd Floor, Ste 3300
| Size |
| 21,754 SF |
| Term |
| Negotiable |
| Rental Rate |
| Upon Request Upon Request Upon Request Upon Request |
| Space Use |
| Office |
| Build-Out |
| Full Build-Out |
| Available |
| 2027-04-01 |
34th Floor, Ste 3410
| Size |
| 2,036 SF |
| Term |
| Negotiable |
| Rental Rate |
| Upon Request Upon Request Upon Request Upon Request |
| Space Use |
| Office |
| Build-Out |
| - |
| Available |
| 2027-01-01 |
35th Floor, Ste 3500
| Size |
| 22,233 SF |
| Term |
| Negotiable |
| Rental Rate |
| Upon Request Upon Request Upon Request Upon Request |
| Space Use |
| Office |
| Build-Out |
| Full Build-Out |
| Available |
| 2027-04-01 |
36th Floor, Ste 3600
| Size |
| 22,234 SF |
| Term |
| Negotiable |
| Rental Rate |
| Upon Request Upon Request Upon Request Upon Request |
| Space Use |
| Office |
| Build-Out |
| Full Build-Out |
| Available |
| 2027-04-01 |
37th Floor, Ste 3700
| Size |
| 22,231 SF |
| Term |
| Negotiable |
| Rental Rate |
| Upon Request Upon Request Upon Request Upon Request |
| Space Use |
| Office |
| Build-Out |
| Full Build-Out |
| Available |
| 2027-04-01 |
38th Floor, Ste 3800
| Size |
| 22,232 SF |
| Term |
| Negotiable |
| Rental Rate |
| Upon Request Upon Request Upon Request Upon Request |
| Space Use |
| Office |
| Build-Out |
| Full Build-Out |
| Available |
| 2027-04-01 |
39th Floor, Ste 3900
| Size |
| 19,650 SF |
| Term |
| Negotiable |
| Rental Rate |
| Upon Request Upon Request Upon Request Upon Request |
| Space Use |
| Office |
| Build-Out |
| Full Build-Out |
| Available |
| 2027-04-01 |
40th Floor, Ste 4050
| Size |
| 9,930 SF |
| Term |
| Negotiable |
| Rental Rate |
| Upon Request Upon Request Upon Request Upon Request |
| Space Use |
| Office |
| Build-Out |
| Full Build-Out |
| Available |
| Now |
14th Floor, Ste 1470
| Size | 4,060 SF |
| Term | Negotiable |
| Rental Rate | Upon Request |
| Space Use | Office |
| Build-Out | - |
| Available | 2026-06-01 |
- Lease rate does not include utilities, property expenses or building services
15th Floor, Ste 1510
| Size | 10,022 SF |
| Term | Negotiable |
| Rental Rate | Upon Request |
| Space Use | Office |
| Build-Out | Full Build-Out |
| Available | Now |
This office intensive unit boasts 32 offices with terrific views to the southwest and can be made contiguous with the 16th floor for 31,268 SF. Available immediately.
- Lease rate does not include utilities, property expenses or building services
- Fully Built-Out as Standard Office
- 32 Private Offices
- Natural Light
- Ample natural light.
- Terrific views.
16th Floor, Ste 1600
| Size | 21,246 SF |
| Term | Negotiable |
| Rental Rate | Upon Request |
| Space Use | Office |
| Build-Out | Full Build-Out |
| Available | Now |
This full floor opportunity includes a mix of office and open area, two large boardrooms and two kitchens. Can be made contiguous with suite 1510 for 31,268 SF.
- Lease rate does not include utilities, property expenses or building services
- Fully Built-Out as Standard Office
- Mostly Open Floor Plan Layout
- 36 Private Offices
- 2 Conference Rooms
- Natural Light
- Ample natural light.
- Two kitchen areas included.
18th Floor, Ste 1800
| Size | 21,244 SF |
| Term | Negotiable |
| Rental Rate | Upon Request |
| Space Use | Office |
| Build-Out | - |
| Available | 2027-01-01 |
- Lease rate does not include utilities, property expenses or building services
19th Floor, Ste 1900
| Size | 21,244 SF |
| Term | Negotiable |
| Rental Rate | Upon Request |
| Space Use | Office |
| Build-Out | - |
| Available | 2027-01-01 |
- Lease rate does not include utilities, property expenses or building services
33rd Floor, Ste 3300
| Size | 21,754 SF |
| Term | Negotiable |
| Rental Rate | Upon Request |
| Space Use | Office |
| Build-Out | Full Build-Out |
| Available | 2027-04-01 |
21,754 square foot office space with a blend of private offices and open space. Available April of 2027
- Fully Built-Out as Standard Office
- Mostly Open Floor Plan Layout
- Space is in Excellent Condition
- Natural Light
- Ample natural light.
- Skyline views.
34th Floor, Ste 3410
| Size | 2,036 SF |
| Term | Negotiable |
| Rental Rate | Upon Request |
| Space Use | Office |
| Build-Out | - |
| Available | 2027-01-01 |
- Lease rate does not include utilities, property expenses or building services
35th Floor, Ste 3500
| Size | 22,233 SF |
| Term | Negotiable |
| Rental Rate | Upon Request |
| Space Use | Office |
| Build-Out | Full Build-Out |
| Available | 2027-04-01 |
22,233 square foot office space contiguous with floors 36-39. Available April of 2027.
- Fully Built-Out as Standard Office
- Mostly Open Floor Plan Layout
- Space is in Excellent Condition
- Natural Light
- Ample natural light.
- Skyline views.
36th Floor, Ste 3600
| Size | 22,234 SF |
| Term | Negotiable |
| Rental Rate | Upon Request |
| Space Use | Office |
| Build-Out | Full Build-Out |
| Available | 2027-04-01 |
Contiguous space up to 108,581 SF available on floors 35–39, featuring a blend of perimeter offices and open-plan workspace with skyline views. Available April 2027.
- Lease rate does not include utilities, property expenses or building services
- Fully Built-Out as Standard Office
- Mostly Open Floor Plan Layout
- Space is in Excellent Condition
- Natural Light
- Ample natural light.
- Skyline views.
37th Floor, Ste 3700
| Size | 22,231 SF |
| Term | Negotiable |
| Rental Rate | Upon Request |
| Space Use | Office |
| Build-Out | Full Build-Out |
| Available | 2027-04-01 |
Contiguous space up to 108,581 SF available on floors 35–39, featuring a blend of perimeter offices and open-plan workspace with skyline views. Available April 2027.
- Lease rate does not include utilities, property expenses or building services
- Fully Built-Out as Standard Office
- Mostly Open Floor Plan Layout
- Space is in Excellent Condition
- Natural Light
- Ample natural light.
- Skyline views.
38th Floor, Ste 3800
| Size | 22,232 SF |
| Term | Negotiable |
| Rental Rate | Upon Request |
| Space Use | Office |
| Build-Out | Full Build-Out |
| Available | 2027-04-01 |
Contiguous space up to 108,581 SF available on floors 35–39, featuring a blend of perimeter offices and open-plan workspace with skyline views. Available April of 2027.
- Lease rate does not include utilities, property expenses or building services
- Fully Built-Out as Standard Office
- Mostly Open Floor Plan Layout
- Space is in Excellent Condition
- Natural Light
- Ample natural light.
- Skyline views.
39th Floor, Ste 3900
| Size | 19,650 SF |
| Term | Negotiable |
| Rental Rate | Upon Request |
| Space Use | Office |
| Build-Out | Full Build-Out |
| Available | 2027-04-01 |
Contiguous space up to 108,581 SF available on floors 35–39, featuring a blend of perimeter offices and open-plan workspace with skyline views. Available April 2027.
- Lease rate does not include utilities, property expenses or building services
- Fully Built-Out as Standard Office
- Mostly Open Floor Plan Layout
- Space is in Excellent Condition
- Natural Light
- Ample natural light.
- Skyline views.
40th Floor, Ste 4050
| Size | 9,930 SF |
| Term | Negotiable |
| Rental Rate | Upon Request |
| Space Use | Office |
| Build-Out | Full Build-Out |
| Available | Now |
Terrific high-rise opportunity with spectacular views. This suite boasts direct elevator exposure, generous size reception area, three meeting rooms, large boardroom, 14 offices and an open area. Available immediately.
- Lease rate does not include utilities, property expenses or building services
- Fully Built-Out as Standard Office
- Mostly Open Floor Plan Layout
- 14 Private Offices
- 3 Conference Rooms
- Space is in Excellent Condition
- Reception Area
- Natural Light
- Spectacular views.
- Ample natural light.
Property Overview
With its surrounding glass curtain walls, Devon Tower is a distinctive landmark on Calgary’s skyline. Admired for architectural design, tremendous vista views and LEED-certification. Devon Tower balances well-being and productivity, offering an efficient floor plate, close connection to major transit and driving routes and nearby retail amenities.
- Bus Line
- Concierge
- Conferencing Facility
- Food Court
- Signage
- Roof Terrace
- Plus 15
- Air Conditioning
Property Facts
Select Tenants
- Floor
- Tenant Name
- Industry
- Multiple
- ARC Financial
- Finance and Insurance
- 6th
- Cardinal Energy Ltd
- Mining, Quarrying, and Oil and Gas Extraction
- 3rd
- Cisco Systems
- Manufacturing
- Multiple
- Ember Resources Inc
- Mining, Quarrying, and Oil and Gas Extraction
- Multiple
- Heartland Generation Ltd.
- Utilities
- 12th
- Macro Industries
- Mining, Quarrying, and Oil and Gas Extraction
- Multiple
- Norton Rose Fullbright
- Professional, Scientific, and Technical Services
- 40th
- Peacock Linder Halt & Mack LLP
- Professional, Scientific, and Technical Services
- 7th
- Summerland Energy Inc
- Mining, Quarrying, and Oil and Gas Extraction
- 45th
- Werklund Capital
- Finance and Insurance
Presented by
400 Third | 400 3rd Ave SW
Hmm, there seems to have been an error sending your message. Please try again.
Thanks! Your message was sent.





