Your email has been sent.
WestMount Corporate Campus 4954 Richard Rd SW 2,580 - 10,603 SF of 4-Star Office Space Available in Calgary, AB T3E 6L1



Highlights
- 10 minutes from downtown Calgary
- Sustainable design and construction; LEED Certified
- Serviced by Bus Rapid Transit (BRT) offering frequent, limited-stop service to Westbrook LRT & Heritage LRT transit hubs
All Available Spaces(2)
Display Rental Rate as
- Space
- Size
- Term
- Rental Rate
- Space Use
- Build-Out
- Available
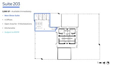
Space to be demised, subject to final measurement. 4 offices and open area. Subject to ROFR. Available now.
- Lease rate does not include utilities, property expenses or building services
- Mostly Open Floor Plan Layout
- 4 Private Offices
- Space is in Excellent Condition
- Natural Light
- Ample exposure.
- Lots of natural light.
- Fully Built-Out as Standard Office
- Fits 7 - 21 People
- Finished Ceilings: 9’
- Central Air and Heating
- Open-Plan
- Open plan.
Base building condition space. Elevator exposure. Available immediately.
- Lease rate does not include utilities, property expenses or building services
- Finished Ceilings: 9’
- Central Air and Heating
- Emergency Lighting
- Open plan.
- Mostly Open Floor Plan Layout
- Space is in Excellent Condition
- Natural Light
- Elevator exposure.
- Lots of natural light.
| Space | Size | Term | Rental Rate | Space Use | Build-Out | Available |
| 2nd Floor, Ste 203 | 2,580 SF | Negotiable | Upon Request Upon Request Upon Request Upon Request | Office | Full Build-Out | Now |
| 3rd Floor, Ste 350 | 8,023 SF | Negotiable | Upon Request Upon Request Upon Request Upon Request | Office | Shell Space | Now |
2nd Floor, Ste 203
| Size |
| 2,580 SF |
| Term |
| Negotiable |
| Rental Rate |
| Upon Request Upon Request Upon Request Upon Request |
| Space Use |
| Office |
| Build-Out |
| Full Build-Out |
| Available |
| Now |
3rd Floor, Ste 350
| Size |
| 8,023 SF |
| Term |
| Negotiable |
| Rental Rate |
| Upon Request Upon Request Upon Request Upon Request |
| Space Use |
| Office |
| Build-Out |
| Shell Space |
| Available |
| Now |
2nd Floor, Ste 203
| Size | 2,580 SF |
| Term | Negotiable |
| Rental Rate | Upon Request |
| Space Use | Office |
| Build-Out | Full Build-Out |
| Available | Now |
Space to be demised, subject to final measurement. 4 offices and open area. Subject to ROFR. Available now.
- Lease rate does not include utilities, property expenses or building services
- Fully Built-Out as Standard Office
- Mostly Open Floor Plan Layout
- Fits 7 - 21 People
- 4 Private Offices
- Finished Ceilings: 9’
- Space is in Excellent Condition
- Central Air and Heating
- Natural Light
- Open-Plan
- Ample exposure.
- Open plan.
- Lots of natural light.
3rd Floor, Ste 350
| Size | 8,023 SF |
| Term | Negotiable |
| Rental Rate | Upon Request |
| Space Use | Office |
| Build-Out | Shell Space |
| Available | Now |
Base building condition space. Elevator exposure. Available immediately.
- Lease rate does not include utilities, property expenses or building services
- Mostly Open Floor Plan Layout
- Finished Ceilings: 9’
- Space is in Excellent Condition
- Central Air and Heating
- Natural Light
- Emergency Lighting
- Elevator exposure.
- Open plan.
- Lots of natural light.
Property Overview
WestMount is the result of a partnership with a vision for a dynamic business environment, one that offers intelligent design and sustainable real estate solutions. Proximity to downtown with the benefits of a suburban development. Resulting in six architecturally designed, Class A LEED certified office buildings on 26 acres, with more than 780,000 square feet of development.
- Atrium
- Banking
- Bus Line
- Conferencing Facility
- Fireplace
- Security System
- Signage
- Accent Lighting
- Bicycle Storage
- Recessed Lighting
- Shower Facilities
- Individual Locking Bedrooms
- Air Conditioning
- Smoke Detector
Property Facts
Presented by
WestMount Corporate Campus | 4954 Richard Rd SW
Hmm, there seems to have been an error sending your message. Please try again.
Thanks! Your message was sent.





