Your email has been sent.
Ivari Tower 5000 Yonge St 529 - 26,980 SF of 4-Star Space Available in Toronto, ON M2N 7E9



All Available Spaces(7)
Display Rental Rate as
- Space
- Size
- Term
- Rental Rate
- Space Use
- Build-Out
- Available
Rare, ground floor unit available suitable for multi-use.
- Lease rate does not include utilities, property expenses or building services
Built out with open space, offices, meeting rooms and a kitchen.
- Lease rate does not include utilities, property expenses or building services
- Mostly Open Floor Plan Layout
- 7 Private Offices
- Central Air and Heating
- Fully Built-Out as Standard Office
- Fits 24 - 77 People
- 1 Conference Room
- Drop Ceilings
Available Immediately, move-in ready condition. Unique small corner suite with kitchen, private offices with glass fronts -- and furnished.
- Lease rate does not include utilities, property expenses or building services
- Fits 8 - 24 People
- 1 Conference Room
- Fully Built-Out as Standard Office
- 5 Private Offices
- Space is in Excellent Condition
Newly renovated model suite with three offices, boardroom and beautiful kitchen. Available October 1, 2025.
- Lease rate does not include utilities, property expenses or building services
- Mostly Open Floor Plan Layout
- 3 Private Offices
- Space is in Excellent Condition
- Partially Built-Out as Standard Office
- Fits 7 - 21 People
- 1 Conference Room
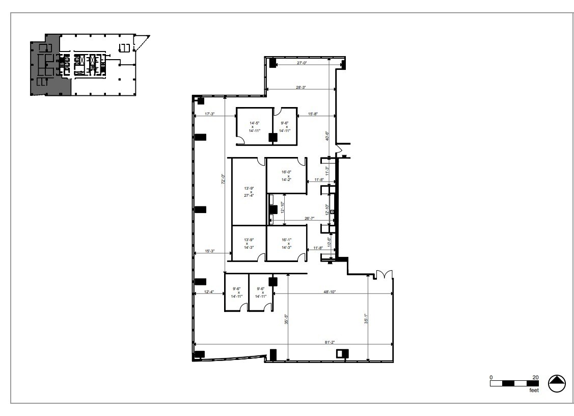
Beautifully renovated office with excellent mix of office, meeting space, and open area, with elevator exposure. Space can be demised to 4,888 SF and 1,110 SF.
- Lease rate does not include utilities, property expenses or building services
- Mostly Open Floor Plan Layout
- Can be combined with additional space(s) for up to 10,234 SF of adjacent space
- Private Restrooms
- Open-Plan
- Lots of Natural Light
- Private Offices
- Fully Built-Out as Standard Office
- Fits 15 - 48 People
- Central Air and Heating
- Natural Light
- Smoke Detector
- Open Plan
South Facing, built out office space on newly renovated floor with a meeting room and a private office.
- Lease rate does not include utilities, property expenses or building services
- Open Floor Plan Layout
- 1 Private Office
- Central Air and Heating
- Fully Built-Out as Standard Office
- Fits 3 - 9 People
- 1 Conference Room
- Drop Ceilings
Nicely built out corner office with multiple offices, open area, and meeting space. Available September 1, 2025.
- Lease rate does not include utilities, property expenses or building services
- 10 Private Offices
- Can be combined with additional space(s) for up to 10,234 SF of adjacent space
- Fits 11 - 34 People
- Space is in Excellent Condition
- Corner Space
| Space | Size | Term | Rental Rate | Space Use | Build-Out | Available |
| 1st Floor, Ste 106 | 529 SF | Negotiable | $26.00 CAD/SF/YR $2.17 CAD/SF/MO $13,754 CAD/YR $1,146 CAD/MO | Retail | Shell Space | Now |
| 5th Floor, Ste 502 | 9,545 SF | Negotiable | $26.00 CAD/SF/YR $2.17 CAD/SF/MO $248,170 CAD/YR $20,681 CAD/MO | Office | Full Build-Out | Now |
| 14th Floor, Ste 1409 | 2,934 SF | Negotiable | $26.00 CAD/SF/YR $2.17 CAD/SF/MO $76,284 CAD/YR $6,357 CAD/MO | Office | Full Build-Out | Now |
| 17th Floor, Ste 1703 | 2,617 SF | Negotiable | $26.00 CAD/SF/YR $2.17 CAD/SF/MO $68,042 CAD/YR $5,670 CAD/MO | Office | Partial Build-Out | Now |
| 17th Floor, Ste 1706 | 5,998 SF | 1-10 Years | $26.00 CAD/SF/YR $2.17 CAD/SF/MO $155,948 CAD/YR $12,996 CAD/MO | Office | Full Build-Out | Now |
| 17th Floor, Ste 1707 | 1,121 SF | Negotiable | $26.00 CAD/SF/YR $2.17 CAD/SF/MO $29,146 CAD/YR $2,429 CAD/MO | Office | Full Build-Out | Now |
| 17th Floor, Ste 1708 | 4,236 SF | Negotiable | $26.00 CAD/SF/YR $2.17 CAD/SF/MO $110,136 CAD/YR $9,178 CAD/MO | Office | Partial Build-Out | Now |
1st Floor, Ste 106
| Size |
| 529 SF |
| Term |
| Negotiable |
| Rental Rate |
| $26.00 CAD/SF/YR $2.17 CAD/SF/MO $13,754 CAD/YR $1,146 CAD/MO |
| Space Use |
| Retail |
| Build-Out |
| Shell Space |
| Available |
| Now |
5th Floor, Ste 502
| Size |
| 9,545 SF |
| Term |
| Negotiable |
| Rental Rate |
| $26.00 CAD/SF/YR $2.17 CAD/SF/MO $248,170 CAD/YR $20,681 CAD/MO |
| Space Use |
| Office |
| Build-Out |
| Full Build-Out |
| Available |
| Now |
14th Floor, Ste 1409
| Size |
| 2,934 SF |
| Term |
| Negotiable |
| Rental Rate |
| $26.00 CAD/SF/YR $2.17 CAD/SF/MO $76,284 CAD/YR $6,357 CAD/MO |
| Space Use |
| Office |
| Build-Out |
| Full Build-Out |
| Available |
| Now |
17th Floor, Ste 1703
| Size |
| 2,617 SF |
| Term |
| Negotiable |
| Rental Rate |
| $26.00 CAD/SF/YR $2.17 CAD/SF/MO $68,042 CAD/YR $5,670 CAD/MO |
| Space Use |
| Office |
| Build-Out |
| Partial Build-Out |
| Available |
| Now |
17th Floor, Ste 1706
| Size |
| 5,998 SF |
| Term |
| 1-10 Years |
| Rental Rate |
| $26.00 CAD/SF/YR $2.17 CAD/SF/MO $155,948 CAD/YR $12,996 CAD/MO |
| Space Use |
| Office |
| Build-Out |
| Full Build-Out |
| Available |
| Now |
17th Floor, Ste 1707
| Size |
| 1,121 SF |
| Term |
| Negotiable |
| Rental Rate |
| $26.00 CAD/SF/YR $2.17 CAD/SF/MO $29,146 CAD/YR $2,429 CAD/MO |
| Space Use |
| Office |
| Build-Out |
| Full Build-Out |
| Available |
| Now |
17th Floor, Ste 1708
| Size |
| 4,236 SF |
| Term |
| Negotiable |
| Rental Rate |
| $26.00 CAD/SF/YR $2.17 CAD/SF/MO $110,136 CAD/YR $9,178 CAD/MO |
| Space Use |
| Office |
| Build-Out |
| Partial Build-Out |
| Available |
| Now |
1st Floor, Ste 106
| Size | 529 SF |
| Term | Negotiable |
| Rental Rate | $26.00 CAD/SF/YR |
| Space Use | Retail |
| Build-Out | Shell Space |
| Available | Now |
Rare, ground floor unit available suitable for multi-use.
- Lease rate does not include utilities, property expenses or building services
5th Floor, Ste 502
| Size | 9,545 SF |
| Term | Negotiable |
| Rental Rate | $26.00 CAD/SF/YR |
| Space Use | Office |
| Build-Out | Full Build-Out |
| Available | Now |
Built out with open space, offices, meeting rooms and a kitchen.
- Lease rate does not include utilities, property expenses or building services
- Fully Built-Out as Standard Office
- Mostly Open Floor Plan Layout
- Fits 24 - 77 People
- 7 Private Offices
- 1 Conference Room
- Central Air and Heating
- Drop Ceilings
14th Floor, Ste 1409
| Size | 2,934 SF |
| Term | Negotiable |
| Rental Rate | $26.00 CAD/SF/YR |
| Space Use | Office |
| Build-Out | Full Build-Out |
| Available | Now |
Available Immediately, move-in ready condition. Unique small corner suite with kitchen, private offices with glass fronts -- and furnished.
- Lease rate does not include utilities, property expenses or building services
- Fully Built-Out as Standard Office
- Fits 8 - 24 People
- 5 Private Offices
- 1 Conference Room
- Space is in Excellent Condition
17th Floor, Ste 1703
| Size | 2,617 SF |
| Term | Negotiable |
| Rental Rate | $26.00 CAD/SF/YR |
| Space Use | Office |
| Build-Out | Partial Build-Out |
| Available | Now |
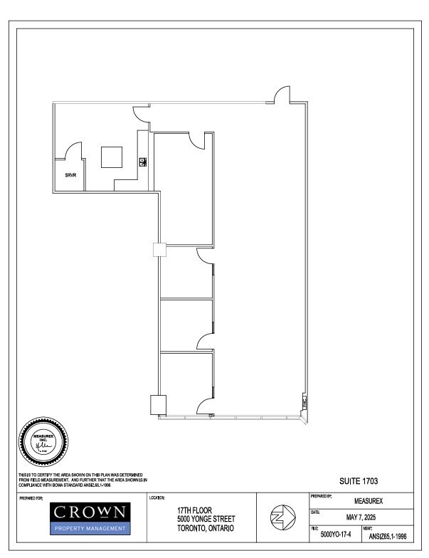
Newly renovated model suite with three offices, boardroom and beautiful kitchen. Available October 1, 2025.
- Lease rate does not include utilities, property expenses or building services
- Partially Built-Out as Standard Office
- Mostly Open Floor Plan Layout
- Fits 7 - 21 People
- 3 Private Offices
- 1 Conference Room
- Space is in Excellent Condition
17th Floor, Ste 1706
| Size | 5,998 SF |
| Term | 1-10 Years |
| Rental Rate | $26.00 CAD/SF/YR |
| Space Use | Office |
| Build-Out | Full Build-Out |
| Available | Now |
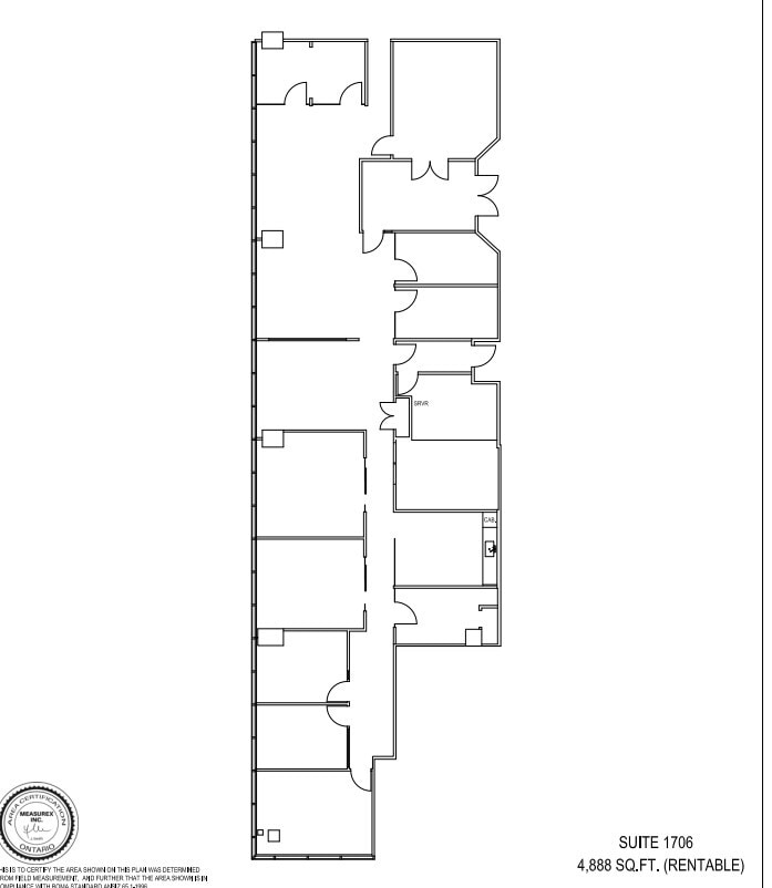
Beautifully renovated office with excellent mix of office, meeting space, and open area, with elevator exposure. Space can be demised to 4,888 SF and 1,110 SF.
- Lease rate does not include utilities, property expenses or building services
- Fully Built-Out as Standard Office
- Mostly Open Floor Plan Layout
- Fits 15 - 48 People
- Can be combined with additional space(s) for up to 10,234 SF of adjacent space
- Central Air and Heating
- Private Restrooms
- Natural Light
- Open-Plan
- Smoke Detector
- Lots of Natural Light
- Open Plan
- Private Offices
17th Floor, Ste 1707
| Size | 1,121 SF |
| Term | Negotiable |
| Rental Rate | $26.00 CAD/SF/YR |
| Space Use | Office |
| Build-Out | Full Build-Out |
| Available | Now |
South Facing, built out office space on newly renovated floor with a meeting room and a private office.
- Lease rate does not include utilities, property expenses or building services
- Fully Built-Out as Standard Office
- Open Floor Plan Layout
- Fits 3 - 9 People
- 1 Private Office
- 1 Conference Room
- Central Air and Heating
- Drop Ceilings
17th Floor, Ste 1708
| Size | 4,236 SF |
| Term | Negotiable |
| Rental Rate | $26.00 CAD/SF/YR |
| Space Use | Office |
| Build-Out | Partial Build-Out |
| Available | Now |
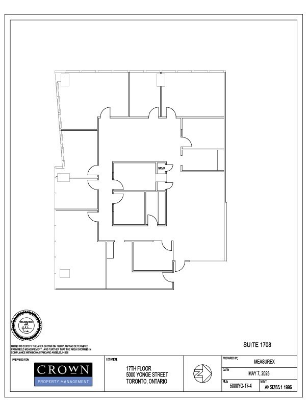
Nicely built out corner office with multiple offices, open area, and meeting space. Available September 1, 2025.
- Lease rate does not include utilities, property expenses or building services
- Fits 11 - 34 People
- 10 Private Offices
- Space is in Excellent Condition
- Can be combined with additional space(s) for up to 10,234 SF of adjacent space
- Corner Space
Features and Amenities
- 24 Hour Access
- Bus Line
- Commuter Rail
- Convenience Store
- Metro/Subway
- Property Manager on Site
- Restaurant
- Security System
- Signage
- Reception
- Central Heating
- Air Conditioning
- Smoke Detector
- On-Site Security Staff
Property Facts
Sustainability
Sustainability
LEED Certification Led by the Canada Green Building Council (CAGBC), the Leadership in Energy and Environmental Design (LEED) is a green building certification program focused on the design, construction, operation, and maintenance of green buildings, homes, and neighborhoods, which aims to help building owners and operators be environmentally responsible and use resources efficiently. LEED certification is a globally recognized symbol of sustainability achievement and leadership. To achieve LEED certification, a project earns points by adhering to prerequisites and credits that address carbon, energy, water, waste, transportation, materials, health and indoor environmental quality. Projects go through a verification and review process and are awarded points that correspond to a level of LEED certification: Platinum (80+ points) Gold (60-79 points) Silver (50-59 points) Certified (40-49 points)
Presented by
Ivari Tower | 5000 Yonge St
Hmm, there seems to have been an error sending your message. Please try again.
Thanks! Your message was sent.













