Your email has been sent.
City Square 555 W 12th Ave 658 - 21,492 SF of 4-Star Space Available in Vancouver, BC V5Z 3X7



All Available Spaces(5)
Display Rental Rate as
- Space
- Size
- Term
- Rental Rate
- Space Use
- Condition
- Available
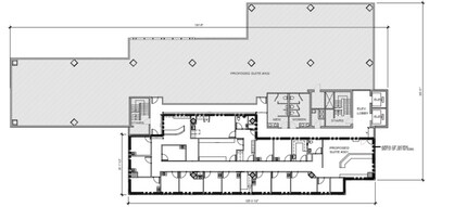
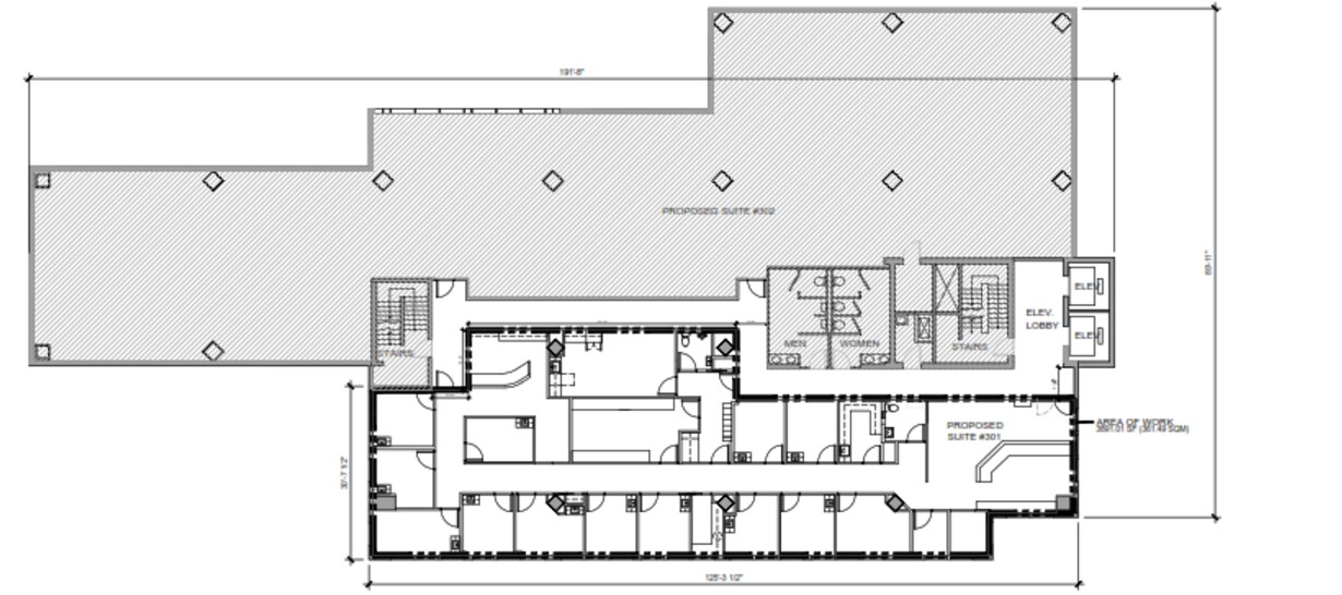
Half 3rd floor West Tower, currently open unfinished space, common washrooms and elevators.
- Lease rate does not include utilities, property expenses or building services
- Mostly Open Floor Plan Layout
- Elevator Access
- Half 3rd floor
- Located at Cambie Rd & West 12th Avenue
- Fully Built-Out as Standard Office
- Central Air Conditioning
- Natural Light
- Underground parking
Unit #450 is located on the 4th floor of the West Tower facing North, fully improved office space, with double glass entry door into open reception area, 1 private office, staff room, and file room. Note: Availability is subject to change without notice.
- Lease rate does not include utilities, property expenses or building services
- Mostly Open Floor Plan Layout
- Reception Area
- Underground parking
- Fully Built-Out as Standard Office
- 1 Private Office
- Double glass entry doors
- Fully improved office space
Unit #475 is a fully improved modern build out office space in the West Tower, with newer quality improvements. Layout includes double glass entry doors into reception area, large open areas, 1 large open board rooms, 2 private offices, 2 smaller rooms, and a staff lounge. Note: Availability is subject to change without notice.
- Lease rate does not include utilities, property expenses or building services
- Mostly Open Floor Plan Layout
- 1 Conference Room
- Open-Plan
- Reception area
- Fully Built-Out as Standard Office
- 2 Private Offices
- Reception Area
- Staff lounge
Unit #510 is a 5th floor medical type office space in East Tower, fully improved with a reception area, 2 offices, up to 6 exam / treatment rooms, lab room. Enquire as to the Base Rent expectations.
- Fully Built-Out as Standard Office
- 2 Private Offices
- Reception Area
- Natural Light
- Underground parking
- Mostly Open Floor Plan Layout
- 6 Workstations
- Central Air Conditioning
- 4 offices, reception area, storage room.
- Fully improved office space with views to North
Unit #550 is the entire 5th floor of the West Tower, fully finished office space with nice views to the North & South. Dedicated 5th floor lobby access, unique sliding wooden door to reception area, several mini and larger boardrooms, numerous open bullpen style working areas, 4 to 5 private offices, staff lounge, and full washrooms within the Premises. Note: Furnishings in the images have been removed. Availability is subject to change without notice.
- Lease rate does not include utilities, property expenses or building services
- Mostly Open Floor Plan Layout
- Reception Area
- 5th floor lobby access
- Fully Built-Out as Standard Office
- 5 Private Offices
- Private Restrooms
- Views to North and South
| Space | Size | Term | Rental Rate | Space Use | Condition | Available |
| 3rd Floor, Ste 302 | 7,554 SF | 1-10 Years | $29.00 CAD/SF/YR $2.42 CAD/SF/MO $219,066 CAD/YR $18,256 CAD/MO | Office | Full Build-Out | Now |
| 4th Floor, Ste 450 | 658 SF | 1-10 Years | $35.00 CAD/SF/YR $2.92 CAD/SF/MO $23,030 CAD/YR $1,919 CAD/MO | Office | Full Build-Out | Now |
| 4th Floor, Ste 475 | 3,616 SF | Negotiable | $30.00 CAD/SF/YR $2.50 CAD/SF/MO $108,480 CAD/YR $9,040 CAD/MO | Office | Full Build-Out | Now |
| 5th Floor, Ste 510 | 1,544 SF | 1-10 Years | $30.00 CAD/SF/YR $2.50 CAD/SF/MO $46,320 CAD/YR $3,860 CAD/MO | Office/Medical | Full Build-Out | Now |
| 5th Floor, Ste 550 | 8,120 SF | 1-10 Years | $29.00 CAD/SF/YR $2.42 CAD/SF/MO $235,480 CAD/YR $19,623 CAD/MO | Office | Full Build-Out | Now |
3rd Floor, Ste 302
| Size |
| 7,554 SF |
| Term |
| 1-10 Years |
| Rental Rate |
| $29.00 CAD/SF/YR $2.42 CAD/SF/MO $219,066 CAD/YR $18,256 CAD/MO |
| Space Use |
| Office |
| Condition |
| Full Build-Out |
| Available |
| Now |
4th Floor, Ste 450
| Size |
| 658 SF |
| Term |
| 1-10 Years |
| Rental Rate |
| $35.00 CAD/SF/YR $2.92 CAD/SF/MO $23,030 CAD/YR $1,919 CAD/MO |
| Space Use |
| Office |
| Condition |
| Full Build-Out |
| Available |
| Now |
4th Floor, Ste 475
| Size |
| 3,616 SF |
| Term |
| Negotiable |
| Rental Rate |
| $30.00 CAD/SF/YR $2.50 CAD/SF/MO $108,480 CAD/YR $9,040 CAD/MO |
| Space Use |
| Office |
| Condition |
| Full Build-Out |
| Available |
| Now |
5th Floor, Ste 510
| Size |
| 1,544 SF |
| Term |
| 1-10 Years |
| Rental Rate |
| $30.00 CAD/SF/YR $2.50 CAD/SF/MO $46,320 CAD/YR $3,860 CAD/MO |
| Space Use |
| Office/Medical |
| Condition |
| Full Build-Out |
| Available |
| Now |
5th Floor, Ste 550
| Size |
| 8,120 SF |
| Term |
| 1-10 Years |
| Rental Rate |
| $29.00 CAD/SF/YR $2.42 CAD/SF/MO $235,480 CAD/YR $19,623 CAD/MO |
| Space Use |
| Office |
| Condition |
| Full Build-Out |
| Available |
| Now |
3rd Floor, Ste 302
| Size | 7,554 SF |
| Term | 1-10 Years |
| Rental Rate | $29.00 CAD/SF/YR |
| Space Use | Office |
| Condition | Full Build-Out |
| Available | Now |
Half 3rd floor West Tower, currently open unfinished space, common washrooms and elevators.
- Lease rate does not include utilities, property expenses or building services
- Fully Built-Out as Standard Office
- Mostly Open Floor Plan Layout
- Central Air Conditioning
- Elevator Access
- Natural Light
- Half 3rd floor
- Underground parking
- Located at Cambie Rd & West 12th Avenue
4th Floor, Ste 450
| Size | 658 SF |
| Term | 1-10 Years |
| Rental Rate | $35.00 CAD/SF/YR |
| Space Use | Office |
| Condition | Full Build-Out |
| Available | Now |
Unit #450 is located on the 4th floor of the West Tower facing North, fully improved office space, with double glass entry door into open reception area, 1 private office, staff room, and file room. Note: Availability is subject to change without notice.
- Lease rate does not include utilities, property expenses or building services
- Fully Built-Out as Standard Office
- Mostly Open Floor Plan Layout
- 1 Private Office
- Reception Area
- Double glass entry doors
- Underground parking
- Fully improved office space
4th Floor, Ste 475
| Size | 3,616 SF |
| Term | Negotiable |
| Rental Rate | $30.00 CAD/SF/YR |
| Space Use | Office |
| Condition | Full Build-Out |
| Available | Now |
Unit #475 is a fully improved modern build out office space in the West Tower, with newer quality improvements. Layout includes double glass entry doors into reception area, large open areas, 1 large open board rooms, 2 private offices, 2 smaller rooms, and a staff lounge. Note: Availability is subject to change without notice.
- Lease rate does not include utilities, property expenses or building services
- Fully Built-Out as Standard Office
- Mostly Open Floor Plan Layout
- 2 Private Offices
- 1 Conference Room
- Reception Area
- Open-Plan
- Staff lounge
- Reception area
5th Floor, Ste 510
| Size | 1,544 SF |
| Term | 1-10 Years |
| Rental Rate | $30.00 CAD/SF/YR |
| Space Use | Office/Medical |
| Condition | Full Build-Out |
| Available | Now |
Unit #510 is a 5th floor medical type office space in East Tower, fully improved with a reception area, 2 offices, up to 6 exam / treatment rooms, lab room. Enquire as to the Base Rent expectations.
- Fully Built-Out as Standard Office
- Mostly Open Floor Plan Layout
- 2 Private Offices
- 6 Workstations
- Reception Area
- Central Air Conditioning
- Natural Light
- 4 offices, reception area, storage room.
- Underground parking
- Fully improved office space with views to North
5th Floor, Ste 550
| Size | 8,120 SF |
| Term | 1-10 Years |
| Rental Rate | $29.00 CAD/SF/YR |
| Space Use | Office |
| Condition | Full Build-Out |
| Available | Now |
Unit #550 is the entire 5th floor of the West Tower, fully finished office space with nice views to the North & South. Dedicated 5th floor lobby access, unique sliding wooden door to reception area, several mini and larger boardrooms, numerous open bullpen style working areas, 4 to 5 private offices, staff lounge, and full washrooms within the Premises. Note: Furnishings in the images have been removed. Availability is subject to change without notice.
- Lease rate does not include utilities, property expenses or building services
- Fully Built-Out as Standard Office
- Mostly Open Floor Plan Layout
- 5 Private Offices
- Reception Area
- Private Restrooms
- 5th floor lobby access
- Views to North and South
Property Overview
CITY SQUARE is located at Cambie Rd & West 12th Aenue, just South of Broadway Canada Line Station and across from Vancouver City Hall and just East of Vancouver General Hospital. Over 50 multi tenanted retail, office, medical and education uses. Underground Parkade of 650 stalls. Anchored by Sungiven Foods, Dollarama, Kins Farm Market, Food Court, Fitness World, and many many more services.
Property Facts
Presented by
City Square | 555 W 12th Ave
Hmm, there seems to have been an error sending your message. Please try again.
Thanks! Your message was sent.




