Log In/Sign Up
Your email has been sent.
Executive Summary
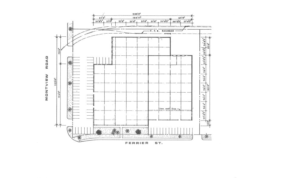
Bureaux Mezzanine | Office Mezzanine : ±1,300
Entrepôt | Warehouse : ±61,585
Terrain | Land : ±108,181
• Hauteur libre | Clear Height: 18'
3,185 pi.ca./sq.ft. @ 10'
• Quais de chargement | Truck Level doors: 7
• Distance entre les colonnes | Column spacing
31' x 26'4""
• Gicleurs | Sprinklers
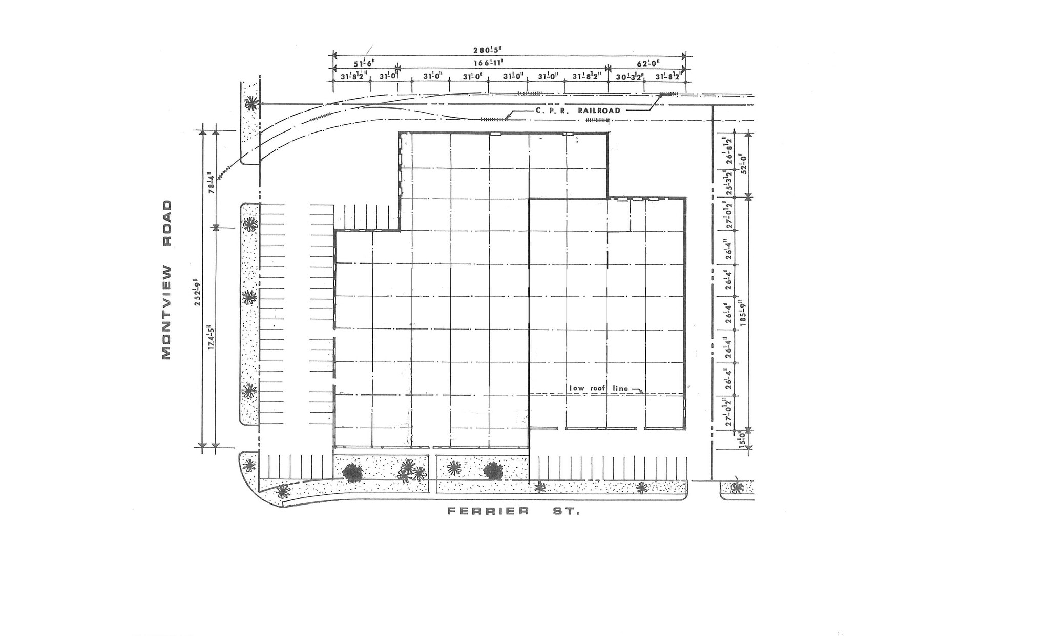
Entrepôt | Warehouse : ±61,585
Terrain | Land : ±108,181
• Hauteur libre | Clear Height: 18'
3,185 pi.ca./sq.ft. @ 10'
• Quais de chargement | Truck Level doors: 7
• Distance entre les colonnes | Column spacing
31' x 26'4""
• Gicleurs | Sprinklers
Property Facts
| Sale Type | Investment or Owner User | No. Stories | 1 |
| Property Type | Industrial | Year Built | 1972 |
| Property Subtype | Warehouse | Parking Ratio | 1.14/1,000 SF |
| Building Class | B | No. Dock-High Doors/Loading | 7 |
| Rentable Building Area | 61,585 SF | ||
| Zoning | I-103 | ||
| Sale Type | Investment or Owner User |
| Property Type | Industrial |
| Property Subtype | Warehouse |
| Building Class | B |
| Rentable Building Area | 61,585 SF |
| No. Stories | 1 |
| Year Built | 1972 |
| Parking Ratio | 1.14/1,000 SF |
| No. Dock-High Doors/Loading | 7 |
| Zoning | I-103 |
Amenities
- Bus Line
- Security System
- Signage
- Air Conditioning
- Smoke Detector
Fairly walkable
50/100
Exceptionally drivable
100/100
Good public transit
70/100
Fairly bikeable
50/100
1 of 10
Videos
Matterport 3D Exterior
Matterport 3D Tour
Photos
Street View
Street
Map
Presented by
5655-5695 Rue Ferrier
Already a member? Log In
Hmm, there seems to have been an error sending your message. Please try again.
Thanks! Your message was sent.




