Your email has been sent.
9267-9295 Shaughnessy St 4,067 SF Industrial Condo Unit Offered at $2,180,000 CAD in Vancouver, BC V6P 6E5



Executive Summary
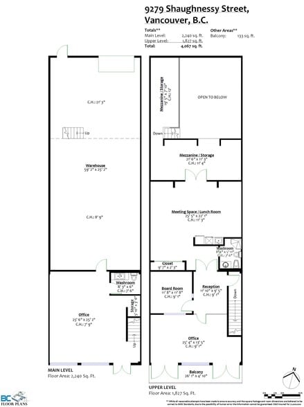
4,067 SQFT industrial strata unit featuring direct frontage and unobstructed Fraser River views. The 2,240 SQFT ground floor is configured with air-conditioned turnkey office and showroom improvements, a washroom, and warehouse serviced by one (1) dock loading door. The 1,827 SQFT second floor is fully improved with turnkey air-conditioned office space, including private offices, a boardroom, washroom with shower, storage mezzanine, and a south-facing balcony overlooking the river. The property is located in South Vancouver’s Marpole industrial area, situated directly on the Fraser River. The site provides immediate access to SW Marine Drive, Oak Street Bridge, Arthur Laing Bridge, and Highway 99, offering rapid connectivity to YVR, Richmond, and Downtown Vancouver. It is minutes from the Marine Drive Canada Line Station and the Marine Gateway commercial hub.
1 Unit Available
Unit 9279
| Unit Size | 4,067 SF | Condo Use | Industrial |
| Price | $2,180,000 CAD | Sale Type | Investment or Owner User |
| Price Per SF | $536.02 CAD | No. Parking Spaces | 4 |
| Unit Size | 4,067 SF |
| Price | $2,180,000 CAD |
| Price Per SF | $536.02 CAD |
| Condo Use | Industrial |
| Sale Type | Investment or Owner User |
| No. Parking Spaces | 4 |
Description
4,067 SQFT industrial strata unit featuring direct frontage and unobstructed Fraser River views. The 2,240 SQFT ground floor is configured with air-conditioned turnkey office and showroom improvements, a washroom, and warehouse serviced by one (1) dock loading door. The 1,827 SQFT second floor is fully improved with turnkey air-conditioned office space, including private offices, a boardroom, washroom with shower, storage mezzanine, and a south-facing balcony overlooking the river.
The property is located in South Vancouver’s Marpole industrial area, situated directly on the Fraser River. The site provides immediate access to SW Marine Drive, Oak Street Bridge, Arthur Laing Bridge, and Highway 99, offering rapid connectivity to YVR, Richmond, and Downtown Vancouver. It is minutes from the Marine Drive Canada Line Station and the Marine Gateway commercial hub.
Web - 9279 Shaugnessy-21
Web - 9279 Shaugnessy-26
Web - 9279 Shaugnessy-25
Web - 9279 Shaugnessy-24
Web - 9279 Shaugnessy-23
Web - 9279 Shaugnessy-22
Web - 9279 Shaugnessy-20
Web - 9279 Shaugnessy-18
Web - 9279 Shaugnessy-17
Web - 9279 Shaugnessy-16
Web - 9279 Shaugnessy-15
Web - 9279 Shaugnessy-11
Web - 9279 Shaugnessy-9
Web - 9279 Shaugnessy-8
Web - 9279 Shaugnessy-7
Web - 9279 Shaugnessy-6
Web - 9279 Shaugnessy-5
Web - 9279 Shaugnessy-4
Web - 9279 Shaugnessy-3
Web - 9279 Shaugnessy-2
Web - 9279 Shaugnessy-1
Web - 9279 Shaugnessy-14
Web - 9279 Shaugnessy-12
Web - 9279 Shaugnessy-19
Web - 9279 Shaugnessy-13
Web - 9279 Shaugnessy-10
Floor Plan - 9279 Shaughnessy Street, Vancouver (1)
Property Facts
| Total Building Size | 35,803 SF | Floors | 2 |
| Property Type | Industrial (Condo) | Typical Floor Size | 17,902 SF |
| Property Subtype | Warehouse | Year Built | 1988 |
| Building Class | B | Lot Size | 0.69 AC |
| Zoning | M-2 | ||
| Total Building Size | 35,803 SF |
| Property Type | Industrial (Condo) |
| Property Subtype | Warehouse |
| Building Class | B |
| Floors | 2 |
| Typical Floor Size | 17,902 SF |
| Year Built | 1988 |
| Lot Size | 0.69 AC |
| Zoning | M-2 |
Amenities
- Signage
Presented by
9267-9295 Shaughnessy St
Hmm, there seems to have been an error sending your message. Please try again.
Thanks! Your message was sent.

