Votre courriel a été envoyé.
Joseph Howe 1690 Hollis St 4 679–125 337 pi² d'espace disponible • Bureau • 4 étoiles • Halifax, NS B3J 1X2



Certaines informations ont été traduites automatiquement.
Faits saillants
- Situé au centre-ville de Halifax
- Hall d'entrée et espaces communs récemment rénovés
Tous les espaces disponibles(14)
Afficher les taux de location en
- Espace
- Taille
- Terme
- Taux de location
- Utilisation de l’espace
- Aménagement
- Disponible
L'unité H01 offre environ 6 781 pi² d'espace de bureau efficace dans une tour de bureaux emblématique de 12 étages, en face de l'Assemblée législative de la Nouvelle-Écosse, au centre-ville de Halifax. Dotée d'un plan d'étage efficace avec chauffage et climatisation périmétriques, cette suite bénéficie d'unités de radiation murales et d'un accès à trois ascenseurs pour passagers desservant jusqu'au 11e étage. Les locataires profitent d'une présence extérieure moderne, d'un hall rénové et d'espaces communs, ainsi que de vues imprenables sur le port et la ligne d'horizon de la ville. Joseph Howe offre environ 125 356 pi², ce qui le rend adapté aux entreprises recherchant prestige, commodité et présence centrale au centre-ville. L'emplacement offre une proximité immédiate avec des restaurants, des boutiques, des attractions culturelles et le pittoresque front de mer. Unités disponibles : Unité 201 : 10 410 pi² Unité 301 : 10 415 pi² Unité 401 : 10 327 pi² Unité 501 : 10 409 pi² Unité 601 : 10 321 pi² Unité 701 : 10 324 pi² Unité 801 : 10 325 pi² Unité 901 : 10 325 pi² Unité 1001 : 10 293 pi² Unité 1101 : 5 640 pi² Unité 1102 : 4 679 pi² Unité 1201 : 7 446 pi² Unité G01 : 7 642 pi² Unité H01 : 6 781 pi² C'est une occasion rare de sécuriser une présence dans tout le bâtiment ou plusieurs étages contigus dans l'une des propriétés de bureaux les plus prestigieuses et stratégiquement situées du centre-ville de Halifax. Contact : Rob Schelleman, Directeur général commercial 902-496-0928 | rob@universalgroup.ca
- Convient pour 17 à 55 personnes
- Verre bronze solaire et revêtement en aluminium
- Systèmes de chauffage et de refroidissement périmétriques
- Trois ascenseurs pour passagers + accès accessible
- En face de l'Assemblée législative de la Nouvelle-Écosse
- Hall d'entrée et espaces communs rénovés
- Climatisation dédiée aux niveaux 12 et Hollis
L'unité G01 offre environ 7 642 pi² d'espace de bureau efficace dans une tour de bureaux emblématique de 12 étages, en face de l'Assemblée législative de la Nouvelle-Écosse, au centre-ville de Halifax. Dotée d'un plan d'étage efficace avec chauffage et climatisation périmétriques, cette suite bénéficie d'unités de radiation murales et d'un accès à trois ascenseurs pour passagers desservant jusqu'au 11e étage. Les locataires profitent d'une présence extérieure moderne, d'un hall d'entrée et d'espaces communs rénovés, ainsi que de vues imprenables sur le port et la ligne d'horizon de la ville. Joseph Howe offre environ 125 356 pi², ce qui le rend adapté aux entreprises recherchant prestige, commodité et présence centrale au centre-ville. L'emplacement offre une proximité immédiate avec des restaurants, des magasins, des attractions culturelles et le pittoresque front de mer. Unités disponibles : Unité 201 : 10 410 pi² Unité 301 : 10 415 pi² Unité 401 : 10 327 pi² Unité 501 : 10 409 pi² Unité 601 : 10 321 pi² Unité 701 : 10 324 pi² Unité 801 : 10 325 pi² Unité 901 : 10 325 pi² Unité 1001 : 10 293 pi² Unité 1101 : 5 640 pi² Unité 1102 : 4 679 pi² Unité 1201 : 7 446 pi² Unité G01 : 7 642 pi² Unité H01 : 6 781 pi² C'est une occasion rare de sécuriser une présence dans tout le bâtiment ou plusieurs étages contigus dans l'une des propriétés de bureaux les plus prestigieuses et stratégiquement situées du centre-ville de Halifax. Contact : Rob Schelleman, Directeur général commercial 902-496-0928 | rob@universalgroup.ca
- Entièrement construit comme Bureau de services professionnels
- Convient pour 20 à 62 personnes
- Verre bronze solaire et revêtement en aluminium
- Systèmes de chauffage et de refroidissement périmétriques
- Trois ascenseurs pour passagers + accès accessible
- Disposition du plan d’étage ouverte
- En face de l'Assemblée législative de la Nouvelle-Écosse
- Hall d'entrée et espaces communs rénovés
- Climatisation dédiée aux niveaux 12 et Hollis
L'unité 201 offre environ 10 410 pi² d'espace de bureau efficace dans une tour de bureaux emblématique de 12 étages, en face de l'Assemblée législative de la Nouvelle-Écosse, au centre-ville de Halifax. Dotée d'un plan d'étage efficace avec chauffage et climatisation périmétriques, cette suite bénéficie d'unités de radiation murales et d'un accès à trois ascenseurs pour passagers desservant jusqu'au 11e étage. Les locataires profitent d'une présence extérieure moderne, d'un hall et d'espaces communs rénovés, ainsi que de vues imprenables sur le port et la ligne d'horizon de la ville. Joseph Howe offre environ 125 356 pi², ce qui le rend adapté aux entreprises recherchant prestige, commodité et présence centrale au centre-ville. L'emplacement offre une proximité immédiate avec des restaurants, des boutiques, des attractions culturelles et le pittoresque front de mer. Unités disponibles : Unité 201 : 10 410 pi² Unité 301 : 10 415 pi² Unité 401 : 10 327 pi² Unité 501 : 10 409 pi² Unité 601 : 10 321 pi² Unité 701 : 10 324 pi² Unité 801 : 10 325 pi² Unité 901 : 10 325 pi² Unité 1001 : 10 293 pi² Unité 1101 : 5 640 pi² Unité 1102 : 4 679 pi² Unité 1201 : 7 446 pi² Unité G01 : 7 642 pi² Unité H01 : 6 781 pi² C'est une occasion rare de sécuriser une présence dans tout le bâtiment ou plusieurs étages contigus dans l'une des propriétés de bureaux les plus prestigieuses et stratégiquement situées du centre-ville de Halifax. Contact : Rob Schelleman, Directeur général commercial 902-496-0928 | rob@universalgroup.ca
- Entièrement construit comme Bureau de services professionnels
- Convient pour 27 à 84 personnes
- Verre bronze solaire et revêtement en aluminium
- Systèmes de chauffage et de refroidissement périmétriques
- Trois ascenseurs pour passagers + accès accessible
- Disposition du plan d’étage ouverte
- En face de l'Assemblée législative de la Nouvelle-Écosse
- Hall d'entrée et espaces communs rénovés
- Climatisation dédiée aux niveaux 12 et Hollis
L'unité 301 offre environ 10 415 pi² d'espace de bureau efficace dans une tour de bureaux emblématique de 12 étages, en face de l'Assemblée législative de la Nouvelle-Écosse, au centre-ville de Halifax. Dotée d'un plan d'étage efficace avec chauffage et climatisation périmétriques, cette suite bénéficie d'unités de radiation murales et d'un accès à trois ascenseurs pour passagers desservant jusqu'au 11e étage. Les locataires profitent d'une présence extérieure moderne, d'un hall rénové et d'espaces communs, ainsi que de vues imprenables sur le port et la ligne d'horizon de la ville. Joseph Howe offre environ 125 356 pi², ce qui le rend adapté aux entreprises recherchant prestige, commodité et présence centrale au centre-ville. L'emplacement offre une proximité immédiate avec des restaurants, des boutiques, des attractions culturelles et le pittoresque front de mer. Unités disponibles : Unité 201 : 10 410 pi² Unité 301 : 10 415 pi² Unité 401 : 10 327 pi² Unité 501 : 10 409 pi² Unité 601 : 10 321 pi² Unité 701 : 10 324 pi² Unité 801 : 10 325 pi² Unité 901 : 10 325 pi² Unité 1001 : 10 293 pi² Unité 1101 : 5 640 pi² Unité 1102 : 4 679 pi² Unité 1201 : 7 446 pi² Unité G01 : 7 642 pi² Unité H01 : 6 781 pi² C'est une occasion rare de sécuriser une présence dans tout le bâtiment ou plusieurs étages contigus dans l'une des propriétés de bureaux les plus prestigieuses et stratégiquement situées du centre-ville de Halifax. Contact : Rob Schelleman, Directeur général commercial 902-496-0928 | rob@universalgroup.ca
- Entièrement construit comme Bureau de services professionnels
- Convient pour 27 à 84 personnes
- Verre bronze solaire et revêtement en aluminium
- Systèmes de chauffage et de climatisation périmétriques
- Trois ascenseurs pour passagers + accès accessible
- Disposition du plan d’étage ouverte
- En face de l'Assemblée législative de la Nouvelle-Écosse
- Hall d'entrée et espaces communs rénovés
- Climatisation dédiée aux niveaux 12 et Hollis
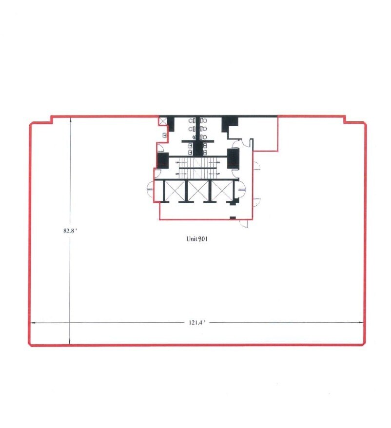
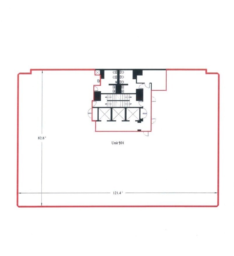
L'unité 401 offre environ 10 327 pieds carrés d'espace de bureau efficace dans une tour de bureaux emblématique de 12 étages, en face de l'Assemblée législative de la Nouvelle-Écosse au centre-ville de Halifax. Avec un plan d'étage efficace doté de chauffage et de climatisation périmétriques, cette suite bénéficie d'unités de radiation murales et d'un accès à trois ascenseurs pour passagers desservant jusqu'au 11e étage. Les locataires profitent d'une présence extérieure moderne, d'un hall rénové et d'espaces communs, ainsi que de vues magnifiques sur le port et la ligne d'horizon de la ville. Joseph Howe offre environ 125 356 pieds carrés, ce qui le rend adapté aux entreprises recherchant prestige, commodité et une présence centrale au centre-ville. L'emplacement offre une proximité immédiate avec des restaurants, des boutiques, des attractions culturelles et le pittoresque front de mer. Unités disponibles : Unité 201 : 10 410 pieds carrés Unité 301 : 10 415 pieds carrés Unité 401 : 10 327 pieds carrés Unité 501 : 10 409 pieds carrés Unité 601 : 10 321 pieds carrés Unité 701 : 10 324 pieds carrés Unité 801 : 10 325 pieds carrés Unité 901 : 10 325 pieds carrés Unité 1001 : 10 293 pieds carrés Unité 1101 : 5 640 pieds carrés Unité 1102 : 4 679 pieds carrés Unité 1201 : 7 446 pieds carrés Unité G01 : 7 642 pieds carrés Unité H01 : 6 781 pieds carrés C'est une occasion rare de sécuriser une présence dans tout le bâtiment ou plusieurs étages contigus dans l'une des propriétés de bureaux les plus prestigieuses et stratégiquement situées du centre-ville de Halifax. Contact : Rob Schelleman, Directeur général commercial 902-496-0928 | rob@universalgroup.ca
- Entièrement construit comme Bureau de services professionnels
- Convient pour 26 à 83 personnes
- En face de l'Assemblée législative de la Nouvelle-Écosse
- Hall d'entrée et espaces communs rénovés
- Climatisation dédiée aux niveaux 12 et Hollis
- Disposition du plan d’étage ouverte
- Espace en excellent état
- Verre bronze solaire et revêtement en aluminium
- Systèmes de chauffage et de refroidissement périmétriques
- Trois ascenseurs pour passagers + accès accessible
L'unité 501 offre environ 10 409 pi² d'espace de bureau efficace dans une tour de bureaux emblématique de 12 étages, en face de l'Assemblée législative de la Nouvelle-Écosse, au centre-ville de Halifax. Dotée d'un plan d'étage efficace avec chauffage et climatisation périmétriques, cette suite bénéficie d'unités de radiation murales et d'un accès à trois ascenseurs pour passagers desservant jusqu'au 11e étage. Les locataires profitent d'une présence extérieure moderne, d'un hall d'entrée et d'espaces communs rénovés, ainsi que de vues imprenables sur le port et la ligne d'horizon de la ville. Joseph Howe offre environ 125 356 pi², ce qui le rend adapté aux entreprises recherchant prestige, commodité et présence centrale au centre-ville. L'emplacement offre une proximité immédiate avec des restaurants, des boutiques, des attractions culturelles et le pittoresque front de mer. Unités disponibles : Unité 201 : 10 410 pi² Unité 301 : 10 415 pi² Unité 401 : 10 327 pi² Unité 501 : 10 409 pi² Unité 601 : 10 321 pi² Unité 701 : 10 324 pi² Unité 801 : 10 325 pi² Unité 901 : 10 325 pi² Unité 1001 : 10 293 pi² Unité 1101 : 5 640 pi² Unité 1102 : 4 679 pi² Unité 1201 : 7 446 pi² Unité G01 : 7 642 pi² Unité H01 : 6 781 pi² C'est une occasion rare de sécuriser une présence dans tout le bâtiment ou plusieurs étages contigus dans l'une des propriétés de bureaux les plus prestigieuses et stratégiquement situées du centre-ville de Halifax. Contact : Rob Schelleman, Directeur général commercial 902-496-0928 | rob@universalgroup.ca
- Entièrement construit comme Bureau de services professionnels
- En face de l'Assemblée législative de la Nouvelle-Écosse
- Hall d'entrée et espaces communs rénovés
- Climatisation dédiée aux niveaux 12 et Hollis
- Convient pour 27 à 84 personnes
- Verre bronze solaire et revêtement en aluminium
- Systèmes de chauffage et de refroidissement périmétriques
- Trois ascenseurs pour passagers + accès accessible
L'unité 601 offre environ 10 321 pieds carrés d'espace de bureau efficace dans une tour de bureaux emblématique de 12 étages, en face de l'Assemblée législative de la Nouvelle-Écosse, au centre-ville de Halifax. Dotée d'un plan d'étage efficace avec chauffage et climatisation périmétriques, cette suite bénéficie d'unités de radiation murales et d'un accès à trois ascenseurs pour passagers desservant jusqu'au 11e étage. Les locataires profitent d'une présence extérieure moderne, d'un hall rénové et d'espaces communs, ainsi que de vues imprenables sur le port et la ligne d'horizon de la ville. Joseph Howe offre environ 125 356 pieds carrés, ce qui le rend adapté aux entreprises recherchant prestige, commodité et présence centrale au centre-ville. L'emplacement offre une proximité immédiate avec des restaurants, des magasins, des attractions culturelles et le pittoresque front de mer. Unités disponibles : Unité 201 : 10 410 pi² Unité 301 : 10 415 pi² Unité 401 : 10 327 pi² Unité 501 : 10 409 pi² Unité 601 : 10 321 pi² Unité 701 : 10 324 pi² Unité 801 : 10 325 pi² Unité 901 : 10 325 pi² Unité 1001 : 10 293 pi² Unité 1101 : 5 640 pi² Unité 1102 : 4 679 pi² Unité 1201 : 7 446 pi² Unité G01 : 7 642 pi² Unité H01 : 6 781 pi² C'est une occasion rare de sécuriser une présence dans tout le bâtiment ou plusieurs étages contigus dans l'une des propriétés de bureaux les plus prestigieuses et stratégiquement situées du centre-ville de Halifax. Contact : Rob Schelleman, Directeur général commercial 902-496-0928 | rob@universalgroup.ca
- Entièrement construit comme Bureau de services professionnels
- Convient pour 26 à 83 personnes
- Verre bronze solaire et revêtement en aluminium
- Systèmes de chauffage et de refroidissement périmétriques
- Trois ascenseurs pour passagers + accès accessible
- Disposition du plan d’étage ouverte
- En face de l'Assemblée législative de la Nouvelle-Écosse
- Hall d'entrée et espaces communs rénovés
- Climatisation dédiée aux niveaux 12 et Hollis
L'unité 701 offre environ 10 324 pi² d'espace de bureau efficace dans une tour de bureaux emblématique de 12 étages, en face de l'Assemblée législative de la Nouvelle-Écosse, au centre-ville de Halifax. Dotée d'un plan d'étage efficace avec chauffage et climatisation périmétriques, cette suite bénéficie d'unités de radiation murales et d'un accès à trois ascenseurs pour passagers desservant jusqu'au 11e étage. Les locataires profitent d'une présence extérieure moderne, d'un hall d'entrée et d'espaces communs rénovés, ainsi que de vues imprenables sur le port et la ligne d'horizon de la ville. Joseph Howe offre environ 125 356 pi², ce qui le rend adapté aux entreprises recherchant prestige, commodité et présence centrale au centre-ville. L'emplacement offre une proximité immédiate avec des restaurants, des magasins, des attractions culturelles et le pittoresque front de mer. Unités disponibles : Unité 201 : 10 410 pi² Unité 301 : 10 415 pi² Unité 401 : 10 327 pi² Unité 501 : 10 409 pi² Unité 601 : 10 321 pi² Unité 701 : 10 324 pi² Unité 801 : 10 325 pi² Unité 901 : 10 325 pi² Unité 1001 : 10 293 pi² Unité 1101 : 5 640 pi² Unité 1102 : 4 679 pi² Unité 1201 : 7 446 pi² Unité G01 : 7 642 pi² Unité H01 : 6 781 pi² C'est une occasion rare de sécuriser une présence dans tout le bâtiment ou plusieurs étages contigus dans l'une des propriétés de bureaux les plus prestigieuses et stratégiquement situées du centre-ville de Halifax. Contact : Rob Schelleman, Directeur général commercial 902-496-0928 | rob@universalgroup.ca
- Entièrement construit comme Bureau de services financiers
- Convient pour 26 à 83 personnes
- Verre bronze solaire et revêtement en aluminium
- Systèmes de chauffage et de refroidissement périmétriques
- Trois ascenseurs pour passagers + accès accessible
- Disposition du plan d’étage ouverte
- En face de l'Assemblée législative de la Nouvelle-Écosse
- Hall d'entrée et espaces communs rénovés
- Climatisation dédiée aux niveaux 12 et Hollis
L'unité 801 offre environ 10 325 pi² d'espace de bureau efficace dans une tour de bureaux emblématique de 12 étages, en face de l'Assemblée législative de la Nouvelle-Écosse, au centre-ville de Halifax. Dotée d'un plan d'étage efficace avec chauffage et climatisation périmétriques, cette suite bénéficie d'unités de radiation murales et d'un accès à trois ascenseurs pour passagers desservant jusqu'au 11e étage. Les locataires profitent d'une présence extérieure moderne, d'un hall rénové et d'espaces communs, ainsi que de vues imprenables sur le port et la ligne d'horizon de la ville. Joseph Howe offre environ 125 356 pi², ce qui le rend adapté aux entreprises recherchant prestige, commodité et présence centrale au centre-ville. L'emplacement offre une proximité immédiate avec des restaurants, des boutiques, des attractions culturelles et le pittoresque front de mer. Unités disponibles : Unité 201 : 10 410 pi² Unité 301 : 10 415 pi² Unité 401 : 10 327 pi² Unité 501 : 10 409 pi² Unité 601 : 10 321 pi² Unité 701 : 10 324 pi² Unité 801 : 10 325 pi² Unité 901 : 10 325 pi² Unité 1001 : 10 293 pi² Unité 1101 : 5 640 pi² Unité 1102 : 4 679 pi² Unité 1201 : 7 446 pi² Unité G01 : 7 642 pi² Unité H01 : 6 781 pi² C'est une occasion rare de sécuriser une présence dans tout le bâtiment ou plusieurs étages contigus dans l'une des propriétés de bureaux les plus prestigieuses et stratégiquement situées du centre-ville de Halifax. Contact : Rob Schelleman, Directeur général commercial 902-496-0928 | rob@universalgroup.ca
- Entièrement construit comme Bureau de services professionnels
- Convient pour 26 à 83 personnes
- Verre bronze solaire et revêtement en aluminium
- Systèmes de chauffage et de refroidissement périmétriques
- Trois ascenseurs pour passagers + accès accessible
- Disposition du plan d’étage ouverte
- En face de l'Assemblée législative de la Nouvelle-Écosse
- Hall d'entrée et espaces communs rénovés
- Climatisation dédiée aux niveaux 12 et Hollis
L'unité 901 offre environ 10 325 pieds carrés d'espace de bureau efficace dans une tour de bureaux emblématique de 12 étages, en face de l'Assemblée législative de la Nouvelle-Écosse au centre-ville de Halifax. Avec un plan d'étage efficace doté de chauffage et de climatisation périmétriques, cette suite bénéficie d'unités de radiation murales et de l'accès à trois ascenseurs pour passagers desservant jusqu'au 11e étage. Les locataires profitent d'une présence extérieure moderne, d'un hall rénové et d'espaces communs, ainsi que de vues magnifiques sur le port et la ligne d'horizon de la ville. Joseph Howe offre environ 125 356 pieds carrés, ce qui le rend adapté aux entreprises recherchant prestige, commodité et une présence centrale au centre-ville. L'emplacement offre une proximité immédiate avec des restaurants, des magasins, des attractions culturelles et le pittoresque front de mer. Unités disponibles : Unité 201 : 10 410 pieds carrés Unité 301 : 10 415 pieds carrés Unité 401 : 10 327 pieds carrés Unité 501 : 10 409 pieds carrés Unité 601 : 10 321 pieds carrés Unité 701 : 10 324 pieds carrés Unité 801 : 10 325 pieds carrés Unité 901 : 10 325 pieds carrés Unité 1001 : 10 293 pieds carrés Unité 1101 : 5 640 pieds carrés Unité 1102 : 4 679 pieds carrés Unité 1201 : 7 446 pieds carrés Unité G01 : 7 642 pieds carrés Unité H01 : 6 781 pieds carrés C'est une occasion rare de sécuriser une présence dans tout le bâtiment ou plusieurs étages contigus dans l'une des propriétés de bureaux les plus prestigieuses et stratégiquement positionnées du centre-ville de Halifax. Contact : Rob Schelleman, Directeur général commercial 902-496-0928 | rob@universalgroup.ca
- Entièrement construit comme Bureau de services professionnels
- Convient pour 26 à 83 personnes
- Verre bronze solaire et revêtement en aluminium
- Systèmes de chauffage et de refroidissement périmétriques
- Trois ascenseurs pour passagers + accès accessible
- Disposition du plan d’étage ouverte
- En face de l'Assemblée législative de la Nouvelle-Écosse
- Hall d'entrée et espaces communs rénovés
- Climatisation dédiée aux niveaux 12 et Hollis
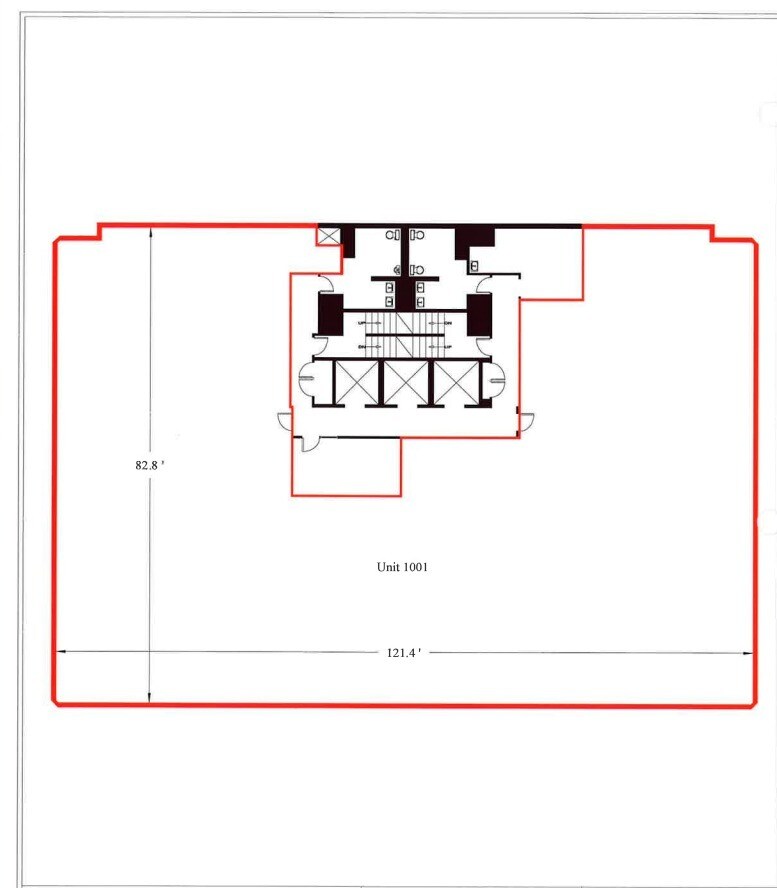
L'unité 1001 offre environ 10 293 pieds carrés d'espace de bureau efficace dans une tour de bureaux emblématique de 12 étages, en face de l'Assemblée législative de la Nouvelle-Écosse au centre-ville de Halifax. Dotée d'un plan d'étage efficace avec chauffage et climatisation périmétriques, cette suite bénéficie d'unités de radiation murales et de l'accès à trois ascenseurs pour passagers desservant jusqu'au 11e étage. Les locataires profitent d'une présence extérieure moderne, d'un hall rénové et d'espaces communs, ainsi que de vues magnifiques sur le port et la ligne d'horizon de la ville. Joseph Howe offre environ 125 356 pieds carrés, ce qui le rend adapté aux entreprises recherchant prestige, commodité et présence centrale au centre-ville. L'emplacement offre une proximité immédiate avec des restaurants, des boutiques, des attractions culturelles et le pittoresque front de mer. Unités disponibles : Unité 201 : 10 410 pieds carrés Unité 301 : 10 415 pieds carrés Unité 401 : 10 327 pieds carrés Unité 501 : 10 409 pieds carrés Unité 601 : 10 321 pieds carrés Unité 701 : 10 324 pieds carrés Unité 801 : 10 325 pieds carrés Unité 901 : 10 325 pieds carrés Unité 1001 : 10 293 pieds carrés Unité 1101 : 5 640 pieds carrés Unité 1102 : 4 679 pieds carrés Unité 1201 : 7 446 pieds carrés Unité G01 : 7 642 pieds carrés Unité H01 : 6 781 pieds carrés C'est une occasion rare de sécuriser une présence dans tout le bâtiment ou plusieurs étages contigus dans l'une des propriétés de bureaux les plus prestigieuses et stratégiquement positionnées du centre-ville de Halifax. Contact : Rob Schelleman, Directeur Général Commercial 902-496-0928 | rob@universalgroup.ca
- Entièrement construit comme Bureau de services professionnels
- Convient pour 26 à 83 personnes
- En face de l'Assemblée législative de la Nouvelle-Écosse
- Hall d'entrée et espaces communs rénovés
- Climatisation dédiée aux niveaux 12 et Hollis
- Disposition du plan d’étage ouverte
- Espace en excellent état
- Verre bronze solaire et revêtement en aluminium
- Systèmes de chauffage et de refroidissement périmétriques
- Trois ascenseurs pour passagers + accès accessible
L'unité 1101 offre environ 5 640 pieds carrés d'espace de bureau efficace dans une tour de bureaux emblématique de 12 étages, en face de l'Assemblée législative de la Nouvelle-Écosse au centre-ville de Halifax. Avec un plan d'étage efficace comprenant chauffage et climatisation périmétriques, cette suite bénéficie d'unités de radiation murales et de l'accès à trois ascenseurs pour passagers desservant jusqu'au 11e étage. Les locataires profitent d'une présence extérieure moderne, d'un hall rénové et d'espaces communs, ainsi que de vues magnifiques sur le port et la ligne d'horizon de la ville. Joseph Howe offre environ 125 356 pieds carrés, ce qui le rend adapté aux entreprises recherchant prestige, commodité et une présence centrale au centre-ville. L'emplacement offre une proximité immédiate avec des restaurants, des magasins, des attractions culturelles et le pittoresque front de mer. Unités disponibles : Unité 201 : 10 410 pieds carrés Unité 301 : 10 415 pieds carrés Unité 401 : 10 327 pieds carrés Unité 501 : 10 409 pieds carrés Unité 601 : 10 321 pieds carrés Unité 701 : 10 324 pieds carrés Unité 801 : 10 325 pieds carrés Unité 901 : 10 325 pieds carrés Unité 1001 : 10 293 pieds carrés Unité 1101 : 5 640 pieds carrés Unité 1102 : 4 679 pieds carrés Unité 1201 : 7 446 pieds carrés Unité G01 : 7 642 pieds carrés Unité H01 : 6 781 pieds carrés C'est une occasion rare de sécuriser une présence dans tout le bâtiment ou plusieurs étages contigus dans l'une des propriétés de bureaux les plus prestigieuses et stratégiquement positionnées du centre-ville de Halifax. Contact : Rob Schelleman, Directeur Général Commercial 902-496-0928 | rob@universalgroup.ca
- Entièrement construit comme Bureau de services professionnels
- Espace en excellent état
- Verre bronze solaire et revêtement en aluminium
- Systèmes de chauffage et de refroidissement périmétriques
- Trois ascenseurs pour passagers + accès accessible
- Convient pour 15 à 46 personnes
- En face de l'Assemblée législative de la Nouvelle-Écosse
- Hall d'entrée et espaces communs rénovés
- Climatisation dédiée aux niveaux 12 et Hollis
L'unité 1102 offre environ 4 679 pi² d'espace de bureau efficace dans une tour de bureaux emblématique de 12 étages, en face de l'Assemblée législative de la Nouvelle-Écosse, au centre-ville de Halifax. Dotée d'un plan d'étage efficace avec chauffage et climatisation périmétriques, cette suite bénéficie d'unités de radiation murales et d'un accès à trois ascenseurs pour passagers desservant jusqu'au 11e étage. Les locataires profitent d'une présence extérieure moderne, d'un hall rénové et d'espaces communs, ainsi que de vues imprenables sur le port et la ligne d'horizon de la ville. Joseph Howe offre environ 125 356 pi², ce qui le rend adapté aux entreprises recherchant prestige, commodité et présence centrale au centre-ville. L'emplacement offre une proximité immédiate avec des restaurants, des boutiques, des attractions culturelles et le pittoresque front de mer. Unités disponibles : Unité 201 : 10 410 pi² Unité 301 : 10 415 pi² Unité 401 : 10 327 pi² Unité 501 : 10 409 pi² Unité 601 : 10 321 pi² Unité 701 : 10 324 pi² Unité 801 : 10 325 pi² Unité 901 : 10 325 pi² Unité 1001 : 10 293 pi² Unité 1101 : 5 640 pi² Unité 1102 : 4 679 pi² Unité 1201 : 7 446 pi² Unité G01 : 7 642 pi² Unité H01 : 6 781 pi² C'est une occasion rare de sécuriser une présence dans tout le bâtiment ou plusieurs étages contigus dans l'une des propriétés de bureaux les plus prestigieuses et stratégiquement situées du centre-ville de Halifax. Contact : Rob Schelleman, Directeur général commercial 902-496-0928 | rob@universalgroup.ca
- Entièrement construit comme Bureau de services professionnels
- En face de l'Assemblée législative de la Nouvelle-Écosse
- Hall d'entrée et espaces communs rénovés
- Climatisation dédiée aux niveaux 12 et Hollis
- Convient pour 12 à 38 personnes
- Verre bronze solaire et revêtement en aluminium
- Systèmes de chauffage et de refroidissement périmétriques
- Trois ascenseurs pour passagers + accès accessible
L'unité 1201 offre environ 7 446 pi² d'espace de bureau efficace dans une tour de bureaux emblématique de 12 étages, en face de l'Assemblée législative de la Nouvelle-Écosse, au centre-ville de Halifax. Dotée d'un plan d'étage efficace avec chauffage et climatisation périmétriques, cette suite bénéficie d'unités de radiation murales et d'un accès à trois ascenseurs pour passagers desservant jusqu'au 11e étage. Les locataires profitent d'une présence extérieure moderne, d'un hall rénové et d'espaces communs, ainsi que de vues imprenables sur le port et la ligne d'horizon de la ville. Joseph Howe offre environ 125 356 pi², ce qui le rend adapté aux entreprises recherchant prestige, commodité et présence centrale au centre-ville. L'emplacement offre une proximité immédiate avec des restaurants, des boutiques, des attractions culturelles et le pittoresque front de mer. Unités disponibles : Unité 201 : 10 410 pi² Unité 301 : 10 415 pi² Unité 401 : 10 327 pi² Unité 501 : 10 409 pi² Unité 601 : 10 321 pi² Unité 701 : 10 324 pi² Unité 801 : 10 325 pi² Unité 901 : 10 325 pi² Unité 1001 : 10 293 pi² Unité 1101 : 5 640 pi² Unité 1102 : 4 679 pi² Unité 1201 : 7 446 pi² Unité G01 : 7 642 pi² Unité H01 : 6 781 pi² C'est une occasion rare de sécuriser une présence dans tout le bâtiment ou plusieurs étages contigus dans l'une des propriétés de bureaux les plus prestigieuses et stratégiquement situées du centre-ville de Halifax. Contact : Rob Schelleman, Directeur général commercial 902-496-0928 | rob@universalgroup.ca
- Entièrement construit comme Bureau de services financiers
- Convient pour 19 à 60 personnes
- Verre bronze solaire et revêtement en aluminium
- Systèmes de chauffage et de refroidissement périmétriques
- Trois ascenseurs pour passagers + accès accessible
- Disposition du plan d’étage ouverte
- En face de l'Assemblée législative de la Nouvelle-Écosse
- Hall d'entrée et espaces communs rénovés
- Climatisation dédiée aux niveaux 12 et Hollis
| Espace | Taille | Terme | Taux de location | Utilisation de l’espace | Aménagement | Disponible |
| Niveau inférieur, ste H01 | 6 781 pi² | Négociable | Sur demande Sur demande Sur demande Sur demande | Bureau | - | 2026-07-01 |
| 1er étage, ste G01 | 7 642 pi² | Négociable | Sur demande Sur demande Sur demande Sur demande | Bureau | construction complète | 2026-07-01 |
| 2e étage, ste 201 | 10 410 pi² | Négociable | Sur demande Sur demande Sur demande Sur demande | Bureau | construction complète | 2026-07-01 |
| 3e étage, ste 301 | 10 415 pi² | Négociable | Sur demande Sur demande Sur demande Sur demande | Bureau | construction complète | 2026-07-01 |
| 4e étage, ste 401 | 10 327 pi² | Négociable | Sur demande Sur demande Sur demande Sur demande | Bureau | construction complète | 2026-07-01 |
| 5e étage, ste 501 | 10 409 pi² | Négociable | Sur demande Sur demande Sur demande Sur demande | Bureau | construction complète | 2026-07-01 |
| 6e étage, ste 601 | 10 321 pi² | Négociable | Sur demande Sur demande Sur demande Sur demande | Bureau | construction complète | 2026-07-01 |
| 7e étage, ste 701 | 10 324 pi² | Négociable | Sur demande Sur demande Sur demande Sur demande | Bureau | construction complète | 2026-07-01 |
| 8e étage, ste 801 | 10 325 pi² | Négociable | Sur demande Sur demande Sur demande Sur demande | Bureau | construction complète | 2026-07-01 |
| 9e étage, ste 901 | 10 325 pi² | Négociable | Sur demande Sur demande Sur demande Sur demande | Bureau | construction complète | 2026-07-01 |
| 10e étage, ste 1001 | 10 293 pi² | Négociable | Sur demande Sur demande Sur demande Sur demande | Bureau | construction complète | 2026-07-01 |
| 11e étage, ste 1101 | 5 640 pi² | Négociable | Sur demande Sur demande Sur demande Sur demande | Bureau | construction complète | 2026-07-01 |
| 11e étage, ste 1102 | 4 679 pi² | Négociable | Sur demande Sur demande Sur demande Sur demande | Bureau | construction complète | 2026-07-01 |
| 12e étage, ste 1201 | 7 446 pi² | Négociable | Sur demande Sur demande Sur demande Sur demande | Bureau | construction complète | 2026-07-01 |
Niveau inférieur, ste H01
| Taille |
| 6 781 pi² |
| Terme |
| Négociable |
| Taux de location |
| Sur demande Sur demande Sur demande Sur demande |
| Utilisation de l’espace |
| Bureau |
| Aménagement |
| - |
| Disponible |
| 2026-07-01 |
1er étage, ste G01
| Taille |
| 7 642 pi² |
| Terme |
| Négociable |
| Taux de location |
| Sur demande Sur demande Sur demande Sur demande |
| Utilisation de l’espace |
| Bureau |
| Aménagement |
| construction complète |
| Disponible |
| 2026-07-01 |
2e étage, ste 201
| Taille |
| 10 410 pi² |
| Terme |
| Négociable |
| Taux de location |
| Sur demande Sur demande Sur demande Sur demande |
| Utilisation de l’espace |
| Bureau |
| Aménagement |
| construction complète |
| Disponible |
| 2026-07-01 |
3e étage, ste 301
| Taille |
| 10 415 pi² |
| Terme |
| Négociable |
| Taux de location |
| Sur demande Sur demande Sur demande Sur demande |
| Utilisation de l’espace |
| Bureau |
| Aménagement |
| construction complète |
| Disponible |
| 2026-07-01 |
4e étage, ste 401
| Taille |
| 10 327 pi² |
| Terme |
| Négociable |
| Taux de location |
| Sur demande Sur demande Sur demande Sur demande |
| Utilisation de l’espace |
| Bureau |
| Aménagement |
| construction complète |
| Disponible |
| 2026-07-01 |
5e étage, ste 501
| Taille |
| 10 409 pi² |
| Terme |
| Négociable |
| Taux de location |
| Sur demande Sur demande Sur demande Sur demande |
| Utilisation de l’espace |
| Bureau |
| Aménagement |
| construction complète |
| Disponible |
| 2026-07-01 |
6e étage, ste 601
| Taille |
| 10 321 pi² |
| Terme |
| Négociable |
| Taux de location |
| Sur demande Sur demande Sur demande Sur demande |
| Utilisation de l’espace |
| Bureau |
| Aménagement |
| construction complète |
| Disponible |
| 2026-07-01 |
7e étage, ste 701
| Taille |
| 10 324 pi² |
| Terme |
| Négociable |
| Taux de location |
| Sur demande Sur demande Sur demande Sur demande |
| Utilisation de l’espace |
| Bureau |
| Aménagement |
| construction complète |
| Disponible |
| 2026-07-01 |
8e étage, ste 801
| Taille |
| 10 325 pi² |
| Terme |
| Négociable |
| Taux de location |
| Sur demande Sur demande Sur demande Sur demande |
| Utilisation de l’espace |
| Bureau |
| Aménagement |
| construction complète |
| Disponible |
| 2026-07-01 |
9e étage, ste 901
| Taille |
| 10 325 pi² |
| Terme |
| Négociable |
| Taux de location |
| Sur demande Sur demande Sur demande Sur demande |
| Utilisation de l’espace |
| Bureau |
| Aménagement |
| construction complète |
| Disponible |
| 2026-07-01 |
10e étage, ste 1001
| Taille |
| 10 293 pi² |
| Terme |
| Négociable |
| Taux de location |
| Sur demande Sur demande Sur demande Sur demande |
| Utilisation de l’espace |
| Bureau |
| Aménagement |
| construction complète |
| Disponible |
| 2026-07-01 |
11e étage, ste 1101
| Taille |
| 5 640 pi² |
| Terme |
| Négociable |
| Taux de location |
| Sur demande Sur demande Sur demande Sur demande |
| Utilisation de l’espace |
| Bureau |
| Aménagement |
| construction complète |
| Disponible |
| 2026-07-01 |
11e étage, ste 1102
| Taille |
| 4 679 pi² |
| Terme |
| Négociable |
| Taux de location |
| Sur demande Sur demande Sur demande Sur demande |
| Utilisation de l’espace |
| Bureau |
| Aménagement |
| construction complète |
| Disponible |
| 2026-07-01 |
12e étage, ste 1201
| Taille |
| 7 446 pi² |
| Terme |
| Négociable |
| Taux de location |
| Sur demande Sur demande Sur demande Sur demande |
| Utilisation de l’espace |
| Bureau |
| Aménagement |
| construction complète |
| Disponible |
| 2026-07-01 |
Niveau inférieur, ste H01
| Taille | 6 781 pi² |
| Terme | Négociable |
| Taux de location | Sur demande |
| Utilisation de l’espace | Bureau |
| Aménagement | - |
| Disponible | 2026-07-01 |
L'unité H01 offre environ 6 781 pi² d'espace de bureau efficace dans une tour de bureaux emblématique de 12 étages, en face de l'Assemblée législative de la Nouvelle-Écosse, au centre-ville de Halifax. Dotée d'un plan d'étage efficace avec chauffage et climatisation périmétriques, cette suite bénéficie d'unités de radiation murales et d'un accès à trois ascenseurs pour passagers desservant jusqu'au 11e étage. Les locataires profitent d'une présence extérieure moderne, d'un hall rénové et d'espaces communs, ainsi que de vues imprenables sur le port et la ligne d'horizon de la ville. Joseph Howe offre environ 125 356 pi², ce qui le rend adapté aux entreprises recherchant prestige, commodité et présence centrale au centre-ville. L'emplacement offre une proximité immédiate avec des restaurants, des boutiques, des attractions culturelles et le pittoresque front de mer. Unités disponibles : Unité 201 : 10 410 pi² Unité 301 : 10 415 pi² Unité 401 : 10 327 pi² Unité 501 : 10 409 pi² Unité 601 : 10 321 pi² Unité 701 : 10 324 pi² Unité 801 : 10 325 pi² Unité 901 : 10 325 pi² Unité 1001 : 10 293 pi² Unité 1101 : 5 640 pi² Unité 1102 : 4 679 pi² Unité 1201 : 7 446 pi² Unité G01 : 7 642 pi² Unité H01 : 6 781 pi² C'est une occasion rare de sécuriser une présence dans tout le bâtiment ou plusieurs étages contigus dans l'une des propriétés de bureaux les plus prestigieuses et stratégiquement situées du centre-ville de Halifax. Contact : Rob Schelleman, Directeur général commercial 902-496-0928 | rob@universalgroup.ca
- Convient pour 17 à 55 personnes
- En face de l'Assemblée législative de la Nouvelle-Écosse
- Verre bronze solaire et revêtement en aluminium
- Hall d'entrée et espaces communs rénovés
- Systèmes de chauffage et de refroidissement périmétriques
- Climatisation dédiée aux niveaux 12 et Hollis
- Trois ascenseurs pour passagers + accès accessible
1er étage, ste G01
| Taille | 7 642 pi² |
| Terme | Négociable |
| Taux de location | Sur demande |
| Utilisation de l’espace | Bureau |
| Aménagement | construction complète |
| Disponible | 2026-07-01 |
L'unité G01 offre environ 7 642 pi² d'espace de bureau efficace dans une tour de bureaux emblématique de 12 étages, en face de l'Assemblée législative de la Nouvelle-Écosse, au centre-ville de Halifax. Dotée d'un plan d'étage efficace avec chauffage et climatisation périmétriques, cette suite bénéficie d'unités de radiation murales et d'un accès à trois ascenseurs pour passagers desservant jusqu'au 11e étage. Les locataires profitent d'une présence extérieure moderne, d'un hall d'entrée et d'espaces communs rénovés, ainsi que de vues imprenables sur le port et la ligne d'horizon de la ville. Joseph Howe offre environ 125 356 pi², ce qui le rend adapté aux entreprises recherchant prestige, commodité et présence centrale au centre-ville. L'emplacement offre une proximité immédiate avec des restaurants, des magasins, des attractions culturelles et le pittoresque front de mer. Unités disponibles : Unité 201 : 10 410 pi² Unité 301 : 10 415 pi² Unité 401 : 10 327 pi² Unité 501 : 10 409 pi² Unité 601 : 10 321 pi² Unité 701 : 10 324 pi² Unité 801 : 10 325 pi² Unité 901 : 10 325 pi² Unité 1001 : 10 293 pi² Unité 1101 : 5 640 pi² Unité 1102 : 4 679 pi² Unité 1201 : 7 446 pi² Unité G01 : 7 642 pi² Unité H01 : 6 781 pi² C'est une occasion rare de sécuriser une présence dans tout le bâtiment ou plusieurs étages contigus dans l'une des propriétés de bureaux les plus prestigieuses et stratégiquement situées du centre-ville de Halifax. Contact : Rob Schelleman, Directeur général commercial 902-496-0928 | rob@universalgroup.ca
- Entièrement construit comme Bureau de services professionnels
- Disposition du plan d’étage ouverte
- Convient pour 20 à 62 personnes
- En face de l'Assemblée législative de la Nouvelle-Écosse
- Verre bronze solaire et revêtement en aluminium
- Hall d'entrée et espaces communs rénovés
- Systèmes de chauffage et de refroidissement périmétriques
- Climatisation dédiée aux niveaux 12 et Hollis
- Trois ascenseurs pour passagers + accès accessible
2e étage, ste 201
| Taille | 10 410 pi² |
| Terme | Négociable |
| Taux de location | Sur demande |
| Utilisation de l’espace | Bureau |
| Aménagement | construction complète |
| Disponible | 2026-07-01 |
L'unité 201 offre environ 10 410 pi² d'espace de bureau efficace dans une tour de bureaux emblématique de 12 étages, en face de l'Assemblée législative de la Nouvelle-Écosse, au centre-ville de Halifax. Dotée d'un plan d'étage efficace avec chauffage et climatisation périmétriques, cette suite bénéficie d'unités de radiation murales et d'un accès à trois ascenseurs pour passagers desservant jusqu'au 11e étage. Les locataires profitent d'une présence extérieure moderne, d'un hall et d'espaces communs rénovés, ainsi que de vues imprenables sur le port et la ligne d'horizon de la ville. Joseph Howe offre environ 125 356 pi², ce qui le rend adapté aux entreprises recherchant prestige, commodité et présence centrale au centre-ville. L'emplacement offre une proximité immédiate avec des restaurants, des boutiques, des attractions culturelles et le pittoresque front de mer. Unités disponibles : Unité 201 : 10 410 pi² Unité 301 : 10 415 pi² Unité 401 : 10 327 pi² Unité 501 : 10 409 pi² Unité 601 : 10 321 pi² Unité 701 : 10 324 pi² Unité 801 : 10 325 pi² Unité 901 : 10 325 pi² Unité 1001 : 10 293 pi² Unité 1101 : 5 640 pi² Unité 1102 : 4 679 pi² Unité 1201 : 7 446 pi² Unité G01 : 7 642 pi² Unité H01 : 6 781 pi² C'est une occasion rare de sécuriser une présence dans tout le bâtiment ou plusieurs étages contigus dans l'une des propriétés de bureaux les plus prestigieuses et stratégiquement situées du centre-ville de Halifax. Contact : Rob Schelleman, Directeur général commercial 902-496-0928 | rob@universalgroup.ca
- Entièrement construit comme Bureau de services professionnels
- Disposition du plan d’étage ouverte
- Convient pour 27 à 84 personnes
- En face de l'Assemblée législative de la Nouvelle-Écosse
- Verre bronze solaire et revêtement en aluminium
- Hall d'entrée et espaces communs rénovés
- Systèmes de chauffage et de refroidissement périmétriques
- Climatisation dédiée aux niveaux 12 et Hollis
- Trois ascenseurs pour passagers + accès accessible
3e étage, ste 301
| Taille | 10 415 pi² |
| Terme | Négociable |
| Taux de location | Sur demande |
| Utilisation de l’espace | Bureau |
| Aménagement | construction complète |
| Disponible | 2026-07-01 |
L'unité 301 offre environ 10 415 pi² d'espace de bureau efficace dans une tour de bureaux emblématique de 12 étages, en face de l'Assemblée législative de la Nouvelle-Écosse, au centre-ville de Halifax. Dotée d'un plan d'étage efficace avec chauffage et climatisation périmétriques, cette suite bénéficie d'unités de radiation murales et d'un accès à trois ascenseurs pour passagers desservant jusqu'au 11e étage. Les locataires profitent d'une présence extérieure moderne, d'un hall rénové et d'espaces communs, ainsi que de vues imprenables sur le port et la ligne d'horizon de la ville. Joseph Howe offre environ 125 356 pi², ce qui le rend adapté aux entreprises recherchant prestige, commodité et présence centrale au centre-ville. L'emplacement offre une proximité immédiate avec des restaurants, des boutiques, des attractions culturelles et le pittoresque front de mer. Unités disponibles : Unité 201 : 10 410 pi² Unité 301 : 10 415 pi² Unité 401 : 10 327 pi² Unité 501 : 10 409 pi² Unité 601 : 10 321 pi² Unité 701 : 10 324 pi² Unité 801 : 10 325 pi² Unité 901 : 10 325 pi² Unité 1001 : 10 293 pi² Unité 1101 : 5 640 pi² Unité 1102 : 4 679 pi² Unité 1201 : 7 446 pi² Unité G01 : 7 642 pi² Unité H01 : 6 781 pi² C'est une occasion rare de sécuriser une présence dans tout le bâtiment ou plusieurs étages contigus dans l'une des propriétés de bureaux les plus prestigieuses et stratégiquement situées du centre-ville de Halifax. Contact : Rob Schelleman, Directeur général commercial 902-496-0928 | rob@universalgroup.ca
- Entièrement construit comme Bureau de services professionnels
- Disposition du plan d’étage ouverte
- Convient pour 27 à 84 personnes
- En face de l'Assemblée législative de la Nouvelle-Écosse
- Verre bronze solaire et revêtement en aluminium
- Hall d'entrée et espaces communs rénovés
- Systèmes de chauffage et de climatisation périmétriques
- Climatisation dédiée aux niveaux 12 et Hollis
- Trois ascenseurs pour passagers + accès accessible
4e étage, ste 401
| Taille | 10 327 pi² |
| Terme | Négociable |
| Taux de location | Sur demande |
| Utilisation de l’espace | Bureau |
| Aménagement | construction complète |
| Disponible | 2026-07-01 |
L'unité 401 offre environ 10 327 pieds carrés d'espace de bureau efficace dans une tour de bureaux emblématique de 12 étages, en face de l'Assemblée législative de la Nouvelle-Écosse au centre-ville de Halifax. Avec un plan d'étage efficace doté de chauffage et de climatisation périmétriques, cette suite bénéficie d'unités de radiation murales et d'un accès à trois ascenseurs pour passagers desservant jusqu'au 11e étage. Les locataires profitent d'une présence extérieure moderne, d'un hall rénové et d'espaces communs, ainsi que de vues magnifiques sur le port et la ligne d'horizon de la ville. Joseph Howe offre environ 125 356 pieds carrés, ce qui le rend adapté aux entreprises recherchant prestige, commodité et une présence centrale au centre-ville. L'emplacement offre une proximité immédiate avec des restaurants, des boutiques, des attractions culturelles et le pittoresque front de mer. Unités disponibles : Unité 201 : 10 410 pieds carrés Unité 301 : 10 415 pieds carrés Unité 401 : 10 327 pieds carrés Unité 501 : 10 409 pieds carrés Unité 601 : 10 321 pieds carrés Unité 701 : 10 324 pieds carrés Unité 801 : 10 325 pieds carrés Unité 901 : 10 325 pieds carrés Unité 1001 : 10 293 pieds carrés Unité 1101 : 5 640 pieds carrés Unité 1102 : 4 679 pieds carrés Unité 1201 : 7 446 pieds carrés Unité G01 : 7 642 pieds carrés Unité H01 : 6 781 pieds carrés C'est une occasion rare de sécuriser une présence dans tout le bâtiment ou plusieurs étages contigus dans l'une des propriétés de bureaux les plus prestigieuses et stratégiquement situées du centre-ville de Halifax. Contact : Rob Schelleman, Directeur général commercial 902-496-0928 | rob@universalgroup.ca
- Entièrement construit comme Bureau de services professionnels
- Disposition du plan d’étage ouverte
- Convient pour 26 à 83 personnes
- Espace en excellent état
- En face de l'Assemblée législative de la Nouvelle-Écosse
- Verre bronze solaire et revêtement en aluminium
- Hall d'entrée et espaces communs rénovés
- Systèmes de chauffage et de refroidissement périmétriques
- Climatisation dédiée aux niveaux 12 et Hollis
- Trois ascenseurs pour passagers + accès accessible
5e étage, ste 501
| Taille | 10 409 pi² |
| Terme | Négociable |
| Taux de location | Sur demande |
| Utilisation de l’espace | Bureau |
| Aménagement | construction complète |
| Disponible | 2026-07-01 |
L'unité 501 offre environ 10 409 pi² d'espace de bureau efficace dans une tour de bureaux emblématique de 12 étages, en face de l'Assemblée législative de la Nouvelle-Écosse, au centre-ville de Halifax. Dotée d'un plan d'étage efficace avec chauffage et climatisation périmétriques, cette suite bénéficie d'unités de radiation murales et d'un accès à trois ascenseurs pour passagers desservant jusqu'au 11e étage. Les locataires profitent d'une présence extérieure moderne, d'un hall d'entrée et d'espaces communs rénovés, ainsi que de vues imprenables sur le port et la ligne d'horizon de la ville. Joseph Howe offre environ 125 356 pi², ce qui le rend adapté aux entreprises recherchant prestige, commodité et présence centrale au centre-ville. L'emplacement offre une proximité immédiate avec des restaurants, des boutiques, des attractions culturelles et le pittoresque front de mer. Unités disponibles : Unité 201 : 10 410 pi² Unité 301 : 10 415 pi² Unité 401 : 10 327 pi² Unité 501 : 10 409 pi² Unité 601 : 10 321 pi² Unité 701 : 10 324 pi² Unité 801 : 10 325 pi² Unité 901 : 10 325 pi² Unité 1001 : 10 293 pi² Unité 1101 : 5 640 pi² Unité 1102 : 4 679 pi² Unité 1201 : 7 446 pi² Unité G01 : 7 642 pi² Unité H01 : 6 781 pi² C'est une occasion rare de sécuriser une présence dans tout le bâtiment ou plusieurs étages contigus dans l'une des propriétés de bureaux les plus prestigieuses et stratégiquement situées du centre-ville de Halifax. Contact : Rob Schelleman, Directeur général commercial 902-496-0928 | rob@universalgroup.ca
- Entièrement construit comme Bureau de services professionnels
- Convient pour 27 à 84 personnes
- En face de l'Assemblée législative de la Nouvelle-Écosse
- Verre bronze solaire et revêtement en aluminium
- Hall d'entrée et espaces communs rénovés
- Systèmes de chauffage et de refroidissement périmétriques
- Climatisation dédiée aux niveaux 12 et Hollis
- Trois ascenseurs pour passagers + accès accessible
6e étage, ste 601
| Taille | 10 321 pi² |
| Terme | Négociable |
| Taux de location | Sur demande |
| Utilisation de l’espace | Bureau |
| Aménagement | construction complète |
| Disponible | 2026-07-01 |
L'unité 601 offre environ 10 321 pieds carrés d'espace de bureau efficace dans une tour de bureaux emblématique de 12 étages, en face de l'Assemblée législative de la Nouvelle-Écosse, au centre-ville de Halifax. Dotée d'un plan d'étage efficace avec chauffage et climatisation périmétriques, cette suite bénéficie d'unités de radiation murales et d'un accès à trois ascenseurs pour passagers desservant jusqu'au 11e étage. Les locataires profitent d'une présence extérieure moderne, d'un hall rénové et d'espaces communs, ainsi que de vues imprenables sur le port et la ligne d'horizon de la ville. Joseph Howe offre environ 125 356 pieds carrés, ce qui le rend adapté aux entreprises recherchant prestige, commodité et présence centrale au centre-ville. L'emplacement offre une proximité immédiate avec des restaurants, des magasins, des attractions culturelles et le pittoresque front de mer. Unités disponibles : Unité 201 : 10 410 pi² Unité 301 : 10 415 pi² Unité 401 : 10 327 pi² Unité 501 : 10 409 pi² Unité 601 : 10 321 pi² Unité 701 : 10 324 pi² Unité 801 : 10 325 pi² Unité 901 : 10 325 pi² Unité 1001 : 10 293 pi² Unité 1101 : 5 640 pi² Unité 1102 : 4 679 pi² Unité 1201 : 7 446 pi² Unité G01 : 7 642 pi² Unité H01 : 6 781 pi² C'est une occasion rare de sécuriser une présence dans tout le bâtiment ou plusieurs étages contigus dans l'une des propriétés de bureaux les plus prestigieuses et stratégiquement situées du centre-ville de Halifax. Contact : Rob Schelleman, Directeur général commercial 902-496-0928 | rob@universalgroup.ca
- Entièrement construit comme Bureau de services professionnels
- Disposition du plan d’étage ouverte
- Convient pour 26 à 83 personnes
- En face de l'Assemblée législative de la Nouvelle-Écosse
- Verre bronze solaire et revêtement en aluminium
- Hall d'entrée et espaces communs rénovés
- Systèmes de chauffage et de refroidissement périmétriques
- Climatisation dédiée aux niveaux 12 et Hollis
- Trois ascenseurs pour passagers + accès accessible
7e étage, ste 701
| Taille | 10 324 pi² |
| Terme | Négociable |
| Taux de location | Sur demande |
| Utilisation de l’espace | Bureau |
| Aménagement | construction complète |
| Disponible | 2026-07-01 |
L'unité 701 offre environ 10 324 pi² d'espace de bureau efficace dans une tour de bureaux emblématique de 12 étages, en face de l'Assemblée législative de la Nouvelle-Écosse, au centre-ville de Halifax. Dotée d'un plan d'étage efficace avec chauffage et climatisation périmétriques, cette suite bénéficie d'unités de radiation murales et d'un accès à trois ascenseurs pour passagers desservant jusqu'au 11e étage. Les locataires profitent d'une présence extérieure moderne, d'un hall d'entrée et d'espaces communs rénovés, ainsi que de vues imprenables sur le port et la ligne d'horizon de la ville. Joseph Howe offre environ 125 356 pi², ce qui le rend adapté aux entreprises recherchant prestige, commodité et présence centrale au centre-ville. L'emplacement offre une proximité immédiate avec des restaurants, des magasins, des attractions culturelles et le pittoresque front de mer. Unités disponibles : Unité 201 : 10 410 pi² Unité 301 : 10 415 pi² Unité 401 : 10 327 pi² Unité 501 : 10 409 pi² Unité 601 : 10 321 pi² Unité 701 : 10 324 pi² Unité 801 : 10 325 pi² Unité 901 : 10 325 pi² Unité 1001 : 10 293 pi² Unité 1101 : 5 640 pi² Unité 1102 : 4 679 pi² Unité 1201 : 7 446 pi² Unité G01 : 7 642 pi² Unité H01 : 6 781 pi² C'est une occasion rare de sécuriser une présence dans tout le bâtiment ou plusieurs étages contigus dans l'une des propriétés de bureaux les plus prestigieuses et stratégiquement situées du centre-ville de Halifax. Contact : Rob Schelleman, Directeur général commercial 902-496-0928 | rob@universalgroup.ca
- Entièrement construit comme Bureau de services financiers
- Disposition du plan d’étage ouverte
- Convient pour 26 à 83 personnes
- En face de l'Assemblée législative de la Nouvelle-Écosse
- Verre bronze solaire et revêtement en aluminium
- Hall d'entrée et espaces communs rénovés
- Systèmes de chauffage et de refroidissement périmétriques
- Climatisation dédiée aux niveaux 12 et Hollis
- Trois ascenseurs pour passagers + accès accessible
8e étage, ste 801
| Taille | 10 325 pi² |
| Terme | Négociable |
| Taux de location | Sur demande |
| Utilisation de l’espace | Bureau |
| Aménagement | construction complète |
| Disponible | 2026-07-01 |
L'unité 801 offre environ 10 325 pi² d'espace de bureau efficace dans une tour de bureaux emblématique de 12 étages, en face de l'Assemblée législative de la Nouvelle-Écosse, au centre-ville de Halifax. Dotée d'un plan d'étage efficace avec chauffage et climatisation périmétriques, cette suite bénéficie d'unités de radiation murales et d'un accès à trois ascenseurs pour passagers desservant jusqu'au 11e étage. Les locataires profitent d'une présence extérieure moderne, d'un hall rénové et d'espaces communs, ainsi que de vues imprenables sur le port et la ligne d'horizon de la ville. Joseph Howe offre environ 125 356 pi², ce qui le rend adapté aux entreprises recherchant prestige, commodité et présence centrale au centre-ville. L'emplacement offre une proximité immédiate avec des restaurants, des boutiques, des attractions culturelles et le pittoresque front de mer. Unités disponibles : Unité 201 : 10 410 pi² Unité 301 : 10 415 pi² Unité 401 : 10 327 pi² Unité 501 : 10 409 pi² Unité 601 : 10 321 pi² Unité 701 : 10 324 pi² Unité 801 : 10 325 pi² Unité 901 : 10 325 pi² Unité 1001 : 10 293 pi² Unité 1101 : 5 640 pi² Unité 1102 : 4 679 pi² Unité 1201 : 7 446 pi² Unité G01 : 7 642 pi² Unité H01 : 6 781 pi² C'est une occasion rare de sécuriser une présence dans tout le bâtiment ou plusieurs étages contigus dans l'une des propriétés de bureaux les plus prestigieuses et stratégiquement situées du centre-ville de Halifax. Contact : Rob Schelleman, Directeur général commercial 902-496-0928 | rob@universalgroup.ca
- Entièrement construit comme Bureau de services professionnels
- Disposition du plan d’étage ouverte
- Convient pour 26 à 83 personnes
- En face de l'Assemblée législative de la Nouvelle-Écosse
- Verre bronze solaire et revêtement en aluminium
- Hall d'entrée et espaces communs rénovés
- Systèmes de chauffage et de refroidissement périmétriques
- Climatisation dédiée aux niveaux 12 et Hollis
- Trois ascenseurs pour passagers + accès accessible
9e étage, ste 901
| Taille | 10 325 pi² |
| Terme | Négociable |
| Taux de location | Sur demande |
| Utilisation de l’espace | Bureau |
| Aménagement | construction complète |
| Disponible | 2026-07-01 |
L'unité 901 offre environ 10 325 pieds carrés d'espace de bureau efficace dans une tour de bureaux emblématique de 12 étages, en face de l'Assemblée législative de la Nouvelle-Écosse au centre-ville de Halifax. Avec un plan d'étage efficace doté de chauffage et de climatisation périmétriques, cette suite bénéficie d'unités de radiation murales et de l'accès à trois ascenseurs pour passagers desservant jusqu'au 11e étage. Les locataires profitent d'une présence extérieure moderne, d'un hall rénové et d'espaces communs, ainsi que de vues magnifiques sur le port et la ligne d'horizon de la ville. Joseph Howe offre environ 125 356 pieds carrés, ce qui le rend adapté aux entreprises recherchant prestige, commodité et une présence centrale au centre-ville. L'emplacement offre une proximité immédiate avec des restaurants, des magasins, des attractions culturelles et le pittoresque front de mer. Unités disponibles : Unité 201 : 10 410 pieds carrés Unité 301 : 10 415 pieds carrés Unité 401 : 10 327 pieds carrés Unité 501 : 10 409 pieds carrés Unité 601 : 10 321 pieds carrés Unité 701 : 10 324 pieds carrés Unité 801 : 10 325 pieds carrés Unité 901 : 10 325 pieds carrés Unité 1001 : 10 293 pieds carrés Unité 1101 : 5 640 pieds carrés Unité 1102 : 4 679 pieds carrés Unité 1201 : 7 446 pieds carrés Unité G01 : 7 642 pieds carrés Unité H01 : 6 781 pieds carrés C'est une occasion rare de sécuriser une présence dans tout le bâtiment ou plusieurs étages contigus dans l'une des propriétés de bureaux les plus prestigieuses et stratégiquement positionnées du centre-ville de Halifax. Contact : Rob Schelleman, Directeur général commercial 902-496-0928 | rob@universalgroup.ca
- Entièrement construit comme Bureau de services professionnels
- Disposition du plan d’étage ouverte
- Convient pour 26 à 83 personnes
- En face de l'Assemblée législative de la Nouvelle-Écosse
- Verre bronze solaire et revêtement en aluminium
- Hall d'entrée et espaces communs rénovés
- Systèmes de chauffage et de refroidissement périmétriques
- Climatisation dédiée aux niveaux 12 et Hollis
- Trois ascenseurs pour passagers + accès accessible
10e étage, ste 1001
| Taille | 10 293 pi² |
| Terme | Négociable |
| Taux de location | Sur demande |
| Utilisation de l’espace | Bureau |
| Aménagement | construction complète |
| Disponible | 2026-07-01 |
L'unité 1001 offre environ 10 293 pieds carrés d'espace de bureau efficace dans une tour de bureaux emblématique de 12 étages, en face de l'Assemblée législative de la Nouvelle-Écosse au centre-ville de Halifax. Dotée d'un plan d'étage efficace avec chauffage et climatisation périmétriques, cette suite bénéficie d'unités de radiation murales et de l'accès à trois ascenseurs pour passagers desservant jusqu'au 11e étage. Les locataires profitent d'une présence extérieure moderne, d'un hall rénové et d'espaces communs, ainsi que de vues magnifiques sur le port et la ligne d'horizon de la ville. Joseph Howe offre environ 125 356 pieds carrés, ce qui le rend adapté aux entreprises recherchant prestige, commodité et présence centrale au centre-ville. L'emplacement offre une proximité immédiate avec des restaurants, des boutiques, des attractions culturelles et le pittoresque front de mer. Unités disponibles : Unité 201 : 10 410 pieds carrés Unité 301 : 10 415 pieds carrés Unité 401 : 10 327 pieds carrés Unité 501 : 10 409 pieds carrés Unité 601 : 10 321 pieds carrés Unité 701 : 10 324 pieds carrés Unité 801 : 10 325 pieds carrés Unité 901 : 10 325 pieds carrés Unité 1001 : 10 293 pieds carrés Unité 1101 : 5 640 pieds carrés Unité 1102 : 4 679 pieds carrés Unité 1201 : 7 446 pieds carrés Unité G01 : 7 642 pieds carrés Unité H01 : 6 781 pieds carrés C'est une occasion rare de sécuriser une présence dans tout le bâtiment ou plusieurs étages contigus dans l'une des propriétés de bureaux les plus prestigieuses et stratégiquement positionnées du centre-ville de Halifax. Contact : Rob Schelleman, Directeur Général Commercial 902-496-0928 | rob@universalgroup.ca
- Entièrement construit comme Bureau de services professionnels
- Disposition du plan d’étage ouverte
- Convient pour 26 à 83 personnes
- Espace en excellent état
- En face de l'Assemblée législative de la Nouvelle-Écosse
- Verre bronze solaire et revêtement en aluminium
- Hall d'entrée et espaces communs rénovés
- Systèmes de chauffage et de refroidissement périmétriques
- Climatisation dédiée aux niveaux 12 et Hollis
- Trois ascenseurs pour passagers + accès accessible
11e étage, ste 1101
| Taille | 5 640 pi² |
| Terme | Négociable |
| Taux de location | Sur demande |
| Utilisation de l’espace | Bureau |
| Aménagement | construction complète |
| Disponible | 2026-07-01 |
L'unité 1101 offre environ 5 640 pieds carrés d'espace de bureau efficace dans une tour de bureaux emblématique de 12 étages, en face de l'Assemblée législative de la Nouvelle-Écosse au centre-ville de Halifax. Avec un plan d'étage efficace comprenant chauffage et climatisation périmétriques, cette suite bénéficie d'unités de radiation murales et de l'accès à trois ascenseurs pour passagers desservant jusqu'au 11e étage. Les locataires profitent d'une présence extérieure moderne, d'un hall rénové et d'espaces communs, ainsi que de vues magnifiques sur le port et la ligne d'horizon de la ville. Joseph Howe offre environ 125 356 pieds carrés, ce qui le rend adapté aux entreprises recherchant prestige, commodité et une présence centrale au centre-ville. L'emplacement offre une proximité immédiate avec des restaurants, des magasins, des attractions culturelles et le pittoresque front de mer. Unités disponibles : Unité 201 : 10 410 pieds carrés Unité 301 : 10 415 pieds carrés Unité 401 : 10 327 pieds carrés Unité 501 : 10 409 pieds carrés Unité 601 : 10 321 pieds carrés Unité 701 : 10 324 pieds carrés Unité 801 : 10 325 pieds carrés Unité 901 : 10 325 pieds carrés Unité 1001 : 10 293 pieds carrés Unité 1101 : 5 640 pieds carrés Unité 1102 : 4 679 pieds carrés Unité 1201 : 7 446 pieds carrés Unité G01 : 7 642 pieds carrés Unité H01 : 6 781 pieds carrés C'est une occasion rare de sécuriser une présence dans tout le bâtiment ou plusieurs étages contigus dans l'une des propriétés de bureaux les plus prestigieuses et stratégiquement positionnées du centre-ville de Halifax. Contact : Rob Schelleman, Directeur Général Commercial 902-496-0928 | rob@universalgroup.ca
- Entièrement construit comme Bureau de services professionnels
- Convient pour 15 à 46 personnes
- Espace en excellent état
- En face de l'Assemblée législative de la Nouvelle-Écosse
- Verre bronze solaire et revêtement en aluminium
- Hall d'entrée et espaces communs rénovés
- Systèmes de chauffage et de refroidissement périmétriques
- Climatisation dédiée aux niveaux 12 et Hollis
- Trois ascenseurs pour passagers + accès accessible
11e étage, ste 1102
| Taille | 4 679 pi² |
| Terme | Négociable |
| Taux de location | Sur demande |
| Utilisation de l’espace | Bureau |
| Aménagement | construction complète |
| Disponible | 2026-07-01 |
L'unité 1102 offre environ 4 679 pi² d'espace de bureau efficace dans une tour de bureaux emblématique de 12 étages, en face de l'Assemblée législative de la Nouvelle-Écosse, au centre-ville de Halifax. Dotée d'un plan d'étage efficace avec chauffage et climatisation périmétriques, cette suite bénéficie d'unités de radiation murales et d'un accès à trois ascenseurs pour passagers desservant jusqu'au 11e étage. Les locataires profitent d'une présence extérieure moderne, d'un hall rénové et d'espaces communs, ainsi que de vues imprenables sur le port et la ligne d'horizon de la ville. Joseph Howe offre environ 125 356 pi², ce qui le rend adapté aux entreprises recherchant prestige, commodité et présence centrale au centre-ville. L'emplacement offre une proximité immédiate avec des restaurants, des boutiques, des attractions culturelles et le pittoresque front de mer. Unités disponibles : Unité 201 : 10 410 pi² Unité 301 : 10 415 pi² Unité 401 : 10 327 pi² Unité 501 : 10 409 pi² Unité 601 : 10 321 pi² Unité 701 : 10 324 pi² Unité 801 : 10 325 pi² Unité 901 : 10 325 pi² Unité 1001 : 10 293 pi² Unité 1101 : 5 640 pi² Unité 1102 : 4 679 pi² Unité 1201 : 7 446 pi² Unité G01 : 7 642 pi² Unité H01 : 6 781 pi² C'est une occasion rare de sécuriser une présence dans tout le bâtiment ou plusieurs étages contigus dans l'une des propriétés de bureaux les plus prestigieuses et stratégiquement situées du centre-ville de Halifax. Contact : Rob Schelleman, Directeur général commercial 902-496-0928 | rob@universalgroup.ca
- Entièrement construit comme Bureau de services professionnels
- Convient pour 12 à 38 personnes
- En face de l'Assemblée législative de la Nouvelle-Écosse
- Verre bronze solaire et revêtement en aluminium
- Hall d'entrée et espaces communs rénovés
- Systèmes de chauffage et de refroidissement périmétriques
- Climatisation dédiée aux niveaux 12 et Hollis
- Trois ascenseurs pour passagers + accès accessible
12e étage, ste 1201
| Taille | 7 446 pi² |
| Terme | Négociable |
| Taux de location | Sur demande |
| Utilisation de l’espace | Bureau |
| Aménagement | construction complète |
| Disponible | 2026-07-01 |
L'unité 1201 offre environ 7 446 pi² d'espace de bureau efficace dans une tour de bureaux emblématique de 12 étages, en face de l'Assemblée législative de la Nouvelle-Écosse, au centre-ville de Halifax. Dotée d'un plan d'étage efficace avec chauffage et climatisation périmétriques, cette suite bénéficie d'unités de radiation murales et d'un accès à trois ascenseurs pour passagers desservant jusqu'au 11e étage. Les locataires profitent d'une présence extérieure moderne, d'un hall rénové et d'espaces communs, ainsi que de vues imprenables sur le port et la ligne d'horizon de la ville. Joseph Howe offre environ 125 356 pi², ce qui le rend adapté aux entreprises recherchant prestige, commodité et présence centrale au centre-ville. L'emplacement offre une proximité immédiate avec des restaurants, des boutiques, des attractions culturelles et le pittoresque front de mer. Unités disponibles : Unité 201 : 10 410 pi² Unité 301 : 10 415 pi² Unité 401 : 10 327 pi² Unité 501 : 10 409 pi² Unité 601 : 10 321 pi² Unité 701 : 10 324 pi² Unité 801 : 10 325 pi² Unité 901 : 10 325 pi² Unité 1001 : 10 293 pi² Unité 1101 : 5 640 pi² Unité 1102 : 4 679 pi² Unité 1201 : 7 446 pi² Unité G01 : 7 642 pi² Unité H01 : 6 781 pi² C'est une occasion rare de sécuriser une présence dans tout le bâtiment ou plusieurs étages contigus dans l'une des propriétés de bureaux les plus prestigieuses et stratégiquement situées du centre-ville de Halifax. Contact : Rob Schelleman, Directeur général commercial 902-496-0928 | rob@universalgroup.ca
- Entièrement construit comme Bureau de services financiers
- Disposition du plan d’étage ouverte
- Convient pour 19 à 60 personnes
- En face de l'Assemblée législative de la Nouvelle-Écosse
- Verre bronze solaire et revêtement en aluminium
- Hall d'entrée et espaces communs rénovés
- Systèmes de chauffage et de refroidissement périmétriques
- Climatisation dédiée aux niveaux 12 et Hollis
- Trois ascenseurs pour passagers + accès accessible
Aperçu de la propriété
Idéalement situé au centre-ville de Halifax, en face de l'édifice législatif. À proximité immédiate du cœur des affaires et des finances de Halifax et à quelques pas des commerces et des restaurants. Joseph Howe est un immeuble de bureaux moderne de 12 étages avec des vitres teintées en bronze solaire, un revêtement extérieur en aluminium contemporain et un hall d'entrée ainsi que des espaces communs récemment rénovés.
Faits sur la propriété
Présenté par
Joseph Howe | 1690 Hollis St
Hmm, il semble y avoir eu une erreur lors de l’envoi de votre message. Veuillez réessayer.
Merci! Votre message a été envoyé.



























