Votre courriel a été envoyé.
The Thompson 1256 Barrington St 519–26 018 pi² d'espace disponible • Bureau • Halifax, NS B3J 1Y6


Certaines informations ont été traduites automatiquement.
Faits saillants
- Emplacement privilégié au centre-ville d'Halifax le long de la rue Barrington.
- Proximité des bureaux du gouvernement, des transports en commun, des restaurants et des commodités riveraines.
- Immeuble de bureaux principalement professionnel avec activation commerciale au rez-de-chaussée.
- Bâtiment bien connu et bien établi offrant une visibilité et une accessibilité importantes.
Tous les espaces disponibles(5)
Afficher les taux de location en
- Espace
- Taille
- Terme
- Taux de location
- Utilisation de l’espace
- Aménagement
- Disponible
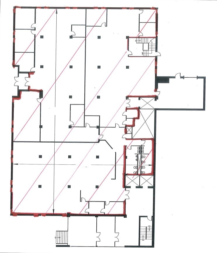
L'unité 100 au Thompson offre environ 12 400 pieds carrés d'espace de bureau spacieux dans un emplacement de choix au centre-ville de Halifax, sur la rue Barrington. C'est une occasion exceptionnelle de sécuriser un espace de bureau substantiel dans un bâtiment bien situé au centre-ville offrant accessibilité, caractère et commodités pratiques. Appelez ou envoyez un courriel à Rob pour une visite et pour en savoir plus sur nos opportunités de location. (902) 830-0062 | leasing@universalgroup.ca
- Entièrement construit comme Bureau de services professionnels
- Solarium avec exposition sud
- Commodité sur place : café ludique avec salle de jeux de société
- Disposition du plan d’étage ouverte
- Espaces de stationnement extérieurs adjacents à l’immeuble
L'unité 202 au The Thompson offre environ 1 655 pieds carrés d'espace de bureau bien aménagé dans un immeuble contemporain de six étages au centre-ville de Halifax. Cette unité est idéale pour les professionnels recherchant un bureau plus petit et efficacement configuré dans un emplacement central et dynamique. C'est une excellente occasion de sécuriser un espace de bureau situé au centre dans un bâtiment prestigieux du centre-ville de Halifax, offrant à la fois commodité et cadre professionnel. Appelez ou envoyez un courriel à Rob pour une visite et pour en savoir plus sur nos opportunités de location. (902) 830-0062 | leasing@universalgroup.ca
- Entièrement construit comme Bureau de services professionnels
- Cuisine dans l’unité
- Espaces de stationnement extérieurs adjacents à l’immeuble
- Disposition du plan d’étage ouverte
- Solarium avec exposition sud
- Commodité sur place : café de jeux de société avec salle de réunion
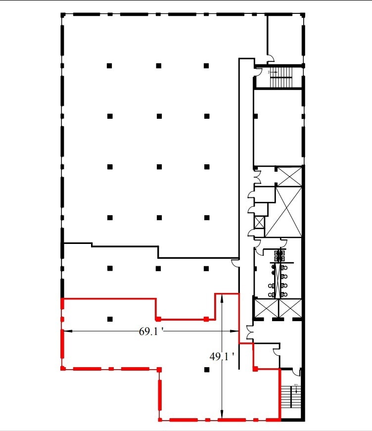
L'unité 203 au The Thompson offre environ 2 989 pieds carrés d'espace de bureau bien aménagé dans un immeuble contemporain de six étages au centre-ville de Halifax. Cette unité est idéale pour les professionnels ou les petites équipes à la recherche d'un bureau plus grand et efficacement configuré dans un emplacement central et dynamique. Le bâtiment présente des accents de granit extérieur et un solarium avec exposition sud, offrant un environnement lumineux et professionnel. Les locataires bénéficient de la proximité de la gare VIA Rail et d'un accès à pied pratique aux quartiers d'affaires, financiers et de divertissement de Halifax. Des espaces de stationnement extérieurs sont disponibles pour le personnel et les visiteurs. Le bâtiment comprend également le Board Room Games Café au sous-sol, offrant une commodité unique pour les locataires et les invités. C'est une excellente occasion de sécuriser un espace de bureau de premier plan au centre-ville de Halifax dans un bâtiment professionnel offrant à la fois accessibilité et commodités distinctives. Appelez ou envoyez un courriel à Rob pour une visite et pour en savoir plus sur nos opportunités de location. (902) 448-0904 | leasing@universalgroup.ca
- Entièrement construit comme Bureau de services professionnels
- 9 bureaux privés
- Salle de bains privée
- Une salle de conférence/réunion
- Salle de bain privée dans l’unité
- Commodité sur place : Café de jeux de société avec salle de réunion
- Disposition du plan d’étage ouverte
- 1 salle de conférence
- 9 bureaux privés
- Cuisine dans l’unité
- Espaces de stationnement extérieurs adjacents à l’immeuble
L'unité 300 au The Thompson offre environ 7 121 pieds carrés d'espace de bureau spacieux dans un immeuble contemporain de six étages au centre-ville de Halifax. Cette unité est idéalement adaptée aux utilisateurs de bureaux professionnels, corporatifs ou orientés vers le travail d'équipe qui recherchent un grand espace de travail flexible dans un emplacement central privilégié. Le bâtiment présente des accents de granit à l'extérieur et un solarium avec exposition sud, créant un environnement lumineux et professionnel. Les locataires bénéficient de la proximité de la gare VIA Rail et d'un accès à pied aux quartiers d'affaires, financiers et de divertissement de Halifax. Des espaces de stationnement extérieurs sont disponibles pour le personnel et les visiteurs. Le bâtiment comprend également le Board Room Games Café au sous-sol, offrant une commodité unique aux locataires et invités. C'est une occasion exceptionnelle de sécuriser un grand espace de bureau central dans l'un des bâtiments les plus accessibles et professionnels du centre-ville de Halifax. Appelez ou envoyez un courriel à Rob pour une visite et pour en savoir plus sur nos opportunités de location. (902) 448-0904 | leasing@universalgroup.ca
- Entièrement construit comme Bureau de services professionnels
- 9 bureaux privés
- Salle de bain privée dans l’unité
- Espaces de stationnement extérieurs adjacents à l’immeuble
- Disposition du plan d’étage ouverte
- 9 bureaux privés
- Solarium avec exposition sud
- Commodité sur place : café de jeux de société avec salle de réunion
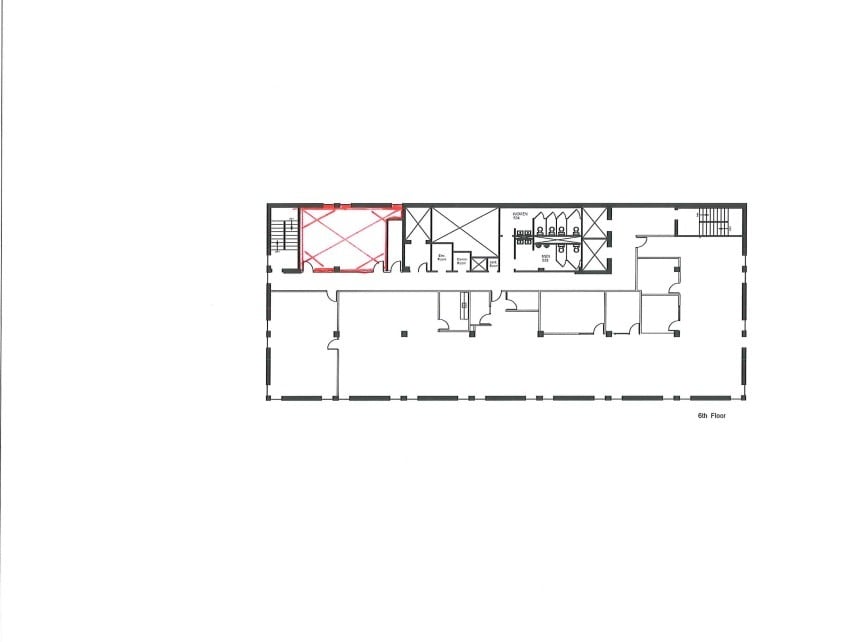
L'unité 601 au The Thompson offre environ 519 pieds carrés d'espace de bureau conçu de manière efficace dans un immeuble contemporain de six étages au centre-ville de Halifax. Cette unité est idéale pour les professionnels ou les petites équipes à la recherche d'un espace de travail compact et bien situé dans un emplacement central d'affaires. Le bâtiment présente des accents de granit extérieur et un solarium avec exposition sud, offrant un environnement lumineux et professionnel. Les locataires bénéficient de la proximité de la gare VIA Rail et d'un accès à pied aux quartiers d'affaires, financiers et de divertissement de Halifax. Des espaces de stationnement extérieurs sont disponibles pour le personnel et les visiteurs. Le bâtiment comprend également le Board Room Games Café au sous-sol, offrant une commodité unique pour les locataires et les invités. C'est une occasion rare de sécuriser un espace de bureau compact et central dans un bâtiment prestigieux du centre-ville de Halifax avec une excellente accessibilité et des commodités distinctives. Appelez ou envoyez un courriel à Rob pour une visite et pour en savoir plus sur nos opportunités de location. (902) 448-0904 | leasing@universalgroup.ca
- Entièrement construit comme Bureau de services professionnels
- Solarium avec exposition sud
- Commodité sur place : café de jeux de société avec salle de réunion
- Disposition du plan d’étage ouverte
- Espaces de stationnement extérieurs adjacents à l’immeuble
| Espace | Taille | Terme | Taux de location | Utilisation de l’espace | Aménagement | Disponible |
| 1er étage, ste 100 | 12 400 pi² | Négociable | 35,33 $ CAD/pi²/an 2,94 $ CAD/pi²/mois 438 092 $ CAD/an 36 508 $ CAD/mois | Bureau | construction complète | 30 jours |
| 2e étage, ste 202 | 2 989 pi² | Négociable | 34,23 $ CAD/pi²/an 2,85 $ CAD/pi²/mois 102 313 $ CAD/an 8 526 $ CAD/mois | Bureau | construction complète | 30 jours |
| 2e étage, ste 203 | 2 989 pi² | Négociable | 34,33 $ CAD/pi²/an 2,86 $ CAD/pi²/mois 102 612 $ CAD/an 8 551 $ CAD/mois | Bureau | construction complète | 30 jours |
| 3e étage, ste 300 | 7 121 pi² | Négociable | 34,33 $ CAD/pi²/an 2,86 $ CAD/pi²/mois 244 464 $ CAD/an 20 372 $ CAD/mois | Bureau | construction complète | 30 jours |
| 6e étage, ste 601 | 519 pi² | Négociable | 34,33 $ CAD/pi²/an 2,86 $ CAD/pi²/mois 17 817 $ CAD/an 1 485 $ CAD/mois | Bureau | construction complète | 30 jours |
1er étage, ste 100
| Taille |
| 12 400 pi² |
| Terme |
| Négociable |
| Taux de location |
| 35,33 $ CAD/pi²/an 2,94 $ CAD/pi²/mois 438 092 $ CAD/an 36 508 $ CAD/mois |
| Utilisation de l’espace |
| Bureau |
| Aménagement |
| construction complète |
| Disponible |
| 30 jours |
2e étage, ste 202
| Taille |
| 2 989 pi² |
| Terme |
| Négociable |
| Taux de location |
| 34,23 $ CAD/pi²/an 2,85 $ CAD/pi²/mois 102 313 $ CAD/an 8 526 $ CAD/mois |
| Utilisation de l’espace |
| Bureau |
| Aménagement |
| construction complète |
| Disponible |
| 30 jours |
2e étage, ste 203
| Taille |
| 2 989 pi² |
| Terme |
| Négociable |
| Taux de location |
| 34,33 $ CAD/pi²/an 2,86 $ CAD/pi²/mois 102 612 $ CAD/an 8 551 $ CAD/mois |
| Utilisation de l’espace |
| Bureau |
| Aménagement |
| construction complète |
| Disponible |
| 30 jours |
3e étage, ste 300
| Taille |
| 7 121 pi² |
| Terme |
| Négociable |
| Taux de location |
| 34,33 $ CAD/pi²/an 2,86 $ CAD/pi²/mois 244 464 $ CAD/an 20 372 $ CAD/mois |
| Utilisation de l’espace |
| Bureau |
| Aménagement |
| construction complète |
| Disponible |
| 30 jours |
6e étage, ste 601
| Taille |
| 519 pi² |
| Terme |
| Négociable |
| Taux de location |
| 34,33 $ CAD/pi²/an 2,86 $ CAD/pi²/mois 17 817 $ CAD/an 1 485 $ CAD/mois |
| Utilisation de l’espace |
| Bureau |
| Aménagement |
| construction complète |
| Disponible |
| 30 jours |
1er étage, ste 100
| Taille | 12 400 pi² |
| Terme | Négociable |
| Taux de location | 35,33 $ CAD/pi²/an |
| Utilisation de l’espace | Bureau |
| Aménagement | construction complète |
| Disponible | 30 jours |
L'unité 100 au Thompson offre environ 12 400 pieds carrés d'espace de bureau spacieux dans un emplacement de choix au centre-ville de Halifax, sur la rue Barrington. C'est une occasion exceptionnelle de sécuriser un espace de bureau substantiel dans un bâtiment bien situé au centre-ville offrant accessibilité, caractère et commodités pratiques. Appelez ou envoyez un courriel à Rob pour une visite et pour en savoir plus sur nos opportunités de location. (902) 830-0062 | leasing@universalgroup.ca
- Entièrement construit comme Bureau de services professionnels
- Disposition du plan d’étage ouverte
- Solarium avec exposition sud
- Espaces de stationnement extérieurs adjacents à l’immeuble
- Commodité sur place : café ludique avec salle de jeux de société
2e étage, ste 202
| Taille | 2 989 pi² |
| Terme | Négociable |
| Taux de location | 34,23 $ CAD/pi²/an |
| Utilisation de l’espace | Bureau |
| Aménagement | construction complète |
| Disponible | 30 jours |
L'unité 202 au The Thompson offre environ 1 655 pieds carrés d'espace de bureau bien aménagé dans un immeuble contemporain de six étages au centre-ville de Halifax. Cette unité est idéale pour les professionnels recherchant un bureau plus petit et efficacement configuré dans un emplacement central et dynamique. C'est une excellente occasion de sécuriser un espace de bureau situé au centre dans un bâtiment prestigieux du centre-ville de Halifax, offrant à la fois commodité et cadre professionnel. Appelez ou envoyez un courriel à Rob pour une visite et pour en savoir plus sur nos opportunités de location. (902) 830-0062 | leasing@universalgroup.ca
- Entièrement construit comme Bureau de services professionnels
- Disposition du plan d’étage ouverte
- Cuisine dans l’unité
- Solarium avec exposition sud
- Espaces de stationnement extérieurs adjacents à l’immeuble
- Commodité sur place : café de jeux de société avec salle de réunion
2e étage, ste 203
| Taille | 2 989 pi² |
| Terme | Négociable |
| Taux de location | 34,33 $ CAD/pi²/an |
| Utilisation de l’espace | Bureau |
| Aménagement | construction complète |
| Disponible | 30 jours |
L'unité 203 au The Thompson offre environ 2 989 pieds carrés d'espace de bureau bien aménagé dans un immeuble contemporain de six étages au centre-ville de Halifax. Cette unité est idéale pour les professionnels ou les petites équipes à la recherche d'un bureau plus grand et efficacement configuré dans un emplacement central et dynamique. Le bâtiment présente des accents de granit extérieur et un solarium avec exposition sud, offrant un environnement lumineux et professionnel. Les locataires bénéficient de la proximité de la gare VIA Rail et d'un accès à pied pratique aux quartiers d'affaires, financiers et de divertissement de Halifax. Des espaces de stationnement extérieurs sont disponibles pour le personnel et les visiteurs. Le bâtiment comprend également le Board Room Games Café au sous-sol, offrant une commodité unique pour les locataires et les invités. C'est une excellente occasion de sécuriser un espace de bureau de premier plan au centre-ville de Halifax dans un bâtiment professionnel offrant à la fois accessibilité et commodités distinctives. Appelez ou envoyez un courriel à Rob pour une visite et pour en savoir plus sur nos opportunités de location. (902) 448-0904 | leasing@universalgroup.ca
- Entièrement construit comme Bureau de services professionnels
- Disposition du plan d’étage ouverte
- 9 bureaux privés
- 1 salle de conférence
- Salle de bains privée
- 9 bureaux privés
- Une salle de conférence/réunion
- Cuisine dans l’unité
- Salle de bain privée dans l’unité
- Espaces de stationnement extérieurs adjacents à l’immeuble
- Commodité sur place : Café de jeux de société avec salle de réunion
3e étage, ste 300
| Taille | 7 121 pi² |
| Terme | Négociable |
| Taux de location | 34,33 $ CAD/pi²/an |
| Utilisation de l’espace | Bureau |
| Aménagement | construction complète |
| Disponible | 30 jours |
L'unité 300 au The Thompson offre environ 7 121 pieds carrés d'espace de bureau spacieux dans un immeuble contemporain de six étages au centre-ville de Halifax. Cette unité est idéalement adaptée aux utilisateurs de bureaux professionnels, corporatifs ou orientés vers le travail d'équipe qui recherchent un grand espace de travail flexible dans un emplacement central privilégié. Le bâtiment présente des accents de granit à l'extérieur et un solarium avec exposition sud, créant un environnement lumineux et professionnel. Les locataires bénéficient de la proximité de la gare VIA Rail et d'un accès à pied aux quartiers d'affaires, financiers et de divertissement de Halifax. Des espaces de stationnement extérieurs sont disponibles pour le personnel et les visiteurs. Le bâtiment comprend également le Board Room Games Café au sous-sol, offrant une commodité unique aux locataires et invités. C'est une occasion exceptionnelle de sécuriser un grand espace de bureau central dans l'un des bâtiments les plus accessibles et professionnels du centre-ville de Halifax. Appelez ou envoyez un courriel à Rob pour une visite et pour en savoir plus sur nos opportunités de location. (902) 448-0904 | leasing@universalgroup.ca
- Entièrement construit comme Bureau de services professionnels
- Disposition du plan d’étage ouverte
- 9 bureaux privés
- 9 bureaux privés
- Salle de bain privée dans l’unité
- Solarium avec exposition sud
- Espaces de stationnement extérieurs adjacents à l’immeuble
- Commodité sur place : café de jeux de société avec salle de réunion
6e étage, ste 601
| Taille | 519 pi² |
| Terme | Négociable |
| Taux de location | 34,33 $ CAD/pi²/an |
| Utilisation de l’espace | Bureau |
| Aménagement | construction complète |
| Disponible | 30 jours |
L'unité 601 au The Thompson offre environ 519 pieds carrés d'espace de bureau conçu de manière efficace dans un immeuble contemporain de six étages au centre-ville de Halifax. Cette unité est idéale pour les professionnels ou les petites équipes à la recherche d'un espace de travail compact et bien situé dans un emplacement central d'affaires. Le bâtiment présente des accents de granit extérieur et un solarium avec exposition sud, offrant un environnement lumineux et professionnel. Les locataires bénéficient de la proximité de la gare VIA Rail et d'un accès à pied aux quartiers d'affaires, financiers et de divertissement de Halifax. Des espaces de stationnement extérieurs sont disponibles pour le personnel et les visiteurs. Le bâtiment comprend également le Board Room Games Café au sous-sol, offrant une commodité unique pour les locataires et les invités. C'est une occasion rare de sécuriser un espace de bureau compact et central dans un bâtiment prestigieux du centre-ville de Halifax avec une excellente accessibilité et des commodités distinctives. Appelez ou envoyez un courriel à Rob pour une visite et pour en savoir plus sur nos opportunités de location. (902) 448-0904 | leasing@universalgroup.ca
- Entièrement construit comme Bureau de services professionnels
- Disposition du plan d’étage ouverte
- Solarium avec exposition sud
- Espaces de stationnement extérieurs adjacents à l’immeuble
- Commodité sur place : café de jeux de société avec salle de réunion
Aperçu de la propriété
Situé au cœur du centre-ville de Halifax, au 1256 rue Barrington, Halifax, NS B3J 1Y6, cet immeuble commercial à plusieurs étages offre des espaces de bureaux professionnels avec des commerces de détail au niveau de la rue. Connu sous le nom de Thompson Building, la propriété bénéficie d'une excellente visibilité, d'un emplacement dans le quartier central des affaires, et d'une proximité avec les bureaux gouvernementaux, les restaurants, les transports en commun et les commodités du bord de l'eau. Sa combinaison d'environnements de bureaux professionnels et d'activités au rez-de-chaussée en fait une option attrayante pour les entreprises cherchant à établir une présence bien établie au centre-ville.
Faits sur la propriété
Présenté par
The Thompson | 1256 Barrington St
Hmm, il semble y avoir eu une erreur lors de l’envoi de votre message. Veuillez réessayer.
Merci! Votre message a été envoyé.














