Votre courriel a été envoyé.
225 Rue de Liège O 2 274–24 742 pi² d'espace disponible • Bureau • Montréal, QC H2P 1H4


Faits saillants
- Immeuble bien entretenu et idéalement situé
- Une opportunité de signalisation est disponible.
- Grandes fenêtres laissant passer la lumière naturelle.
Caractéristiques
Tous les espaces disponibles(3)
Afficher les taux de location en
- Espace
- Taille
- Terme
- Taux de location
- Utilisation de l’espace
- Aménagement
- Disponible
An ideal space for your business
- Le taux de location ne comprend pas les services publics, les services de bâtiment ou les dépenses immobilières.
- Disposition du plan d’étage ouverte
- Système de chauffage central
- Accès aux ascenseurs
- Partiellement construit comme Bureau standard
- Bureaux partitionnés
- Aire de réception
- Lot of natural lights
An ideal space to meet your business needs
- Le taux de location ne comprend pas les services publics, les services de bâtiment ou les dépenses immobilières.
- Disposition du plan d’étage ouverte
- Partiellement construit comme Bureau standard
- Air central et chauffage
Un espace idéal pour répondre aux besoins de votre entreprise
- Le taux de location ne comprend pas les services publics, les services de bâtiment ou les dépenses immobilières.
- Disposition du plan d’étage ouverte
- Partiellement construit comme Bureau standard
- Air central et chauffage
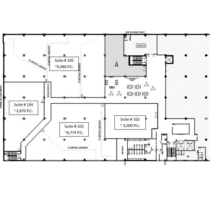
| Espace | Taille | Terme | Taux de location | Utilisation de l’espace | Aménagement | Disponible |
| 1er étage, ste 103 | 2 274 pi² | 1-5 ans | Sur demande Sur demande Sur demande Sur demande | Bureau | construction partielle | Maintenant |
| 1er étage, ste 104 | 12 982 pi² | 1 an | Sur demande Sur demande Sur demande Sur demande | Bureau | construction partielle | Maintenant |
| 2e étage, ste 105 | 9 486 pi² | 1-5 ans | Sur demande Sur demande Sur demande Sur demande | Bureau | construction partielle | Maintenant |
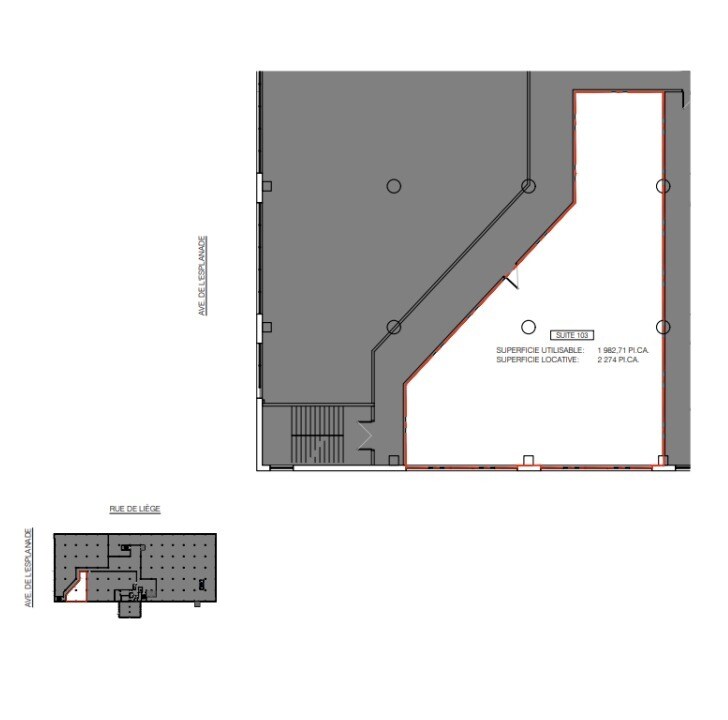
1er étage, ste 103
| Taille |
| 2 274 pi² |
| Terme |
| 1-5 ans |
| Taux de location |
| Sur demande Sur demande Sur demande Sur demande |
| Utilisation de l’espace |
| Bureau |
| Aménagement |
| construction partielle |
| Disponible |
| Maintenant |
1er étage, ste 104
| Taille |
| 12 982 pi² |
| Terme |
| 1 an |
| Taux de location |
| Sur demande Sur demande Sur demande Sur demande |
| Utilisation de l’espace |
| Bureau |
| Aménagement |
| construction partielle |
| Disponible |
| Maintenant |
2e étage, ste 105
| Taille |
| 9 486 pi² |
| Terme |
| 1-5 ans |
| Taux de location |
| Sur demande Sur demande Sur demande Sur demande |
| Utilisation de l’espace |
| Bureau |
| Aménagement |
| construction partielle |
| Disponible |
| Maintenant |
1er étage, ste 103
| Taille | 2 274 pi² |
| Terme | 1-5 ans |
| Taux de location | Sur demande |
| Utilisation de l’espace | Bureau |
| Aménagement | construction partielle |
| Disponible | Maintenant |
An ideal space for your business
- Le taux de location ne comprend pas les services publics, les services de bâtiment ou les dépenses immobilières.
- Partiellement construit comme Bureau standard
- Disposition du plan d’étage ouverte
- Bureaux partitionnés
- Système de chauffage central
- Aire de réception
- Accès aux ascenseurs
- Lot of natural lights
1er étage, ste 104
| Taille | 12 982 pi² |
| Terme | 1 an |
| Taux de location | Sur demande |
| Utilisation de l’espace | Bureau |
| Aménagement | construction partielle |
| Disponible | Maintenant |
An ideal space to meet your business needs
- Le taux de location ne comprend pas les services publics, les services de bâtiment ou les dépenses immobilières.
- Partiellement construit comme Bureau standard
- Disposition du plan d’étage ouverte
- Air central et chauffage
2e étage, ste 105
| Taille | 9 486 pi² |
| Terme | 1-5 ans |
| Taux de location | Sur demande |
| Utilisation de l’espace | Bureau |
| Aménagement | construction partielle |
| Disponible | Maintenant |
Un espace idéal pour répondre aux besoins de votre entreprise
- Le taux de location ne comprend pas les services publics, les services de bâtiment ou les dépenses immobilières.
- Partiellement construit comme Bureau standard
- Disposition du plan d’étage ouverte
- Air central et chauffage
Aperçu de la propriété
Le 225 de Liège Ouest est un magnifique bâtiment industriel de 240 000 pieds carrés réparti sur quatre étages, situé à l'intersection de la rue de Liège et de l'avenue de l'Esplanade, au nord du centre-ville de Montréal. Construit au début des années 1950, ce bâtiment a été maintenu dans un état d'entretien impeccable et a récemment fait l'objet de rénovations aux fenêtres, aux toilettes et aux parties communes. À quelques pas du parc Jarry et du marché central, le 225 de Liège Ouest favorise l'équilibre entre vie professionnelle et vie privée tant recherché par les travailleurs d'aujourd'hui et offre un contexte enviable pour inspirer l'innovation.
Faits sur l’installation Industriel
Présenté par
225 Rue de Liège O
Hmm, il semble y avoir eu une erreur lors de l’envoi de votre message. Veuillez réessayer.
Merci! Votre message a été envoyé.






