Votre courriel a été envoyé.
2660 Concession Road - 2660 Concession Road Lot • Terrain commercial • 1 Acre • Kemptville, ON K0G 1J0



Certaines informations ont été traduites automatiquement.
Faits saillants de l'investissement
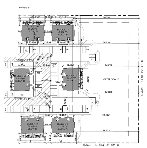
- Environ 1 acre
- Site prêt pour le développement avec services jusqu'à la limite du terrain
- Zonage : Zone résidentielle de quatrième densité R4-1
- Potentiel de développement jusqu'à 48 unités
Résumé de l'annonce
Faits sur la propriété Sous contrat
1 Lot disponible
Lot
| Taille du lot | 1,00 AC |
| Taille du lot | 1,00 AC |
Le site bénéficie d'une proximité immédiate avec l'école élémentaire South Branch, l'école secondaire du district de North Grenville, le centre de ressources de la région de Kemptville et l'hôpital de Kemptville.
Description
Le site bénéficie d'une proximité immédiate avec l'école primaire South Branch, l'école secondaire North Grenville District, le centre de ressources de la région de Kemptville et l'hôpital de Kemptville. De nombreux services sont disponibles au Kemptville Colonnade, avec un accès à l'autoroute 416 à environ 5 minutes en voiture.
Présenté par
2660 Concession Road - 2660 Concession Road
Hmm, il semble y avoir eu une erreur lors de l’envoi de votre message. Veuillez réessayer.
Merci! Votre message a été envoyé.
