Votre courriel a été envoyé.
Building B 27265 Gloucester Way 11 866 pi² d'espace disponible • Industriel • Langley, BC V4W 3Z8



Certaines informations ont été traduites automatiquement.
FAITS SAILLANTS
- Éclairage DEL
- Luminaires muraux extérieurs montés
- Radiateurs radiants
- Vestiaires spacieux pour hommes et femmes comprenant des douches
CARACTÉRISTIQUES
TOUS LES ESPACES DISPONIBLES(1)
Afficher les taux de location en
- ESPACE
- TAILLE
- TERME
- TAUX DE LOCATION
- UTILISATION DE L’ESPACE
- ÉTAT
- DISPONIBLE
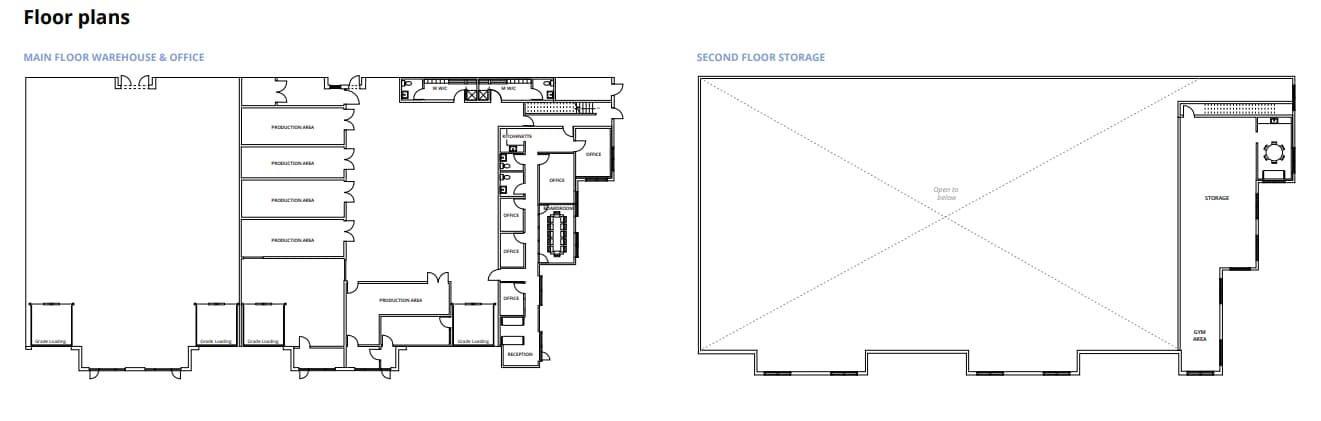
Le 27265 Gloucester Way offre une opportunité exceptionnelle de louer jusqu'à 11 866 pi² d'entrepôt et de bureaux dans le parc industriel Gloucester de Langley. Ce bâtiment de haute qualité propose des spécifications d'entrepôt de premier ordre et un espace de bureau bien aménagé dans l'un des sous-marchés industriels les plus prisés de la région métropolitaine de Vancouver.
- Le taux de location ne comprend pas les services publics, les services de bâtiment ou les dépenses immobilières.
- 4 accès plain-pied
- 18 places de stationnement sur place
- Comprend 1 600 pi² d’espace de bureau dédié
- Système CVC et système de gicleurs
| Espace | Taille | Terme | Taux de location | Utilisation de l’espace | État | Disponible |
| 1er étage | 11 866 pi² | Négociable | Sur demande Sur demande Sur demande Sur demande | Industriel | construction complète | Maintenant |
1er étage
| Taille |
| 11 866 pi² |
| Terme |
| Négociable |
| Taux de location |
| Sur demande Sur demande Sur demande Sur demande |
| Utilisation de l’espace |
| Industriel |
| État |
| construction complète |
| Disponible |
| Maintenant |
1er étage
| Taille | 11 866 pi² |
| Terme | Négociable |
| Taux de location | Sur demande |
| Utilisation de l’espace | Industriel |
| État | construction complète |
| Disponible | Maintenant |
Le 27265 Gloucester Way offre une opportunité exceptionnelle de louer jusqu'à 11 866 pi² d'entrepôt et de bureaux dans le parc industriel Gloucester de Langley. Ce bâtiment de haute qualité propose des spécifications d'entrepôt de premier ordre et un espace de bureau bien aménagé dans l'un des sous-marchés industriels les plus prisés de la région métropolitaine de Vancouver.
- Le taux de location ne comprend pas les services publics, les services de bâtiment ou les dépenses immobilières.
- Comprend 1 600 pi² d’espace de bureau dédié
- 4 accès plain-pied
- Système CVC et système de gicleurs
- 18 places de stationnement sur place
APERÇU DE LA PROPRIÉTÉ
La propriété en question est située dans le secteur des Gloucester Industrial Estates, dans le canton de Langley, le parc industriel de premier plan de la région métropolitaine de Vancouver, offrant plus de 5 millions de pieds carrés d'inventaire industriel. Cet emplacement stratégique permet un accès pratique à la frontière des États-Unis (à seulement 15 minutes) ainsi qu'à toutes les autres régions de la métropole de Vancouver. La propriété se trouve juste au sud de la 56 Avenue et au nord de Gloucester Way, bénéficiant d'un accès immédiat à l'autoroute #1 et à l'autoroute 13 (264e Rue), offrant un accès direct à la frontière américaine et un excellent accès à toutes les zones du Lower Mainland.
FAITS SUR L’INSTALLATION ENTREPÔT
SÉLECTIONNER DES LOCATAIRES
- ÉTAGE
- NOM DU LOCATAIRE
- SECTEUR
- Inconnu
- Chamco Industries Ltd
- Fabrication
- 1ᵉʳ
- Magnatech Inspections
- -
- 1ᵉʳ
- Power Hydraulics
- Grossiste
Présenté par
Building B | 27265 Gloucester Way
Hmm, il semble y avoir eu une erreur lors de l’envoi de votre message. Veuillez réessayer.
Merci! Votre message a été envoyé.



