Votre courriel a été envoyé.
296 Richmond St W 5 980–24 294 pi² d'espace disponible • Bureau • Toronto, ON M5V 1X2



Certaines informations ont été traduites automatiquement.
FAITS SAILLANTS
- La propriété offre un mélange de charme historique et d'aménagements modernes.
- Caractéristiques : lumière naturelle avec espaces de travail à concept ouvert, planchers en bois franc, murs de briques apparentes, hauts plafonds et salles de réunion privées.
TOUS LES ESPACES DISPONIBLES(4)
Afficher les taux de location en
- ESPACE
- TAILLE
- TERME
- TAUX DE LOCATION
- UTILISATION DE L’ESPACE
- ÉTAT
- DISPONIBLE
Cette suite comprend trois bureaux privés, deux salles de réunion, une kitchenette et des salles de bain privées dans la suite. Le propriétaire est disposé à diviser les unités à environ 2 500 pi². Toutes les suites sont disponibles immédiatement.
- Le taux de location ne comprend pas les services publics, les services de bâtiment ou les dépenses immobilières.
- Peut être associé à un ou plusieurs espaces supplémentaires pour obtenir jusqu’à 24 294 pi² d’espace adjacent.
- Entièrement construit comme Bureau standard
Comprend trois bureaux privés, deux salles de réunion, un grand espace ouvert pour les postes de travail, une kitchenette et des salles de bain privées dans la suite. Le propriétaire est disposé à diviser les unités à environ 2 500 pi². Toutes les suites sont disponibles immédiatement.
- Le taux de location ne comprend pas les services publics, les services de bâtiment ou les dépenses immobilières.
- Peut être associé à un ou plusieurs espaces supplémentaires pour obtenir jusqu’à 24 294 pi² d’espace adjacent.
- Entièrement construit comme Bureau standard
- Suite entièrement meublée
Comprend une salle de réunion, un bureau privé, un espace ouvert pour les postes de travail, une kitchenette et des salles de bain privées dans la suite. Le propriétaire est disposé à diviser les unités à environ 2 500 pi². Toutes les suites sont disponibles immédiatement.
- Le taux de location ne comprend pas les services publics, les services de bâtiment ou les dépenses immobilières.
- Peut être associé à un ou plusieurs espaces supplémentaires pour obtenir jusqu’à 24 294 pi² d’espace adjacent.
- Entièrement construit comme Bureau standard
Comprend une grande aire ouverte pour les postes de travail, quatre bureaux privés, une kitchenette et une salle à manger, ainsi que des salles de bain privées dans l'unité. Le propriétaire est disposé à diviser les unités à environ 2 500 pi². Toutes les unités sont disponibles immédiatement.
- Le taux de location ne comprend pas les services publics, les services de bâtiment ou les dépenses immobilières.
- Peut être associé à un ou plusieurs espaces supplémentaires pour obtenir jusqu’à 24 294 pi² d’espace adjacent.
- Entièrement construit comme Bureau standard
| Espace | Taille | Terme | Taux de location | Utilisation de l’espace | État | Disponible |
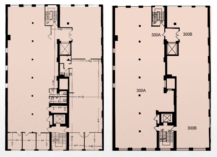
| 3e étage, ste 300 | 5 980 pi² | Négociable | 20,00 $ CAD/pi²/an 1,67 $ CAD/pi²/mois 119 600 $ CAD/an 9 967 $ CAD/mois | Bureau | construction complète | 30 jours |
| 4e étage, ste 400 | 6 056 pi² | Négociable | 20,00 $ CAD/pi²/an 1,67 $ CAD/pi²/mois 121 120 $ CAD/an 10 093 $ CAD/mois | Bureau | construction complète | 30 jours |
| 5e étage, ste 500 | 6 136 pi² | Négociable | 20,00 $ CAD/pi²/an 1,67 $ CAD/pi²/mois 122 720 $ CAD/an 10 227 $ CAD/mois | Bureau | construction complète | 30 jours |
| 6e étage, ste 600 | 6 122 pi² | Négociable | 20,00 $ CAD/pi²/an 1,67 $ CAD/pi²/mois 122 440 $ CAD/an 10 203 $ CAD/mois | Bureau | construction complète | 30 jours |
3e étage, ste 300
| Taille |
| 5 980 pi² |
| Terme |
| Négociable |
| Taux de location |
| 20,00 $ CAD/pi²/an 1,67 $ CAD/pi²/mois 119 600 $ CAD/an 9 967 $ CAD/mois |
| Utilisation de l’espace |
| Bureau |
| État |
| construction complète |
| Disponible |
| 30 jours |
4e étage, ste 400
| Taille |
| 6 056 pi² |
| Terme |
| Négociable |
| Taux de location |
| 20,00 $ CAD/pi²/an 1,67 $ CAD/pi²/mois 121 120 $ CAD/an 10 093 $ CAD/mois |
| Utilisation de l’espace |
| Bureau |
| État |
| construction complète |
| Disponible |
| 30 jours |
5e étage, ste 500
| Taille |
| 6 136 pi² |
| Terme |
| Négociable |
| Taux de location |
| 20,00 $ CAD/pi²/an 1,67 $ CAD/pi²/mois 122 720 $ CAD/an 10 227 $ CAD/mois |
| Utilisation de l’espace |
| Bureau |
| État |
| construction complète |
| Disponible |
| 30 jours |
6e étage, ste 600
| Taille |
| 6 122 pi² |
| Terme |
| Négociable |
| Taux de location |
| 20,00 $ CAD/pi²/an 1,67 $ CAD/pi²/mois 122 440 $ CAD/an 10 203 $ CAD/mois |
| Utilisation de l’espace |
| Bureau |
| État |
| construction complète |
| Disponible |
| 30 jours |
3e étage, ste 300
| Taille | 5 980 pi² |
| Terme | Négociable |
| Taux de location | 20,00 $ CAD/pi²/an |
| Utilisation de l’espace | Bureau |
| État | construction complète |
| Disponible | 30 jours |
Cette suite comprend trois bureaux privés, deux salles de réunion, une kitchenette et des salles de bain privées dans la suite. Le propriétaire est disposé à diviser les unités à environ 2 500 pi². Toutes les suites sont disponibles immédiatement.
- Le taux de location ne comprend pas les services publics, les services de bâtiment ou les dépenses immobilières.
- Entièrement construit comme Bureau standard
- Peut être associé à un ou plusieurs espaces supplémentaires pour obtenir jusqu’à 24 294 pi² d’espace adjacent.
4e étage, ste 400
| Taille | 6 056 pi² |
| Terme | Négociable |
| Taux de location | 20,00 $ CAD/pi²/an |
| Utilisation de l’espace | Bureau |
| État | construction complète |
| Disponible | 30 jours |
Comprend trois bureaux privés, deux salles de réunion, un grand espace ouvert pour les postes de travail, une kitchenette et des salles de bain privées dans la suite. Le propriétaire est disposé à diviser les unités à environ 2 500 pi². Toutes les suites sont disponibles immédiatement.
- Le taux de location ne comprend pas les services publics, les services de bâtiment ou les dépenses immobilières.
- Entièrement construit comme Bureau standard
- Peut être associé à un ou plusieurs espaces supplémentaires pour obtenir jusqu’à 24 294 pi² d’espace adjacent.
- Suite entièrement meublée
5e étage, ste 500
| Taille | 6 136 pi² |
| Terme | Négociable |
| Taux de location | 20,00 $ CAD/pi²/an |
| Utilisation de l’espace | Bureau |
| État | construction complète |
| Disponible | 30 jours |
Comprend une salle de réunion, un bureau privé, un espace ouvert pour les postes de travail, une kitchenette et des salles de bain privées dans la suite. Le propriétaire est disposé à diviser les unités à environ 2 500 pi². Toutes les suites sont disponibles immédiatement.
- Le taux de location ne comprend pas les services publics, les services de bâtiment ou les dépenses immobilières.
- Entièrement construit comme Bureau standard
- Peut être associé à un ou plusieurs espaces supplémentaires pour obtenir jusqu’à 24 294 pi² d’espace adjacent.
6e étage, ste 600
| Taille | 6 122 pi² |
| Terme | Négociable |
| Taux de location | 20,00 $ CAD/pi²/an |
| Utilisation de l’espace | Bureau |
| État | construction complète |
| Disponible | 30 jours |
Comprend une grande aire ouverte pour les postes de travail, quatre bureaux privés, une kitchenette et une salle à manger, ainsi que des salles de bain privées dans l'unité. Le propriétaire est disposé à diviser les unités à environ 2 500 pi². Toutes les unités sont disponibles immédiatement.
- Le taux de location ne comprend pas les services publics, les services de bâtiment ou les dépenses immobilières.
- Entièrement construit comme Bureau standard
- Peut être associé à un ou plusieurs espaces supplémentaires pour obtenir jusqu’à 24 294 pi² d’espace adjacent.
CARACTÉRISTIQUES ET COMMODITÉS
- Métro
FAITS SUR LA PROPRIÉTÉ
SÉLECTIONNER DES LOCATAIRES
- ÉTAGE
- NOM DU LOCATAIRE
- SECTEUR
- Multiple
- Versett
- Services administratifs et de soutien
Présenté par
296 Richmond St W
Hmm, il semble y avoir eu une erreur lors de l’envoi de votre message. Veuillez réessayer.
Merci! Votre message a été envoyé.








