Votre courriel a été envoyé.
Tower I 300 Town Centre Blvd N 5 111–40 843 pi² d'espace disponible • Bureau • Markham, ON L3R 5Z6



Certaines informations ont été traduites automatiquement.
Faits saillants
- Campus unique de trois bâtiments
- Abondance de lumière naturelle
- Enclave corporatif avec espaces extérieurs privés
- Possibilité d'affichage
- Proximité de nombreux services
- Stationnement souterrain gratuit
Tous les espaces disponibles(4)
Afficher les taux de location en
- Espace
- Taille
- Terme
- Taux de location
- Utilisation de l’espace
- Aménagement
- Disponible
- Le taux de location ne comprend pas les services publics, les services de bâtiment ou les dépenses immobilières.
- Disposition du plan d’étage ouverte en général
- 1 salle de conférence
- Entièrement construit comme Bureau standard
- 5 bureaux privés
- Cuisine
- Le taux de location ne comprend pas les services publics, les services de bâtiment ou les dépenses immobilières.
- Disposition du plan d’étage ouverte en général
- Partiellement construit comme Bureau standard
- Espace en excellent état
Abondance de lumière naturelle Stationnement souterrain gratuit Proche du centre-ville de Markham À proximité de nombreux services Accès facile aux autoroutes 7, 407 et 404
- Le taux de location ne comprend pas les services publics, les services de bâtiment ou les dépenses immobilières.
- Disposition du plan d’étage ouverte
- Peut être associé à un ou plusieurs espaces supplémentaires pour obtenir jusqu’à 28 356 pi² d’espace adjacent.
- Des tonnes de lumière naturelle pour les employés.
- Partiellement construit comme Bureau standard
- Espace en excellent état
- Air central et chauffage
- Espace récemment rénové.
Abondance de lumière naturelle Stationnement souterrain gratuit Proche du centre-ville de Markham À proximité de nombreux services Accès facile aux autoroutes 7, 407 et 404
- Le taux de location ne comprend pas les services publics, les services de bâtiment ou les dépenses immobilières.
- Disposition du plan d’étage ouverte
- Peut être associé à un ou plusieurs espaces supplémentaires pour obtenir jusqu’à 28 356 pi² d’espace adjacent.
- Des tonnes de lumière naturelle pour les employés.
- Partiellement construit comme Bureau standard
- Espace en excellent état
- Air central et chauffage
- Espace récemment rénové.
| Espace | Taille | Terme | Taux de location | Utilisation de l’espace | Aménagement | Disponible |
| 1er étage, ste 100 | 7 376 pi² | Négociable | 16,50 $ CAD/pi²/an 1,38 $ CAD/pi²/mois 121 704 $ CAD/an 10 142 $ CAD/mois | Bureau | construction complète | 60 jours |
| 2e étage, ste 203 | 5 111 pi² | 5-10 ans | 16,50 $ CAD/pi²/an 1,38 $ CAD/pi²/mois 84 332 $ CAD/an 7 028 $ CAD/mois | Bureau | construction partielle | Maintenant |
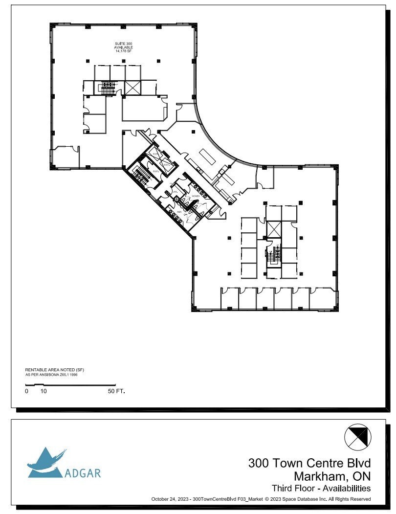
| 3e étage, ste 300 | 14 178 pi² | 5-10 ans | 16,50 $ CAD/pi²/an 1,38 $ CAD/pi²/mois 233 937 $ CAD/an 19 495 $ CAD/mois | Bureau | construction partielle | 30 jours |
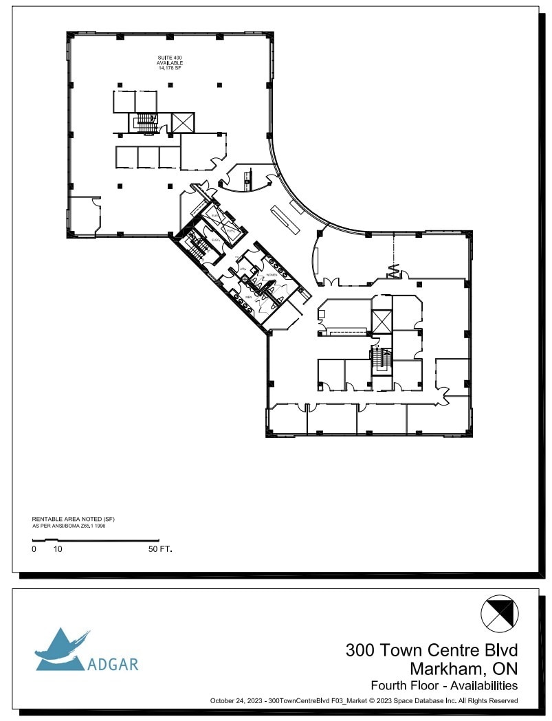
| 4e étage, ste 400 | 14 178 pi² | 5-10 ans | 16,50 $ CAD/pi²/an 1,38 $ CAD/pi²/mois 233 937 $ CAD/an 19 495 $ CAD/mois | Bureau | construction partielle | 30 jours |
1er étage, ste 100
| Taille |
| 7 376 pi² |
| Terme |
| Négociable |
| Taux de location |
| 16,50 $ CAD/pi²/an 1,38 $ CAD/pi²/mois 121 704 $ CAD/an 10 142 $ CAD/mois |
| Utilisation de l’espace |
| Bureau |
| Aménagement |
| construction complète |
| Disponible |
| 60 jours |
2e étage, ste 203
| Taille |
| 5 111 pi² |
| Terme |
| 5-10 ans |
| Taux de location |
| 16,50 $ CAD/pi²/an 1,38 $ CAD/pi²/mois 84 332 $ CAD/an 7 028 $ CAD/mois |
| Utilisation de l’espace |
| Bureau |
| Aménagement |
| construction partielle |
| Disponible |
| Maintenant |
3e étage, ste 300
| Taille |
| 14 178 pi² |
| Terme |
| 5-10 ans |
| Taux de location |
| 16,50 $ CAD/pi²/an 1,38 $ CAD/pi²/mois 233 937 $ CAD/an 19 495 $ CAD/mois |
| Utilisation de l’espace |
| Bureau |
| Aménagement |
| construction partielle |
| Disponible |
| 30 jours |
4e étage, ste 400
| Taille |
| 14 178 pi² |
| Terme |
| 5-10 ans |
| Taux de location |
| 16,50 $ CAD/pi²/an 1,38 $ CAD/pi²/mois 233 937 $ CAD/an 19 495 $ CAD/mois |
| Utilisation de l’espace |
| Bureau |
| Aménagement |
| construction partielle |
| Disponible |
| 30 jours |
1er étage, ste 100
| Taille | 7 376 pi² |
| Terme | Négociable |
| Taux de location | 16,50 $ CAD/pi²/an |
| Utilisation de l’espace | Bureau |
| Aménagement | construction complète |
| Disponible | 60 jours |
- Le taux de location ne comprend pas les services publics, les services de bâtiment ou les dépenses immobilières.
- Entièrement construit comme Bureau standard
- Disposition du plan d’étage ouverte en général
- 5 bureaux privés
- 1 salle de conférence
- Cuisine
2e étage, ste 203
| Taille | 5 111 pi² |
| Terme | 5-10 ans |
| Taux de location | 16,50 $ CAD/pi²/an |
| Utilisation de l’espace | Bureau |
| Aménagement | construction partielle |
| Disponible | Maintenant |
- Le taux de location ne comprend pas les services publics, les services de bâtiment ou les dépenses immobilières.
- Partiellement construit comme Bureau standard
- Disposition du plan d’étage ouverte en général
- Espace en excellent état
3e étage, ste 300
| Taille | 14 178 pi² |
| Terme | 5-10 ans |
| Taux de location | 16,50 $ CAD/pi²/an |
| Utilisation de l’espace | Bureau |
| Aménagement | construction partielle |
| Disponible | 30 jours |
Abondance de lumière naturelle Stationnement souterrain gratuit Proche du centre-ville de Markham À proximité de nombreux services Accès facile aux autoroutes 7, 407 et 404
- Le taux de location ne comprend pas les services publics, les services de bâtiment ou les dépenses immobilières.
- Partiellement construit comme Bureau standard
- Disposition du plan d’étage ouverte
- Espace en excellent état
- Peut être associé à un ou plusieurs espaces supplémentaires pour obtenir jusqu’à 28 356 pi² d’espace adjacent.
- Air central et chauffage
- Des tonnes de lumière naturelle pour les employés.
- Espace récemment rénové.
4e étage, ste 400
| Taille | 14 178 pi² |
| Terme | 5-10 ans |
| Taux de location | 16,50 $ CAD/pi²/an |
| Utilisation de l’espace | Bureau |
| Aménagement | construction partielle |
| Disponible | 30 jours |
Abondance de lumière naturelle Stationnement souterrain gratuit Proche du centre-ville de Markham À proximité de nombreux services Accès facile aux autoroutes 7, 407 et 404
- Le taux de location ne comprend pas les services publics, les services de bâtiment ou les dépenses immobilières.
- Partiellement construit comme Bureau standard
- Disposition du plan d’étage ouverte
- Espace en excellent état
- Peut être associé à un ou plusieurs espaces supplémentaires pour obtenir jusqu’à 28 356 pi² d’espace adjacent.
- Air central et chauffage
- Des tonnes de lumière naturelle pour les employés.
- Espace récemment rénové.
Aperçu de la propriété
300-306 Town Centre Boulevard est situé au cœur de la ville de Markham, à l'intersection de l'autoroute 7 et de l'avenue Warden. La proximité des autoroutes 404 et 407 permet un accès rapide et efficace au centre-ville et aux environs de la RGT.
Faits sur la propriété
Présenté par
Entreprise non fournie
Tower I | 300 Town Centre Blvd N
Hmm, il semble y avoir eu une erreur lors de l’envoi de votre message. Veuillez réessayer.
Merci! Votre message a été envoyé.









