Votre courriel a été envoyé.
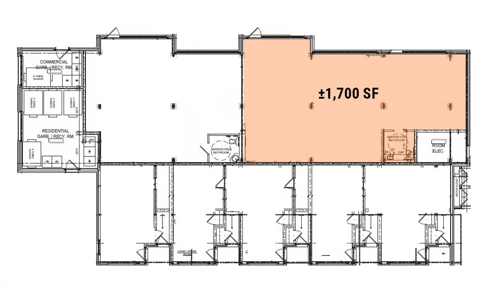
3615 Uplands Dr - 3615 Uplands Dr Unité de condo • Bureau/Commerce de détail • 1 700 pi² • À vendre 765 000 $ CAD • Ottawa, ON K1V 8Y9


Certaines informations ont été traduites automatiquement.
1 Unité disponible
Unité 1&2
| Taille de l’unité | 1 700 pi² | Utilisation du condo | Bureau/Commerce de détail |
| Prix | 765 000 $ CAD | Type de vente | Investissement ou propriétaire utilisateur |
| Prix par pi² | 450,00 $ CAD |
| Taille de l’unité | 1 700 pi² |
| Prix | 765 000 $ CAD |
| Prix par pi² | 450,00 $ CAD |
| Utilisation du condo | Bureau/Commerce de détail |
| Type de vente | Investissement ou propriétaire utilisateur |
Description
Possibilité d'acheter une unité commerciale au rez-de-chaussée d'environ 1 700 pieds carrés dans un développement à usage mixte bien situé à l'ouest de l'aéroport international d'Ottawa et juste au sud de Hunt Club Road. La propriété bénéficie d'une forte visibilité dans un secteur à fort trafic avec environ 32 500 véhicules par jour à Hunt Club Road et Paul Anka Drive. Entouré d'un groupe dense de générateurs de demande, y compris six hôtels avec plus de 900 chambres, deux centres de congrès et le stationnement Park'N Fly de l'aéroport directement en face. Stationnement sur place disponible. Les frais de copropriété incluent : l'eau, le déneigement, la location du stationnement de Hydro One, l'entretien, la gestion de la copropriété, l'aménagement paysager et les ordures.
- Taxes foncières estimées à 10 893,96 $ (2026)
Frais de copropriété estimés à 35 340,00 $ (2026)
L'unité voisine au rez-de-chaussée peut également être envisagée pour la location ou la vente, contactez pour plus de détails.
Streetview_3615Uplands
Floorplan_3615 Uplands
Faits sur la propriété
| Taille totale du bâtiment | 4 000 pi² | Superficie de plancher typique | 2 000 pi² |
| Type de propriété | Commerce de détail (Condo) | Année de construction | 2018 |
| Sous-type de propriété | Commerce pied immeuble | Taille du lot | 0,43 AC |
| Classe d’immeuble | B | Ratio de stationnement | 5/1 000 pi² |
| Planchers | 2 | ||
| Zonage | LC6 - Zone commerciale locale | ||
| Taille totale du bâtiment | 4 000 pi² |
| Type de propriété | Commerce de détail (Condo) |
| Sous-type de propriété | Commerce pied immeuble |
| Classe d’immeuble | B |
| Planchers | 2 |
| Superficie de plancher typique | 2 000 pi² |
| Année de construction | 2018 |
| Taille du lot | 0,43 AC |
| Ratio de stationnement | 5/1 000 pi² |
| Zonage | LC6 - Zone commerciale locale |
Principaux détaillants à proximité
Présenté par
3615 Uplands Dr - 3615 Uplands Dr
Hmm, il semble y avoir eu une erreur lors de l’envoi de votre message. Veuillez réessayer.
Merci! Votre message a été envoyé.

