Se Connecter/S’inscrire
Votre courriel a été envoyé.
4800 104th Ave SE 3 000–9 000 pi² d'espace disponible • Industriel • Calgary, AB T2C 0J6

Certaines informations ont été traduites automatiquement.
Faits saillants
- Stationnement en surface à cet endroit.
- Situé à proximité de Glenmore Trail & Deerfoot Trail.
- Façades sur la 104 avenue SE.
Caractéristiques
Hauteur libre
21’
Baies d’entrée
10
Portes de quai de chargement extérieures
10
Places de stationnement standard
40
Tous les espaces disponibles(3)
Afficher les taux de location en
- Espace
- Taille
- Terme
- Taux de location
- Utilisation de l’espace
- Aménagement
- Disponible
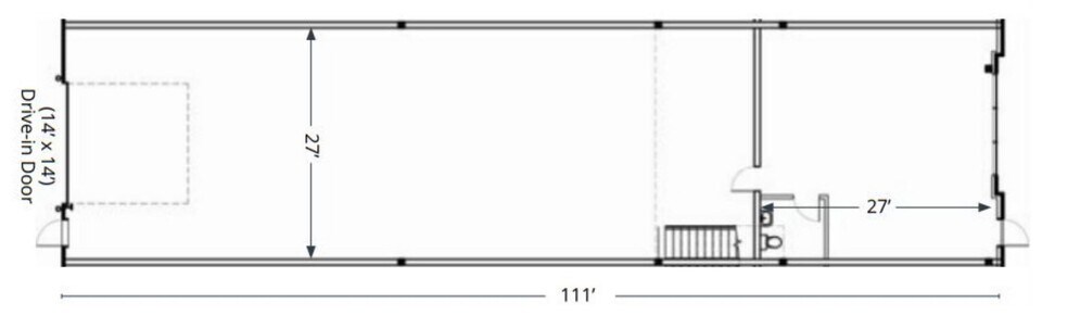
Une (1) porte d'entrée pour véhicules (14’ x 14’)
- Le taux de location ne comprend pas les services publics, les services de bâtiment ou les dépenses immobilières.
- 1 accès plain-pied
- 125 ampères (à vérifier)
- Comprend 775 pi² d’espace de bureau dédié
- Hauteur libre de 21 pieds
Une (1) porte d'entrée pour véhicules (14’ x 14’)
- Le taux de location ne comprend pas les services publics, les services de bâtiment ou les dépenses immobilières.
- 1 accès plain-pied
- 125 ampères (à vérifier)
- Comprend 745 pi² d’espace de bureau dédié
- Hauteur libre de 21 pieds
Une (1) porte d'entrée pour véhicules (14’ x 14’)
- Le taux de location ne comprend pas les services publics, les services de bâtiment ou les dépenses immobilières.
- 1 accès plain-pied
- 125 ampères (à vérifier)
- Comprend 745 pi² d’espace de bureau dédié
- Hauteur libre de 21 pieds
| Espace | Taille | Terme | Taux de location | Utilisation de l’espace | Aménagement | Disponible |
| 1er étage - 109 | 3 000 pi² | Négociable | 12,00 $ CAD/pi²/an 1,00 $ CAD/pi²/mois 36 000 $ CAD/an 3 000 $ CAD/mois | Industriel | construction complète | Maintenant |
| 1er étage - 113 | 3 000 pi² | Négociable | 12,50 $ CAD/pi²/an 1,04 $ CAD/pi²/mois 37 500 $ CAD/an 3 125 $ CAD/mois | Industriel | construction complète | Maintenant |
| 1er étage - 125 | 3 000 pi² | Négociable | 12,50 $ CAD/pi²/an 1,04 $ CAD/pi²/mois 37 500 $ CAD/an 3 125 $ CAD/mois | Industriel | construction complète | Maintenant |
1er étage - 109
| Taille |
| 3 000 pi² |
| Terme |
| Négociable |
| Taux de location |
| 12,00 $ CAD/pi²/an 1,00 $ CAD/pi²/mois 36 000 $ CAD/an 3 000 $ CAD/mois |
| Utilisation de l’espace |
| Industriel |
| Aménagement |
| construction complète |
| Disponible |
| Maintenant |
1er étage - 113
| Taille |
| 3 000 pi² |
| Terme |
| Négociable |
| Taux de location |
| 12,50 $ CAD/pi²/an 1,04 $ CAD/pi²/mois 37 500 $ CAD/an 3 125 $ CAD/mois |
| Utilisation de l’espace |
| Industriel |
| Aménagement |
| construction complète |
| Disponible |
| Maintenant |
1er étage - 125
| Taille |
| 3 000 pi² |
| Terme |
| Négociable |
| Taux de location |
| 12,50 $ CAD/pi²/an 1,04 $ CAD/pi²/mois 37 500 $ CAD/an 3 125 $ CAD/mois |
| Utilisation de l’espace |
| Industriel |
| Aménagement |
| construction complète |
| Disponible |
| Maintenant |
1 de 3
Vidéos
Visite extérieure 3D Matterport
Visite 3D Matterport
Photos
Vue depuis la rue
Rue
Carte
1er étage - 109
| Taille | 3 000 pi² |
| Terme | Négociable |
| Taux de location | 12,00 $ CAD/pi²/an |
| Utilisation de l’espace | Industriel |
| Aménagement | construction complète |
| Disponible | Maintenant |
Une (1) porte d'entrée pour véhicules (14’ x 14’)
- Le taux de location ne comprend pas les services publics, les services de bâtiment ou les dépenses immobilières.
- Comprend 775 pi² d’espace de bureau dédié
- 1 accès plain-pied
- Hauteur libre de 21 pieds
- 125 ampères (à vérifier)
1 de 6
Vidéos
Visite extérieure 3D Matterport
Visite 3D Matterport
Photos
Vue depuis la rue
Rue
Carte
1er étage - 113
| Taille | 3 000 pi² |
| Terme | Négociable |
| Taux de location | 12,50 $ CAD/pi²/an |
| Utilisation de l’espace | Industriel |
| Aménagement | construction complète |
| Disponible | Maintenant |
Une (1) porte d'entrée pour véhicules (14’ x 14’)
- Le taux de location ne comprend pas les services publics, les services de bâtiment ou les dépenses immobilières.
- Comprend 745 pi² d’espace de bureau dédié
- 1 accès plain-pied
- Hauteur libre de 21 pieds
- 125 ampères (à vérifier)
1er étage - 125
| Taille | 3 000 pi² |
| Terme | Négociable |
| Taux de location | 12,50 $ CAD/pi²/an |
| Utilisation de l’espace | Industriel |
| Aménagement | construction complète |
| Disponible | Maintenant |
Une (1) porte d'entrée pour véhicules (14’ x 14’)
- Le taux de location ne comprend pas les services publics, les services de bâtiment ou les dépenses immobilières.
- Comprend 745 pi² d’espace de bureau dédié
- 1 accès plain-pied
- Hauteur libre de 21 pieds
- 125 ampères (à vérifier)
Aperçu de la propriété
Situé à proximité de Glenmore Trail & Deerfoot Trail.
Faits sur l’installation entrepôt
Taille du bâtiment
29 990 pi²
Taille du lot
1,66 AC
Année de construction
2009
Construction
Métal
Alimentation électrique
Ampères: 125-225
Zonage
I-G - Industriel Général
Sélectionner des locataires
- Étage
- Nom du locataire
- Secteur
- 1ᵉʳ
- Envelope Sealant Moisture
- Détaillant
- 1ᵉʳ
- Midwest Design And Construction Ltd.
- Construction
- 1ᵉʳ
- Odyssey Martial Arts Ltd
- Services
- 1ᵉʳ
- Pipe Care
- Construction
- 1ᵉʳ
- Southpaw Boxing Club
- Arts, divertissement et loisirs
1 1
Plutôt praticable à pied
30/100
Exceptionnellement facile d’accès en voiture
100/100
Transports en commun limités
20/100
Plutôt praticable en vélo
50/100
1 de 2
Vidéos
Visite extérieure 3D Matterport
Visite 3D Matterport
Photos
Vue depuis la rue
Rue
Carte
1 de 1
Présenté par
4800 104th Ave SE
Vous êtes déjà membre? Connectez-vous
Hmm, il semble y avoir eu une erreur lors de l’envoi de votre message. Veuillez réessayer.
Merci! Votre message a été envoyé.






