Votre courriel a été envoyé.
Certaines informations ont été traduites automatiquement.
Faits saillants
- Accès rapide aux principales autoroutes, y compris les 13, 40, 15 et 520, pour une logistique efficace.
- Deux étages d'espace de bureau haut de gamme entièrement aménagé, intégrés aux opérations d'entrepôt.
- Équipé de 1 200 ampères à 600 volts, système de gicleurs et ±88 places de stationnement.
- Situé au cœur du parc industriel de Saint-Laurent, un centre d'affaires bien établi.
- L'entrepôt comprend une hauteur libre de 24 pieds, deux quais de chargement pour camions et deux portes d'accès au sol.
- Potentiel d'installation d'une grue dans l'entrepôt pour soutenir des opérations intensives.
Caractéristiques
Tous les espaces disponibles(1)
Afficher les taux de location en
- Espace
- Taille
- Terme
- Taux de location
- Utilisation de l’espace
- Aménagement
- Disponible
Les 2 espaces de cet immeuble doivent être loués ensemble, pour une superficie totale de 48 188 pi² (Zone contiguë):
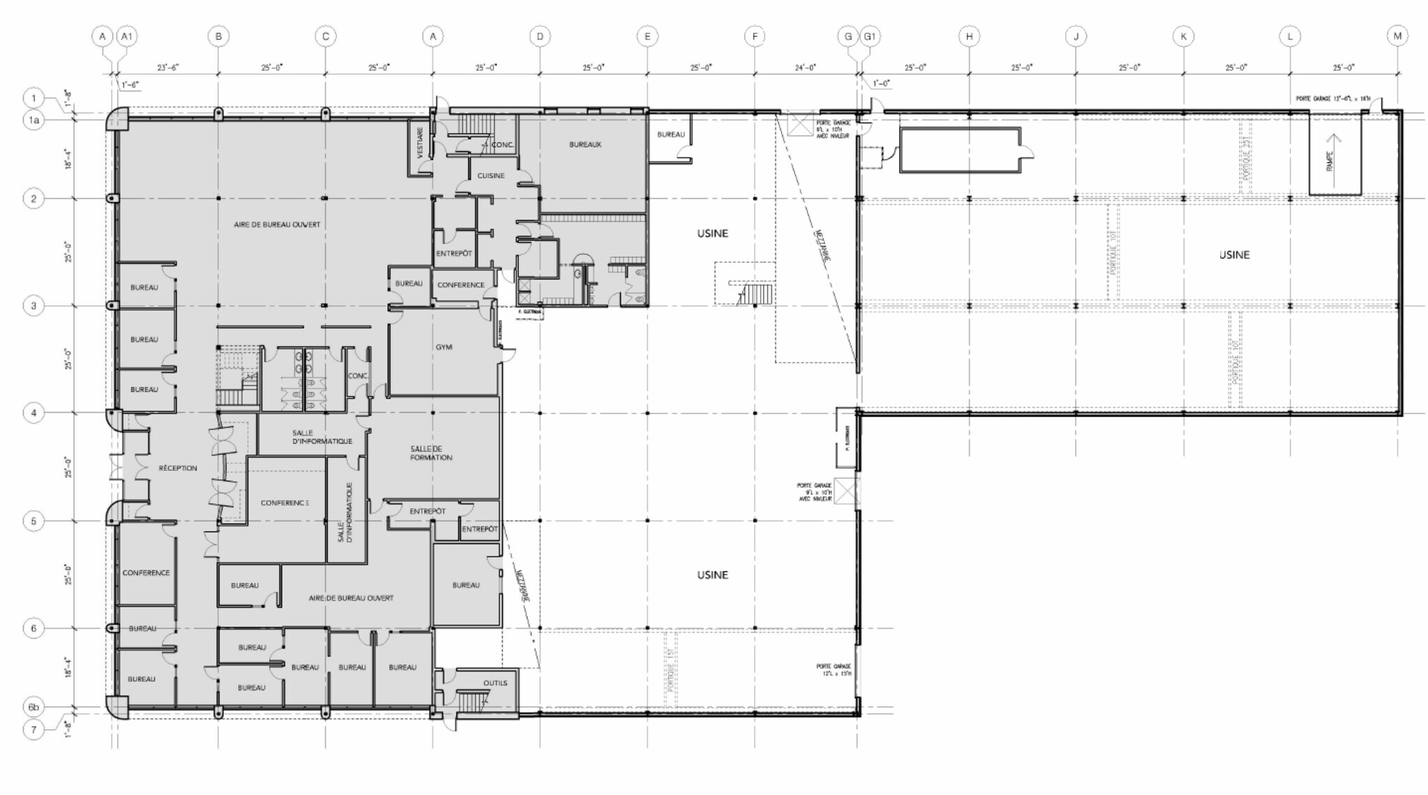
Cette propriété industrielle avec une composante de bureaux haut de gamme offre une opportunité unique au cœur du parc industriel de Saint-Laurent. Le bâtiment s'étend sur 48 188 pieds carrés, incluant une zone d'entrepôt et deux étages complets d'espaces de bureaux entièrement aménagés. Conçu pour un locataire unique, le site combine une capacité industrielle fonctionnelle avec un environnement de bureaux moderne, ce qui le rend idéal pour les entreprises nécessitant à la fois des installations opérationnelles et administratives sous un même toit. Le site bénéficie d'une excellente accessibilité grâce à des connexions rapides aux autoroutes 13, 40, 15 et 520, assurant un transport et une distribution efficaces. Situé à seulement 5,9 km de l'aéroport international Montréal-Pierre Elliott Trudeau et à environ 22,8 km du centre-ville de Montréal, la propriété offre une connectivité stratégique pour les opérations régionales et internationales. L'entrepôt dispose d'une hauteur libre de 24 pieds, de deux quais de chargement au niveau des camions et de deux portes au niveau du sol, avec la possibilité d'installer des ponts roulants. Parmi les caractéristiques supplémentaires, on trouve une alimentation électrique de 1 200 ampères à 600 volts, un système de gicleurs et environ 88 espaces de stationnement. La disponibilité est prévue pour le premier trimestre de 2027.
- Le taux de location ne comprend pas les services publics, les services de bâtiment ou les dépenses immobilières.
- 2 accès plain-pied
- Entreposage sécurisé
- Disposition du plan d’étage ouverte en général
- Aire de réception
- Comprend 14 038 pi² d’espace de bureau dédié
- Espace en excellent état
- Entièrement construit comme Bureau standard
- 10 bureaux privés
| Espace | Taille | Terme | Taux de location | Utilisation de l’espace | Aménagement | Disponible |
| 1er étage, 2e étage | 48 188 pi² | Négociable | Sur demande Sur demande Sur demande Sur demande | Industriel | construction complète | 2027-01-01 |
1er étage, 2e étage
Les 2 espaces de cet immeuble doivent être loués ensemble, pour une superficie totale de 48 188 pi² (Zone contiguë):
| Taille |
|
1er étage - 33 462 pi²
2e étage - 14 726 pi²
|
| Terme |
| Négociable |
| Taux de location |
| Sur demande Sur demande Sur demande Sur demande |
| Utilisation de l’espace |
| Industriel |
| Aménagement |
| construction complète |
| Disponible |
| 2027-01-01 |
1er étage, 2e étage
| Taille |
1er étage - 33 462 pi²
2e étage - 14 726 pi²
|
| Terme | Négociable |
| Taux de location | Sur demande |
| Utilisation de l’espace | Industriel |
| Aménagement | construction complète |
| Disponible | 2027-01-01 |
Cette propriété industrielle avec une composante de bureaux haut de gamme offre une opportunité unique au cœur du parc industriel de Saint-Laurent. Le bâtiment s'étend sur 48 188 pieds carrés, incluant une zone d'entrepôt et deux étages complets d'espaces de bureaux entièrement aménagés. Conçu pour un locataire unique, le site combine une capacité industrielle fonctionnelle avec un environnement de bureaux moderne, ce qui le rend idéal pour les entreprises nécessitant à la fois des installations opérationnelles et administratives sous un même toit. Le site bénéficie d'une excellente accessibilité grâce à des connexions rapides aux autoroutes 13, 40, 15 et 520, assurant un transport et une distribution efficaces. Situé à seulement 5,9 km de l'aéroport international Montréal-Pierre Elliott Trudeau et à environ 22,8 km du centre-ville de Montréal, la propriété offre une connectivité stratégique pour les opérations régionales et internationales. L'entrepôt dispose d'une hauteur libre de 24 pieds, de deux quais de chargement au niveau des camions et de deux portes au niveau du sol, avec la possibilité d'installer des ponts roulants. Parmi les caractéristiques supplémentaires, on trouve une alimentation électrique de 1 200 ampères à 600 volts, un système de gicleurs et environ 88 espaces de stationnement. La disponibilité est prévue pour le premier trimestre de 2027.
- Le taux de location ne comprend pas les services publics, les services de bâtiment ou les dépenses immobilières.
- Comprend 14 038 pi² d’espace de bureau dédié
- 2 accès plain-pied
- Espace en excellent état
- Entreposage sécurisé
- Entièrement construit comme Bureau standard
- Disposition du plan d’étage ouverte en général
- 10 bureaux privés
- Aire de réception
Faits sur l’installation entrepôt
Sélectionner des locataires
- Étage
- Nom du locataire
- Secteur
- 1ᵉʳ
- Valmet Ltd.
- Fabrication
Présenté par
4900 Boul Thimens
Hmm, il semble y avoir eu une erreur lors de l’envoi de votre message. Veuillez réessayer.
Merci! Votre message a été envoyé.







