Votre courriel a été envoyé.
Country Plaza 510 Hwy-1 Hwy 1 140–22 357 pi² d'espace disponible • Commerce de détail • Strathmore, AB T1P 1M6



Certaines informations ont été traduites automatiquement.
Faits saillants
- Aménagement commercial d'un étage situé à l'intersection principale de Strathmore, avec un accès facile et une grande exposition à la route 1
- PAD Site CRU
- Centres médicaux à proximité
- Options de désembuage disponibles
Disponibilité des espaces (3)
Afficher les taux de location en
- Espace
- Taille
- Terme
- Taux de location
- Type de loyer
| Espace | Taille | Terme | Taux de location | Type de loyer | ||
| 1er étage, ste H | 1 820 pi² | 1-10 ans | 25,00 $ CAD/pi²/an 2,08 $ CAD/pi²/mois 45 500 $ CAD/an 3 792 $ CAD/mois | Loyer hypernet | ||
| 1er étage, ste P | 1 140 pi² | Négociable | 25,00 $ CAD/pi²/an 2,08 $ CAD/pi²/mois 28 500 $ CAD/an 2 375 $ CAD/mois | Loyer hypernet | ||
| 1er étage, ste Pad Site | 19 397 pi² | Négociable | Sur demande Sur demande Sur demande Sur demande | Loyer hypernet |
1er étage, ste H
Espace commercial entièrement aménagé de 1 820 pieds carrés. Communiquez avec l'agent d'inscription pour obtenir de plus amples renseignements.
- Le taux de location ne comprend pas les services publics, les services de bâtiment ou les dépenses immobilières.
- Entièrement construit comme Espace de commerce de détail standard
- Situé en ligne avec d’autres commerces de détail
- Air central et chauffage
- Éclairage et signalisation récemment rénovés.
- Conduire à plein potentiel.
- Situé au coin privilégié avec une forte circulation.
1er étage, ste P
1 140 pieds carrés d'espace de vente au détail. Communiquez avec l'agent d'inscription pour plus d'informations et pour connaître la disponibilité.
- Le taux de location ne comprend pas les services publics, les services de bâtiment ou les dépenses immobilières.
- Entièrement construit comme Espace de commerce de détail standard
- Situé en ligne avec d’autres commerces de détail
- Locataires nationaux voisins populaires.
- Éclairage et signalisation récemment rénovés.
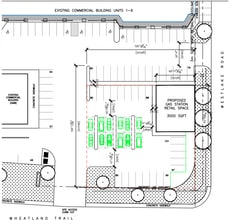
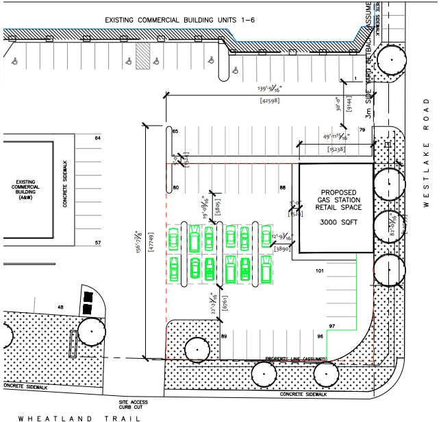
1er étage, ste Pad Site
Site de coussinets de 19 397 pieds carrés. Communiquez avec l'agent d'inscription pour obtenir de plus amples renseignements.
- Le taux de location ne comprend pas les services publics, les services de bâtiment ou les dépenses immobilières.
- Entièrement construit comme Espace de commerce de détail standard
- L’espace est une parcelle de terrain de cette propriété
- Locataires voisins populaires.
- Éclairage et signalisation récemment rénovés.
Types de loyers
Le type et le montant du loyer que le locataire (preneur) est tenu de payer au propriétaire (bailleur) sur la durée du bail sont négociés avant la signature du bail par les deux parties. Le type de loyer varie selon les services fournis. Par exemple, le prix d’un loyer hypernet est habituellement inférieur à celui d’un bail à service complet puisque le locataire est tenu d’assumer des dépenses additionnelles par rapport au loyer de base. Contactez le courtier inscripteur pour tout connaître sur les frais connexes et additionnels associés à chaque type de loyer.
1. Service complet: Un taux de location qui comprend des services standards liés à l’immeuble fournis par le propriétaire dans le cadre d’une location annuelle de base.
2. Loyer supernet: Le locataire paie seulement deux des frais de l’immeuble. Le propriétaire et le locataire déterminent ces frais spécifiques avant la signature du bail.
3. Loyer hypernet: Un bail en vertu duquel le locataire est responsable de tous les frais liés à sa part proportionnelle d’occupation de l’immeuble.
4. Brut modifié: Le loyer brut modifié désigne un type général de taux de location dans lequel le locataire est habituellement responsable de sa part proportionnelle d’un ou de plusieurs frais. C’est le propriétaire qui paie les frais restants. Considérez les structures tarifaires courantes suivantes applicables aux loyers bruts modifiés: 4. Plus les services: Un type de bail brut modifié suivant lequel le locataire est responsable de sa part proportionnelle des coûts des services publics, en plus du loyer. 4. Plus le nettoyage: Un type de bail brut modifié suivant lequel le locataire est responsable de sa part proportionnelle des coûts de nettoyage, en plus du loyer. 4. Plus l'électricité: Un type de bail brut modifié suivant lequel le locataire est responsable de sa part proportionnelle des coûts d’électricité, en plus du loyer. 4. Plus l’électricité et le nettoyage: Un type de bail brut modifié dans lequel le locataire est responsable de sa part proportionnelle des coûts d’électricité et de nettoyage, en plus du loyer. 4. Plus les services publics et le nettoyage: Un type de bail brut modifié dans lequel le locataire est responsable de sa part proportionnelle des coûts des services publics et de nettoyage, en plus du loyer. 4. Bail industriel brut: Un type de bail brut modifié dans lequel le locataire paie un ou plusieurs des frais, en plus du loyer. Le propriétaire et le locataire déterminent ces frais spécifiques avant la signature du bail.
5. L’électricité est à la charge du locataire: Le propriétaire paie pour tous les services et le locataire est responsable de sa propre utilisation de l’éclairage et des prises électriques dans l’espace qu’il occupe.
6. Négociable ou sur demande: Cette option est utilisée lorsque le contact de location ne précise pas le type de loyer ou de service.
7. À déterminer: À déterminer ; utilisé pour les immeubles dont le type de services ou de loyer n’est pas connu, souvent quand l’immeuble n’est pas encore construit.
Plan de site
Faits sur la propriété
| Superficie totale disponible | 22 357 pi² | Superficie commerciale brute | 45 350 pi² |
| Type de propriété | Commerce de détail | Année de construction | 2000 |
| Sous-type de propriété | Bien à usage mixte | Ratio de stationnement | 1,98/1 000 pi² |
| Superficie totale disponible | 22 357 pi² |
| Type de propriété | Commerce de détail |
| Sous-type de propriété | Bien à usage mixte |
| Superficie commerciale brute | 45 350 pi² |
| Année de construction | 2000 |
| Ratio de stationnement | 1,98/1 000 pi² |
À propos de la propriété
Opportunité de vente au détail de Strathmore Country Plaza, offrant une excellente visibilité le long de la Transcanadienne 1. Situé dans une zone commerciale très fréquentée, cet espace est idéal pour diverses entreprises. Un grand stationnement, le zonage C-SC et les centres médicaux à proximité renforcent l'attrait. La possession est négociable. Communiquez avec nous pour obtenir des détails sur les prix. Ne manquez pas cet espace à fort trafic et à fort impact !
- Banque
- Dépanneur
- Lot de coin
- Service d'alimentation
- Visibilité de l'autoroute
- Enseigne sur pylône
- Restaurant
- Système de sécurité
- Affichage
- Affichage sur monument
- Climatisation
- Détecteur de fumée
Principaux détaillants à proximité
Présenté par
Country Plaza | 510 Hwy-1 Hwy
Hmm, il semble y avoir eu une erreur lors de l’envoi de votre message. Veuillez réessayer.
Merci! Votre message a été envoyé.





