Se Connecter/S’inscrire
Votre courriel a été envoyé.
Citadel West 540 12th Ave SW 6 000 pi² d'espace disponible • Bureau • 4 étoiles • Calgary, AB T2R 1M1



Certaines informations ont été traduites automatiquement.
Faits saillants de la sous-location
- À distance de marche du centre-ville.
- Entreposage des vélos et sécurité sur place.
- À distance de marche du transport en commun.
Tous les espaces disponibles(1)
Afficher les taux de location en
- Espace
- Taille
- Terme
- Taux de location
- Utilisation de l’espace
- Aménagement
- Disponible
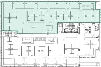
Suite 500 disponible pour sous-sous-location.
- Espace de sous-location disponible auprès du locataire actuel
- Entièrement construit comme Bureau standard
- Convient pour 15 à 48 personnes
- 1 salle de conférence
- Espace en excellent état
- Aire de réception
- Accès aux ascenseurs
- Éclairage accentué
- Lumière naturelle
- Le taux comprend les services publics, les services de bâtiment et les dépenses immobilières.
- Disposition du plan d’étage ouverte en général
- 7 bureaux privés
- 22 postes de travail
- Climatisation centrale
- Cuisine
- Salle d’impression/Photocopie
- Espace de travail spacieux
- Excellent équipement de construction
| Espace | Taille | Terme | Taux de location | Utilisation de l’espace | Aménagement | Disponible |
| 5e étage, ste 500 | 6 000 pi² | Août 2028 | 20,00 $ CAD/pi²/an 1,67 $ CAD/pi²/mois 120 000 $ CAD/an 10 000 $ CAD/mois | Bureau | construction complète | Maintenant |
5e étage, ste 500
| Taille |
| 6 000 pi² |
| Terme |
| Août 2028 |
| Taux de location |
| 20,00 $ CAD/pi²/an 1,67 $ CAD/pi²/mois 120 000 $ CAD/an 10 000 $ CAD/mois |
| Utilisation de l’espace |
| Bureau |
| Aménagement |
| construction complète |
| Disponible |
| Maintenant |
1 de 4
Vidéos
Visite extérieure 3D Matterport
Visite 3D Matterport
Photos
Vue depuis la rue
Rue
Carte
5e étage, ste 500
| Taille | 6 000 pi² |
| Terme | Août 2028 |
| Taux de location | 20,00 $ CAD/pi²/an |
| Utilisation de l’espace | Bureau |
| Aménagement | construction complète |
| Disponible | Maintenant |
Suite 500 disponible pour sous-sous-location.
- Espace de sous-location disponible auprès du locataire actuel
- Le taux comprend les services publics, les services de bâtiment et les dépenses immobilières.
- Entièrement construit comme Bureau standard
- Disposition du plan d’étage ouverte en général
- Convient pour 15 à 48 personnes
- 7 bureaux privés
- 1 salle de conférence
- 22 postes de travail
- Espace en excellent état
- Climatisation centrale
- Aire de réception
- Cuisine
- Accès aux ascenseurs
- Salle d’impression/Photocopie
- Éclairage accentué
- Espace de travail spacieux
- Lumière naturelle
- Excellent équipement de construction
Aperçu de la propriété
À distance de marche du centre-ville.
- Ligne d'autobus
- Entreposage de vélo
- Lumière naturelle
- Climatisation
Faits sur la propriété
Type de bâtiment
Bureau
Année de construction
2006
Tarification de LoopNet
4 Étoiles
Hauteur du bâtiment
7 étages
Taille du bâtiment
78 500 pi²
Classe d’immeuble
A
Superficie de plancher typique
11 214 pi²
Hauteur du plafond non finie
12’
Stationnement
11 places de stationnement surface
Exceptionnellement practicable à pied
100/100
Assez facile d'accès en voiture
40/100
Transports en commun robustes
80/100
Très practicable en vélo
80/100
1 de 8
Vidéos
Visite extérieure 3D Matterport
Visite 3D Matterport
Photos
Vue depuis la rue
Rue
Carte
Présenté par
Citadel West | 540 12th Ave SW
Vous êtes déjà membre? Connectez-vous
Hmm, il semble y avoir eu une erreur lors de l’envoi de votre message. Veuillez réessayer.
Merci! Votre message a été envoyé.




