Votre courriel a été envoyé.
55 King St W
Kitchener, ON N2G 4W1
Commerce de détail Propriété À louer
·
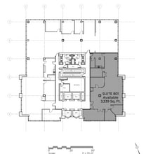
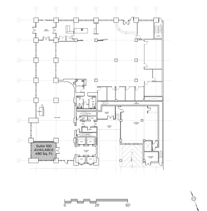
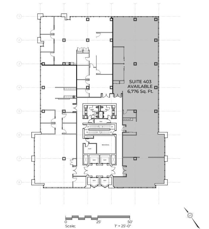
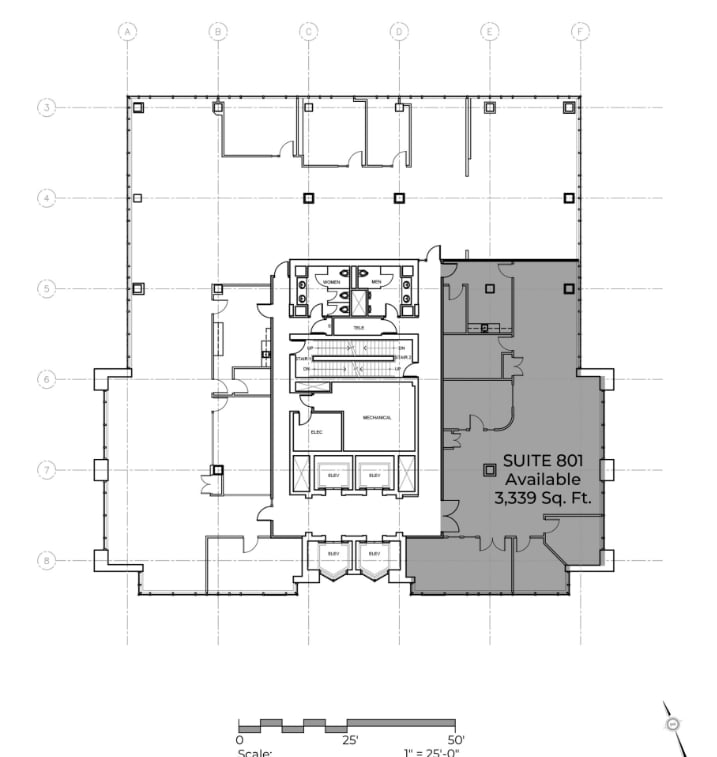
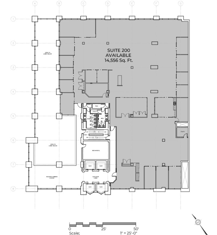
62 449 pi²


Certaines informations ont été traduites automatiquement.
Faits saillants
- Vue de grandes fenêtres
- Concept ouvert
- Accès par ascenseur
- Lignes Internet par fibre
Aperçu de la propriété
55 tours King surplomberont le centre-ville et mesurent 12 étages. Le design en verre élégant et contemporain du bâtiment exige une attention particulière, se distinguant comme la seule tour de classe A offerte dans le centre-ville. Le grand hall d'entrée présente des finitions en marbre et en granit, des cabines d'ascenseur panoramiques en verre et des baies vitrées. En tant que locataire, vous vous sentirez détendu et soigné grâce à la sécurité habité de l'immeuble, au stationnement sur place, au local à vélos sécurisé et au salon des locataires. Si vous cherchez à faire bonne impression, le 55, rue King Ouest est la nouvelle résidence de votre entreprise.
- Ligne d'autobus
- Accessible aux fauteuils roulants
- Climatisation
