Se Connecter/S’inscrire
Votre courriel a été envoyé.
5819 2nd St SW 1 380–4 380 pi² d'espace disponible • Calgary, AB T2J 0V9



Certaines informations ont été traduites automatiquement.
Faits saillants
- Emplacement stratégique : Accès facile au sentier Macleod et aux principales voies de transport.
- Grand stationnement : Parking généreux sur place pour le personnel et les clients.
- Disposition fonctionnelle : Idéal pour les opérations industrielles légères, d'entrepôt ou de service.
Tous les espaces disponibles(2)
Afficher les taux de location en
- Espace
- Taille
- Terme
- Taux de location
- Utilisation de l’espace
- Aménagement
- Disponible
- Le taux de location ne comprend pas les services publics, les services de bâtiment ou les dépenses immobilières.
- Situé en ligne avec d’autres commerces de détail
- 10 minutes en voiture du centre-ville de Calgary
- Entièrement construit comme Espace (spécialité)
- Stationnement souterrain et couvert disponible
- Situé dans le quartier des affaires de Chinook
- Partiellement construit comme Bureau standard
- Convient pour 4 à 24 personnes
- 10 minutes en voiture du centre-ville de Calgary
- Disposition du plan d’étage ouverte en général
- Stationnement souterrain et couvert disponible
- Situé dans le quartier des affaires de Chinook
| Espace | Taille | Terme | Taux de location | Utilisation de l’espace | Aménagement | Disponible |
| 1er étage, ste 100 | 1 380 pi² | 5-10 ans | 55,00 $ CAD/pi²/an 4,58 $ CAD/pi²/mois 75 900 $ CAD/an 6 325 $ CAD/mois | Commerce de détail | construction complète | Maintenant |
| 3e étage, ste 304 | 1 500 à 3 000 pi² | Négociable | Sur demande Sur demande Sur demande Sur demande | Bureau | construction partielle | Maintenant |
1er étage, ste 100
| Taille |
| 1 380 pi² |
| Terme |
| 5-10 ans |
| Taux de location |
| 55,00 $ CAD/pi²/an 4,58 $ CAD/pi²/mois 75 900 $ CAD/an 6 325 $ CAD/mois |
| Utilisation de l’espace |
| Commerce de détail |
| Aménagement |
| construction complète |
| Disponible |
| Maintenant |
3e étage, ste 304
| Taille |
| 1 500 à 3 000 pi² |
| Terme |
| Négociable |
| Taux de location |
| Sur demande Sur demande Sur demande Sur demande |
| Utilisation de l’espace |
| Bureau |
| Aménagement |
| construction partielle |
| Disponible |
| Maintenant |
1 de 1
Vidéos
Visite extérieure 3D Matterport
Visite 3D Matterport
Photos
Vue depuis la rue
Rue
Carte
1er étage, ste 100
| Taille | 1 380 pi² |
| Terme | 5-10 ans |
| Taux de location | 55,00 $ CAD/pi²/an |
| Utilisation de l’espace | Commerce de détail |
| Aménagement | construction complète |
| Disponible | Maintenant |
- Le taux de location ne comprend pas les services publics, les services de bâtiment ou les dépenses immobilières.
- Entièrement construit comme Espace (spécialité)
- Situé en ligne avec d’autres commerces de détail
- Stationnement souterrain et couvert disponible
- 10 minutes en voiture du centre-ville de Calgary
- Situé dans le quartier des affaires de Chinook
1 de 2
Vidéos
Visite extérieure 3D Matterport
Visite 3D Matterport
Photos
Vue depuis la rue
Rue
Carte
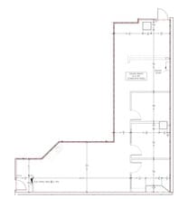
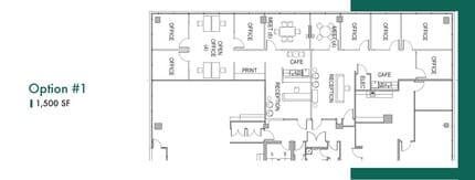
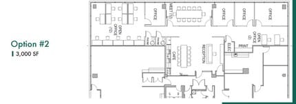
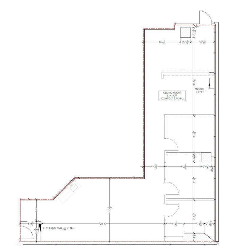
3e étage, ste 304
| Taille | 1 500 à 3 000 pi² |
| Terme | Négociable |
| Taux de location | Sur demande |
| Utilisation de l’espace | Bureau |
| Aménagement | construction partielle |
| Disponible | Maintenant |
- Partiellement construit comme Bureau standard
- Disposition du plan d’étage ouverte en général
- Convient pour 4 à 24 personnes
- Stationnement souterrain et couvert disponible
- 10 minutes en voiture du centre-ville de Calgary
- Situé dans le quartier des affaires de Chinook
Aperçu de la propriété
Situé dans le quartier des affaires de Chinook, le 5819 2nd Street SW présente un extérieur moderne et sophistiqué. Rénové en 2015, le bâtiment présente des fenêtres surdimensionnées et des espaces de patio extérieurs. Géré par Canadian Urban Limited, cet immeuble est entouré de commodités et de voies de transport en commun et se trouve à seulement 10 minutes en voiture du centre-ville de Calgary.
- Ligne d'autobus
- Affichage
- Éclairage accentué
- Détecteur de fumée
Faits sur la propriété
Type de bâtiment
Bureau
Année de construction
1979
Hauteur du bâtiment
3 étages
Taille du bâtiment
21 850 pi²
Classe d’immeuble
B
Superficie de plancher typique
7 283 pi²
Hauteur du plafond non finie
10’
Stationnement
22 places de stationnement surface à 115 $ CAD/mois
19 places de stationnement couvert à 150 $ CAD/mois
Sélectionner des locataires
- Étage
- Nom du locataire
- Secteur
- 1ᵉʳ
- Altas Dental Centre
- Soins de santé et assistance sociale
- 2ᵉ
- Encore Business Solution
- Information
- 3ᵉ
- Kumlin Sullivan Architecture Studio Ltd.
- Services professionnels, scientifiques et techniques
- 3ᵉ
- PEKA Professional Property Management
- Immobilier
Moyennement praticable à pied
70/100
Très facile d’accès en voiture
80/100
Bons transports en commun
70/100
Moyennement praticable en vélo
60/100
1 de 7
Vidéos
Visite extérieure 3D Matterport
Visite 3D Matterport
Photos
Vue depuis la rue
Rue
Carte
Présenté par
5819 2nd St SW
Vous êtes déjà membre? Connectez-vous
Hmm, il semble y avoir eu une erreur lors de l’envoi de votre message. Veuillez réessayer.
Merci! Votre message a été envoyé.






