Se Connecter/S’inscrire
Saisissez votre courriel pour vous connecter ou pour créer un compte gratuit
Cette fonctionnalité n’est pas disponible pour le moment.
Nous sommes désolés, mais la fonctionnalité à laquelle vous essayez d’accéder n’est pas disponible actuellement. Nous sommes au courant de ce problème et notre équipe déploie tous les efforts pour le résoudre.
Veuillez vérifier de nouveau dans quelques minutes. Nous nous excusons pour ce désagrément.
- Équipe LoopNet
Cette propriété n’est plus annoncé sur LoopNet.ca.
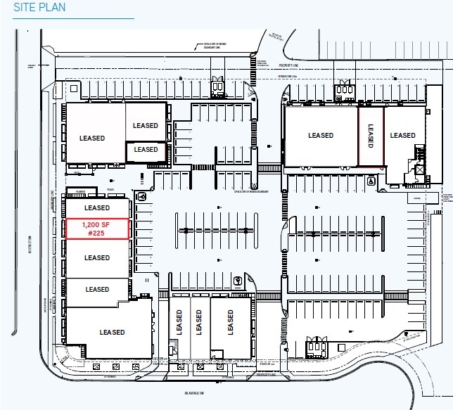
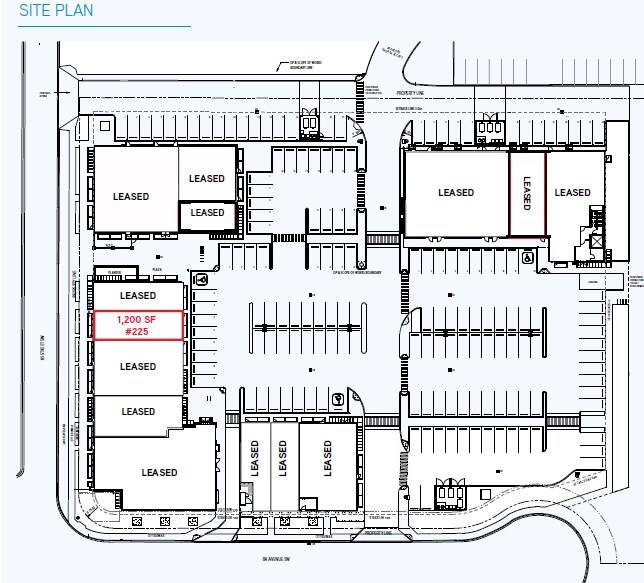
8560 8A Ave SW
Calgary, AB T3H 4C7
Bldg 100 · Propriété À louer

Faits sur la propriété
| Type de propriété | Commerce de détail | Année de construction | 2016 |
| Superficie commerciale brute | 5 100 pi² | Ratio de stationnement | 5,09/1 000 pi² |
| Superficie totale du terrain | 2,64 AC |
| Type de propriété | Commerce de détail |
| Superficie commerciale brute | 5 100 pi² |
| Superficie totale du terrain | 2,64 AC |
| Année de construction | 2016 |
| Ratio de stationnement | 5,09/1 000 pi² |
Caractéristiques et commodités
- Ligne d'autobus
- Affichage
ID d’inscription: 16891764
Date de mise sur le marché: 2019-08-12
Dernière mise à jour:
Adresse: 8560 8A Ave SW, Calgary, AB T3H 4C7
Le Suburban South Commerce de détail Propriété à 8560 8A Ave SW, Calgary, AB T3H 4C7 n’est plus annoncé sur LoopNet.ca. Contacter le courtier pour obtenir des renseignements sur la disponibilité.
COMMERCE DE DÉTAIL PROPRIÉTÉS DANS LES QUARTIERS PROCHES
INSCRIPTIONS À PROXIMITÉ
- 68-7930 Bowness Rd NW, Calgary AB
- 833 Na'a Dr SW, Calgary AB
- 4620-4624 16 Av NW, Calgary AB
- 2000 Veteran's Pl NW, Calgary AB
- 8620 Canada Olympic Dr SW, Calgary AB
- Greenwich Dr NW, Calgary AB
- 1000-2000 Veteran's Pl NW, Calgary AB
- 60 Bowridge Dr NW, Calgary AB
- 8561 8A Ave SW, Calgary AB
- 1851 Sirocco Dr SW, Calgary AB
- 8375 Broadcast Avenue Southwest, Calgary AB
- Greenwich Vw NW, Calgary AB
- 45 Greenbriar Way NW, Calgary AB
- 4935 40th Ave, Calgary AB
1 de 1
Vidéos
Visite extérieure 3D Matterport
Visite 3D Matterport
Photos
Vue depuis la rue
Rue
Carte

Lien copié
Votre compte LoopNet a été créé !
Merci de vos commentaires
Veuillez partager vos commentaires
Nous vous invitons à nous faire part de vos commentaires sur la façon dont nous pouvons améliorer LoopNet afin de mieux répondre à vos besoins.X
{{ getErrorText(feedbackForm.starRating, "Ce notation") }}
255 Limite de caractères ({{ remainingChars() }} caractèrecaractères restantsur)
{{ getErrorText(feedbackForm.msg, "Ce notation") }}
{{ getErrorText(feedbackForm.fname, "Ce prénom") }}
{{ getErrorText(feedbackForm.lname, "Ce nom") }}
{{ getErrorText(feedbackForm.phone, "Ce numéro de téléphone") }}
{{ getErrorText(feedbackForm.phonex, "Cette extension de téléphone") }}
{{ getErrorText(feedbackForm.email, "Cet email") }}
Vous pouvez fournir des commentaires en tout temps avec le bouton Aide en haut de la page.